Edgerton Court, Tadcaster, LS24 9NZ

- PROPERTY TYPE
Detached
- BEDROOMS
4
- BATHROOMS
2
- SIZE
Ask agent
- TENUREDescribes how you own a property. There are different types of tenure - freehold, leasehold, and commonhold.Read more about tenure in our glossary page.
Freehold
Key features
- NO CHAIN
- Sunny and private garden with raised sun deck
- Four really good sized bedrooms. Master with ensuite shower room
- Detached single garage and large driveway for parking
- Modern fitted kitchen/breakfast room
- Stunning lounge diner with bi-fold doors
- Call 24/7 to arrange your viewing or book direct online
Description
Don't miss the chance to view this wonderful four-bedroom detached home on one of Tadcaster's most sought-after streets.
Nestled on the pretty cul-de-sac, Edgerton Court, this beautiful home offers a great opportunity for a varied scope of buyers, from family upsizing to downsizing couples. There's so much to love here, it really is one not to be missed.
From the moment you walk up to the house, you know it's going to be special. You're greeted by a well-maintained front garden, featuring a lawned area and neat hedging. The driveway is large and plenty big enough for a number of vehicles and leads down to the detached single garage.
Entering the property, the entrance hall is lovely and large and bright thanks to the glazing at the front. Providing ample storage and the grandest of entrances to this lovely home.
The first of the two reception rooms is set to the right, providing ample space for both relaxation and entertaining. The lounge/dining room is a very flexible space ideal for relaxing as a family or hosting and throwing open the bi-fold doors to the garden. The living flame gas fire, which sits in a large and traditional surround, provides the ideal focal point for the room.
The second reception is a lovely addition to the house. A more snug feel so perfect for everyday use, but could easily be used as a playroom, music room, or home office; the choice really is yours.
The well-appointed kitchen, which is fitted with a range of stylish wall and base units, provides ample storage space for all your culinary needs. The kitchen includes a free-standing gas hob and electric oven, making it a perfect space for both everyday cooking and entertaining guests.
The downstairs W/C finishes the ground floor.
Upstairs, you'll find four generous bedrooms with storage. The master bedroom is really generous double with built-in wardrobes. The second bedroom.is complemented by a good-sized and modern ensuite shower room featuring a single shower cubicle, low-level w/c and wash basin. The family bathroom finishes the first floor, consisting of a shower over a bath, low-level w/c and wash basin.
To the rear is the most wonderful garden featuring a good-sized lawn, decked sun terrace and pond. The lovely decking area is the perfect spot for a variety of casual seating, making it an ideal place for al fresco dining or simply unwinding in the sun. The lawned area is perfect for children to play or for gardening enthusiasts with the mature borders too.
The market town of Tadcaster is well situated for access to the A64, A1 & M1 and motorway network. This is a popular location for the busy family with good schooling options for all age groups-including being in catchment for Tadcaster Grammar School, a range of shopping facilities, a medical centre, a swimming pool with gymnasium and sports centre.
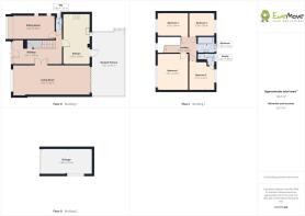
Entrance Hall
5.51m x 2.65m - 18'1" x 8'8"
Living Room
8.35m x 3.36m - 27'5" x 11'0"
Kitchen
2.78m x 5.64m - 9'1" x 18'6"
Sitting Room
4.6m x 2.59m - 15'1" x 8'6"
WC
1.21m x 0.83m - 3'12" x 2'9"
Bedroom 1
3.61m x 4.32m - 11'10" x 14'2"
Bedroom 2
3.1m x 3.24m - 10'2" x 10'8"
Ensuite
2.07m x 1.4m - 6'9" x 4'7"
Bedroom 3
3.53m x 2.64m - 11'7" x 8'8"
Bedroom 4
3.2m x 2.65m - 10'6" x 8'8"
Family Bathroom
1.95m x 1.74m - 6'5" x 5'9"
- COUNCIL TAXA payment made to your local authority in order to pay for local services like schools, libraries, and refuse collection. The amount you pay depends on the value of the property.Read more about council Tax in our glossary page.
- Band: E
- PARKINGDetails of how and where vehicles can be parked, and any associated costs.Read more about parking in our glossary page.
- Yes
- GARDENA property has access to an outdoor space, which could be private or shared.
- Yes
- ACCESSIBILITYHow a property has been adapted to meet the needs of vulnerable or disabled individuals.Read more about accessibility in our glossary page.
- Ask agent
Edgerton Court, Tadcaster, LS24 9NZ
Add an important place to see how long it'd take to get there from our property listings.
__mins driving to your place
Get an instant, personalised result:
- Show sellers you’re serious
- Secure viewings faster with agents
- No impact on your credit score
Your mortgage
Notes
Staying secure when looking for property
Ensure you're up to date with our latest advice on how to avoid fraud or scams when looking for property online.
Visit our security centre to find out moreDisclaimer - Property reference 10679114. The information displayed about this property comprises a property advertisement. Rightmove.co.uk makes no warranty as to the accuracy or completeness of the advertisement or any linked or associated information, and Rightmove has no control over the content. This property advertisement does not constitute property particulars. The information is provided and maintained by EweMove, York. Please contact the selling agent or developer directly to obtain any information which may be available under the terms of The Energy Performance of Buildings (Certificates and Inspections) (England and Wales) Regulations 2007 or the Home Report if in relation to a residential property in Scotland.
*This is the average speed from the provider with the fastest broadband package available at this postcode. The average speed displayed is based on the download speeds of at least 50% of customers at peak time (8pm to 10pm). Fibre/cable services at the postcode are subject to availability and may differ between properties within a postcode. Speeds can be affected by a range of technical and environmental factors. The speed at the property may be lower than that listed above. You can check the estimated speed and confirm availability to a property prior to purchasing on the broadband provider's website. Providers may increase charges. The information is provided and maintained by Decision Technologies Limited. **This is indicative only and based on a 2-person household with multiple devices and simultaneous usage. Broadband performance is affected by multiple factors including number of occupants and devices, simultaneous usage, router range etc. For more information speak to your broadband provider.
Map data ©OpenStreetMap contributors.





