Woodcote Valley Road, Purley, CR8

- PROPERTY TYPE
Flat
- BEDROOMS
3
- BATHROOMS
2
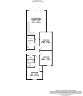
- SIZE
1,054 sq ft
98 sq m
Key features
- Three Bedroom Apartment
- Open Plan Kitchen/Dining/Living Room
- Integrated Kitchen Appliances
- Private Terraced Outside Space
- Lift to All Floors
- Engineered Oak Flooring
- Ground Floor Apartment
- Close Proximity to Purley and Coulsdon
Description
Gorgeous apartment - not to be missed! This spacious ground-floor apartment features a welcoming interior decorated in a neutral palette with oak-effect flooring throughout. The open-plan kitchen, dining, and living area is filled with natural light from large sliding doors that lead directly to a private terrace, blending indoor and outdoor living. The contemporary Norden kitchen boasts putty grey, handleless units with bronze accents, Quartz worktops, and a full suite of integrated Hotpoint appliances including an oven, induction hob, microwave, canopy extractor, fridge/freezer, wine cooler, dishwasher, and washing machine. A convenient downstairs WC completes the ground-floor layout.
Upstairs, the apartment offers generously sized bedrooms with neutral carpeting, complemented by a sleek bathroom and en-suite. Both feature white sanitaryware, chrome fittings, and modern vanity units, with either a bath and shower attachment or a walk-in shower, finished with elegant grey wall and floor tiles and heated towel rails.
Endlesham Court is an impressive new-build development by a reputable local developer, designed with traditional architectural detailing to blend seamlessly with its surroundings. Comprising just eight stylish one, two, and three-bedroom apartments, each home benefits from either a private garden or balcony, as well as access to a beautifully landscaped communal garden. Located on the popular Woodcote Valley Road in Purley, the development is close to the prestigious Webb Estate and just around the corner from Woodcote Village Green. For leisure and outdoor enthusiasts, Woodcote Park Golf Club and Roundshaw Downs with its 52.7-hectare conservation area of chalk grassland and woodland are nearby. Reedham mainline station is within walking distance, providing direct trains to London Bridge in just 33 minutes.
Tenure: Leasehold – 125 years
Service Charge: £1,400 per annum
Ground Rent: £0
Council Tax: TBC
EPC: B
Purley is a highly desirable suburb, known for its mix of detached, semi-detached homes, and apartments with generous gardens. The area combines a peaceful, suburban feel with excellent amenities, including boutique shops, cafés, restaurants, and easy access to Purley Way’s larger retail outlets such as IKEA, Homesense, and TK Maxx. Residents enjoy local leisure facilities including Purley Swimming Pool, Purley Sports Club, and VUE Cinema, as well as nearby green spaces like Foxley Wood and Roundshaw Downs, perfect for walking and enjoying nature. Excellent schools are also nearby, including The John Fisher School, St David’s, and Woodcote High School. Purley Train Station offers direct connections to London Bridge in 22 minutes, and the M25 is just six miles away, making it an ideal location for commuters.
Disclaimer – Photography may depict another unit within the Endlesham Court development. Information is for guidance only and should not be relied upon as a statement of fact. Specifications, distances, and details are believed to be accurate but are not guaranteed. The developer reserves the right to make changes and substitute materials or fittings of equal quality without notice.
Garden
Terrace
Brochures
Endlesham Court Introduced by Move Revolution- COUNCIL TAXA payment made to your local authority in order to pay for local services like schools, libraries, and refuse collection. The amount you pay depends on the value of the property.Read more about council Tax in our glossary page.
- Ask agent
- PARKINGDetails of how and where vehicles can be parked, and any associated costs.Read more about parking in our glossary page.
- Ask agent
- GARDENA property has access to an outdoor space, which could be private or shared.
- Private garden
- ACCESSIBILITYHow a property has been adapted to meet the needs of vulnerable or disabled individuals.Read more about accessibility in our glossary page.
- Ask agent
Energy performance certificate - ask agent
Woodcote Valley Road, Purley, CR8
Add an important place to see how long it'd take to get there from our property listings.
__mins driving to your place
Get an instant, personalised result:
- Show sellers you’re serious
- Secure viewings faster with agents
- No impact on your credit score
Your mortgage
Notes
Staying secure when looking for property
Ensure you're up to date with our latest advice on how to avoid fraud or scams when looking for property online.
Visit our security centre to find out moreDisclaimer - Property reference c990913a-6f9d-4df5-aeaf-0e61a007afa3. The information displayed about this property comprises a property advertisement. Rightmove.co.uk makes no warranty as to the accuracy or completeness of the advertisement or any linked or associated information, and Rightmove has no control over the content. This property advertisement does not constitute property particulars. The information is provided and maintained by Move Revolution, Covering Surrey/Sussex. Please contact the selling agent or developer directly to obtain any information which may be available under the terms of The Energy Performance of Buildings (Certificates and Inspections) (England and Wales) Regulations 2007 or the Home Report if in relation to a residential property in Scotland.
*This is the average speed from the provider with the fastest broadband package available at this postcode. The average speed displayed is based on the download speeds of at least 50% of customers at peak time (8pm to 10pm). Fibre/cable services at the postcode are subject to availability and may differ between properties within a postcode. Speeds can be affected by a range of technical and environmental factors. The speed at the property may be lower than that listed above. You can check the estimated speed and confirm availability to a property prior to purchasing on the broadband provider's website. Providers may increase charges. The information is provided and maintained by Decision Technologies Limited. **This is indicative only and based on a 2-person household with multiple devices and simultaneous usage. Broadband performance is affected by multiple factors including number of occupants and devices, simultaneous usage, router range etc. For more information speak to your broadband provider.
Map data ©OpenStreetMap contributors.





