
East Coker, Yeovil
- PROPERTY TYPE
Plot
- SIZE
Ask agent
Key features
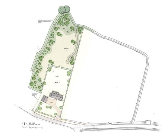
- Exceptional Building Plot of 1.68 acres
- Planning Permission (FULL) for a SELF BUILD Substantial Detached Country House
- Phosphates Mitigation Paid For By Current Owners
- Extensive Rural/Village Views
- Proposed Accommodation:
- Reception Hall, Sitting Room, Dining Room, Kitchen, Utility Room, Cloakroom,
- Further Ground Floor Office/Bedroom4 with Bathroom
- First Floor Landing, 3 Further Bedrooms & 2 Bathrooms
- Open Ended Double Garage
Description
The Plot - Nestled on the very outskirts of the charming village of East Coker, this exceptional building plot with FULL PLANNING totalling 1.68 acres presents a unique opportunity for those looking to create their dream home in a picturesque setting. The land is ideally situated, offering a tranquil environment while still being conveniently close to local amenities and transport links.
East Coker is renowned for its rich history and beautiful countryside, making it an attractive location for families and individuals alike. The plot benefits from a peaceful atmosphere, adjoining lush green fields/countryside along with stunning views, perfect for those who appreciate nature and outdoor living.
This building plot provides ample space for a bespoke residence, allowing you to design a home that perfectly suits your lifestyle and preferences. With the potential for modern living in a traditional village setting, this opportunity is not to be missed.
Whether you are looking to invest in a new project or seeking a serene place to settle down, this land in East Coker offers the perfect canvas for your vision. Embrace the chance to build a home that reflects your personal style in a community that boasts both charm and convenience.
Situation - East Coker is one of the area’s prettiest and most sought-after villages and lies just to the southwest of Sherborne and Yeovil, close to the Dorset/Somerset border.
The village is predominantly built of period properties from the local hamstone and has a primary school, church, pub, farm shop and village cafe. Yeovil is just a few minutes' drive away with various shopping, business and leisure amenities, as well as mainline rail connections. The surrounding countryside is rich in recreational activities and walks; Sutton Bingham Reservoir hosts a range of water sports nearby.
Nearby Yeovil being the regional centre has its lovely Country Park boasting 127 acres of beautiful countryside with its network of footpaths and waterways, riverside and woodland walks following the path of the River Yeo. The 20 acres that makes up Ninesprings is believed to have been developed as an ornamental park, for the Aldon Estate. You can enjoy plentiful walks leading to Aldon Park with wide open spaces, ideal for dog walking.
Yeovil is a very sporty town with a number of golf courses in the area, rugby union played at club level and Yeovil Town Football Club otherwise known as the Glovers.
There is a wide choice of schools locally, both in the independent and state sectors.
There are extensive opportunities for equestrian sport and active sailing clubs are based at the aforementioned Sutton Bingham Reservoir and in the Chew Valley.
Located close to the Somerset/Dorset border, the area provides a comprehensive range of excellent shopping, business and cultural facilities along with a desirable collection of restaurants, public houses and cafés.
Ham Hill to the west is centred on a huge Iron Age hill fort and is popular for picnicking, walking and mountain biking in the grassy hollows of the old quarry workings.
Yeovil has some excellent road and rail links across the south and to London, making this a very desirable countryside location. There are two mainline railway stations at Yeovil Junction and Pen Mill with frequent daily trains to Exeter, Bristol and London Waterloo. The town is also served by four international airports – Bristol, Exeter, Bournemouth and Cardiff, all within reasonable driving distance.
Directions - What3words:
///goes.excellent.rips
Services - Interested parties should make their own enquiries regarding services close to hand.
Planning Permission - FULL planning permission has been granted for a substantial detached SELF BUILD house and open sided double garage - Planning ref: 21/02947/FUL. (16th April 2025).
Material Information - The current owners of the site have agreed to pay the costs of the Phosphate mitigation.
With the planning permission being for a self build, the purchasers would not be liable for CIL charges providing the property is for their own residential use.
The site is within a conservation area.
Brochures
East Coker, YeovilEast Coker, Yeovil
NEAREST STATIONS
Distances are straight line measurements from the centre of the postcode- Yeovil Junction Station2.1 miles
- Yeovil Pen Mill Station3.1 miles
- Thornford Station3.3 miles
Notes
Disclaimer - Property reference 34071048. The information displayed about this property comprises a property advertisement. Rightmove.co.uk makes no warranty as to the accuracy or completeness of the advertisement or any linked or associated information, and Rightmove has no control over the content. This property advertisement does not constitute property particulars. The information is provided and maintained by Symonds & Sampson, Yeovil. Please contact the selling agent or developer directly to obtain any information which may be available under the terms of The Energy Performance of Buildings (Certificates and Inspections) (England and Wales) Regulations 2007 or the Home Report if in relation to a residential property in Scotland.
Map data ©OpenStreetMap contributors.











