22 Waterside Landing, LS10 1GU

- PROPERTY TYPE
Terraced
- BEDROOMS
3
- BATHROOMS
2
- SIZE
1,181 sq ft
110 sq m
- TENUREDescribes how you own a property. There are different types of tenure - freehold, leasehold, and commonhold.Read more about tenure in our glossary page.
Ask agent
Key features
- South-West facing sun terrace overlooking greenery
- Direct riverside location - 30 second walk to the tow path
- Gas free - 100% renewable energy with utilities company owned directly by residents
- 1 house bathroom with bath, 1 shower room & 2 W/C
- Direct access to landscaped patio
- Open plan living, kitchen and dining area
- Dual aspect design
- Low carbon living
- Floor to ceiling triple glazed windows
Description
3 bedrooms
2 bathrooms
High performance insulation
South facing triple glazed windows - 24% more efficient than a standard double glazed window
Solar panels across the development
High levels of air tightness - meaning there are no drafts in your home
Gas-free- all homes are installed with a Mechanical Ventilation Heat Recovery system (MVHR) to bring in a constant flow of fresh air.
Air Source Heat Pump installed
Outdoor Space
This home has a balcony, giving you the freedom to make the most of your own private space.
At the Climate Innovation District there is a dedicated landscaping team who ensure all our communal green spaces are beautifully presented with native species of trees, flowers, shrubs and various types of edibles.
Placemaking is an integral part of the places we create which is why we have integrated nets, trampolines and a basketball court into the landscape, for all to enjoy. There is also shared decking that overlooks the River Aire and is surrounded by greenery - perfect to enjoy on a warm summer evening.
Our vision is to also create Happy Park - a public realm and green space that features a small football pitch, a tennis court wall, an orchard, and an abundance of fruit trees.
Community Interest Company
Every purchaser becomes a part of the Community Interest Company when they purchase a Citu property, which gives you more control over the place - specifically, the public space, and the utilities infrastructure.
Parking
Its central location allows you to maximise on eco-friendly living practices, supported by free on-site bike storage and provisions for electric car charging stations, making the switch to zero-carbon transport easy.
Of the limited parking we do have, it is on a first come, first served basis at an additional cost, and dependent on the type of property that is being purchased.
The Area
You'll be living in a riverside setting where people take precedence over cars, green space is abundant, and you can access all that the wider community has to offer easily by foot, bus or bike. Here's a few of our favourite and most convenient places nearby;
Leeds Dock: 6 minutes' walk. North Star Coffee and Bakery, Nova Bakehouse, Condition Gym, Department co working space, Canary Bar, Pizza Express, Yoga Hero, Tesco Express
Brewery Wharf: 12 minutes' walk. The Tetley, The Adelphi, HOME, Sainsbury's
Leeds Railway Station: 22 minutes' walk Trains to almost everywhere
Pig Love Bar: 30 seconds' walk. Enjoy our very own on-site bar serving their own delicious beverages with various pop up food vans
Trans-Pennine Trail: 30 seconds' walk. 207 miles of bike or walking routes connecting Southport to Hornsea.
With a wide range of homes available, ranging from a 1 bed apartment to a 4 bed townhouse with a roof terrace and everything in between, the community of The Climate Innovation District has something for everyone.
Pop into our show home - open Saturday and Sundays between 11-3pm.
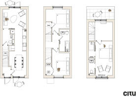
Please note all CGIs and floor plans are used for illustrative purposes only.
- COUNCIL TAXA payment made to your local authority in order to pay for local services like schools, libraries, and refuse collection. The amount you pay depends on the value of the property.Read more about council Tax in our glossary page.
- Ask agent
- PARKINGDetails of how and where vehicles can be parked, and any associated costs.Read more about parking in our glossary page.
- Yes
- GARDENA property has access to an outdoor space, which could be private or shared.
- Yes
- ACCESSIBILITYHow a property has been adapted to meet the needs of vulnerable or disabled individuals.Read more about accessibility in our glossary page.
- Ask agent
Energy performance certificate - ask agent
22 Waterside Landing, LS10 1GU
Add an important place to see how long it'd take to get there from our property listings.
__mins driving to your place
Get an instant, personalised result:
- Show sellers you’re serious
- Secure viewings faster with agents
- No impact on your credit score
Your mortgage
Notes
Staying secure when looking for property
Ensure you're up to date with our latest advice on how to avoid fraud or scams when looking for property online.
Visit our security centre to find out moreDisclaimer - Property reference 411A. The information displayed about this property comprises a property advertisement. Rightmove.co.uk makes no warranty as to the accuracy or completeness of the advertisement or any linked or associated information, and Rightmove has no control over the content. This property advertisement does not constitute property particulars. The information is provided and maintained by Vision Properties, Leeds. Please contact the selling agent or developer directly to obtain any information which may be available under the terms of The Energy Performance of Buildings (Certificates and Inspections) (England and Wales) Regulations 2007 or the Home Report if in relation to a residential property in Scotland.
*This is the average speed from the provider with the fastest broadband package available at this postcode. The average speed displayed is based on the download speeds of at least 50% of customers at peak time (8pm to 10pm). Fibre/cable services at the postcode are subject to availability and may differ between properties within a postcode. Speeds can be affected by a range of technical and environmental factors. The speed at the property may be lower than that listed above. You can check the estimated speed and confirm availability to a property prior to purchasing on the broadband provider's website. Providers may increase charges. The information is provided and maintained by Decision Technologies Limited. **This is indicative only and based on a 2-person household with multiple devices and simultaneous usage. Broadband performance is affected by multiple factors including number of occupants and devices, simultaneous usage, router range etc. For more information speak to your broadband provider.
Map data ©OpenStreetMap contributors.




