High Street, Mundesley

- PROPERTY TYPE
Detached
- BEDROOMS
3
- BATHROOMS
2
- SIZE
Ask agent
- TENUREDescribes how you own a property. There are different types of tenure - freehold, leasehold, and commonhold.Read more about tenure in our glossary page.
Freehold
Key features
- Spacious Executive Detached Home
- Situated within the Heart of Village
- Beautifully Presented Throughout
- Approx. Quarter of an Acre Plot
Description
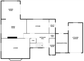
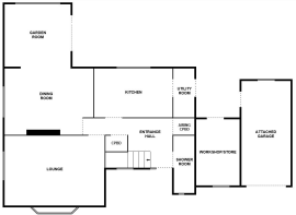
Originally designed to be a four bedroom house, the property is currently arranged to provide three large double bedrooms and a family bathroom on the first floor. A bright, double-aspect lounge, dining room and garden room extension provide ample reception space. The spacious entrance hall, fitted kitchen, separate utility room and recently re-fitted shower room complete the ground floor.
Adjoining the house are a brick workshop/store shed and a single garage. The secure driveway to the front provides off road parking space for several vehicles behind double gates and a flint wall.
Further benefits include gas fired central heating to radiators, upvc double glazing, built-in wardrobes in each of the bedrooms and a high standard of presentation throughout.
Location Mundesley is a delightful coastal village which is both a peaceful summer retreat and a vibrant all-year round community. Sandy beaches, flint faced cottages and colourful beach huts characterise the village throughout the summer, when residents and visitors enjoy its pleasant surroundings without the hustle and bustle of larger coastal resorts.
The village of Mundesley offers a range of local amenities including shops, doctors surgery, village school, library, public houses, tea rooms, church and a nine hole golf course.
More extensive facilities are available within North Walsham including schools and train services to Norwich which is just over twenty miles to the south of Mundesley. The region is accessible by road and rail with the A11/M11 to London and main line rail connection to London/Liverpool Street Station taking approximately 100 minutes from Norwich Station. The rapidly expanding Norwich Airport offers domestic and European flights.
The North Norfolk coastline, much of which is classified as an area of outstanding natural beauty includes bird sanctuaries, beaches and sailing.
Accommodation UPvc sealed unit double glazed front entrance door opening to:
Entrance Hall Panelled doors to lounge, dining room, kitchen and shower room, staircase to first floor with storage cupboard under, upvc sealed unit double glazed window to front, built-in airing cupboard housing water softener.
Lounge 17' 11" x 11' 10" (5.46m x 3.61m) Double aspect room with uPvc sealed unit double glazed windows to front and side, fireplace with pamment tiled hearth housing multi-fuel burner, radiator, TV aerial point, textured ceiling.
Dining Room 15' 6" max x 12' 4" (4.72m x 3.76m) Engineered wood floor, radiator, upvc sealed unit double glazed window to side, textured ceiling, opening to:
Garden Room 12' 4" x 11' 8" (3.76m x 3.56m) Bifold doors to side leading to garden, full height double glazed panels to rear, radiator, engineered wood floor, vaulted ceiling with inset spotlights.
Kitchen 13' 9" x 8' 7" (4.19m x 2.62m) Fitted with a range of matching base units and wall cupboards, corner display shelves, roll top work surfaces with tiled splash backs, inset single drainer ceramic sink unit with mixer tap (including separate feed for filtered drinking water), built-in eye level oven, inset hob unit with extractor hood over, space and plumbing for automatic dishwasher, space for fridge/freezer, uPvc sealed unit double glazed window to rear, tiled floor, textured ceiling, panelled door to:
Utility Room 8' 7" x 3' 10" (2.62m x 1.17m) Fitted work surface with space and plumbing for automatic washing machine under, wall mounted gas fired boiler, tiled floor, textured ceiling, door to side.
Shower Room 9' 4" x 4' (2.84m x 1.22m) Re-fitted with matching white suite comprising WC with concealed cistern, wash hand basin with cupboard under and mixer tap, shower cubicle with fitted screen and shower-board surround, heated towel rail, uPvc sealed unit double glazed window to front, textured ceiling with inset spotlights.
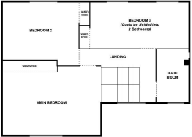
Landing Panelled doors to all rooms, radiator, textured ceiling with access to loft space.
Main Bedroom 17' 11" x 12' 2" (5.46m x 3.71m) UPvc sealed unit double glazed window to front, radiator, fitted wardrobes, telephone point, textured ceiling.
Bedroom 2 14' 2" x 10' 11" (4.32m x 3.33m) UPvc sealed unit double glazed window to rear, radiator, built-in wardrobe, textured ceiling.
Bedroom 3 (Potential to divide into two bedrooms) 17' 8" x 8' 7" (5.38m x 2.62m) Originally intended to be two bedrooms. Two uPvc sealed unit double glazed windows to rear, two radiators, built-in wardrobe, textured ceiling.
Family Bathroom 9' 9" x 5' 6" (2.97m x 1.68m) Matching white suite comprising pedestal hand basin with mixer tap, close coupled corner WC, panelled bath with fully tiled surround, fitted screen and shower over. Remaining walls half tiled. Heated towel rail, radiator, shaver point, uPvc sealed unit double glazed windows to front and side, inset ceiling spotlights.
Outside The property occupies an enviable plot extending to approximately a quarter of an acre (subject to measured survey) with delightful secluded gardens.
Double gates open into a generous gravelled driveway, providing off road parking space for several vehicles. The front garden is predominantly laid to lawn, with a selection of established shrubs and trees, behind a flint wall.
Adjoining the house is the brick workshop/store which measures 12' 10" x 7' 9" (3.91m x 2.36m) with uPvc sealed unit double glazed window to front, light and power connected and door accessed from the rear garden.
The attached garage measures 18' 1" x 9' (5.51m x 2.74m) with up and over door to the front, uPvc sealed unit double glazed window to the rear, light and power connected and personal side door from the rear garden.
The rear garden includes a large lawn, interspersed with a variety of mature trees and shrubs. Raised decking adjoins the bifold doors from the garden room, enjoying plenty of sun, and further down the garden there is a greenhouse and timber shed.
Referrals Acorn Properties are pleased to recommend a variety of local businesses to our customers.
In most instances, these recommendations are made with no financial benefit to Acorn Properties.
However, if we refer our clients to our trusted local Solicitors, Surveyors or Financial Services, Acorn Properties may receive a 'referral fee' from these local businesses.
If a referral to our trusted local solicitors is successful, Acorn Properties receive a referral fee of £100 - £180 following the successful completion of the relevant sale or purchase. There is no obligation for any of our clients to use our recommended solicitors, but we find the existing relationships we have with these firms can be beneficial to all parties.
For each successful Financial Services referral Acorn Properties will receive an introducer's fee which is between 25 - 30% of the net initial commission/broker fee received by the advisor. There is no obligation for our clients to use our recommended mortgage services.
For each successful Surveyors referral Acorn Properties will receive a fee of between £30 and £100. There is no obligation for our clients to use our recommended Surveyors.
- COUNCIL TAXA payment made to your local authority in order to pay for local services like schools, libraries, and refuse collection. The amount you pay depends on the value of the property.Read more about council Tax in our glossary page.
- Band: E
- PARKINGDetails of how and where vehicles can be parked, and any associated costs.Read more about parking in our glossary page.
- Garage,Off street
- GARDENA property has access to an outdoor space, which could be private or shared.
- Yes
- ACCESSIBILITYHow a property has been adapted to meet the needs of vulnerable or disabled individuals.Read more about accessibility in our glossary page.
- Ask agent
High Street, Mundesley
Add an important place to see how long it'd take to get there from our property listings.
__mins driving to your place
Get an instant, personalised result:
- Show sellers you’re serious
- Secure viewings faster with agents
- No impact on your credit score



Your mortgage
Notes
Staying secure when looking for property
Ensure you're up to date with our latest advice on how to avoid fraud or scams when looking for property online.
Visit our security centre to find out moreDisclaimer - Property reference 102987002006. The information displayed about this property comprises a property advertisement. Rightmove.co.uk makes no warranty as to the accuracy or completeness of the advertisement or any linked or associated information, and Rightmove has no control over the content. This property advertisement does not constitute property particulars. The information is provided and maintained by Acorn Properties, North Walsham. Please contact the selling agent or developer directly to obtain any information which may be available under the terms of The Energy Performance of Buildings (Certificates and Inspections) (England and Wales) Regulations 2007 or the Home Report if in relation to a residential property in Scotland.
*This is the average speed from the provider with the fastest broadband package available at this postcode. The average speed displayed is based on the download speeds of at least 50% of customers at peak time (8pm to 10pm). Fibre/cable services at the postcode are subject to availability and may differ between properties within a postcode. Speeds can be affected by a range of technical and environmental factors. The speed at the property may be lower than that listed above. You can check the estimated speed and confirm availability to a property prior to purchasing on the broadband provider's website. Providers may increase charges. The information is provided and maintained by Decision Technologies Limited. **This is indicative only and based on a 2-person household with multiple devices and simultaneous usage. Broadband performance is affected by multiple factors including number of occupants and devices, simultaneous usage, router range etc. For more information speak to your broadband provider.
Map data ©OpenStreetMap contributors.





