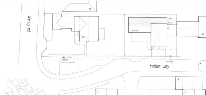
Oakley Road, Chinnor, Oxfordshire, OX39
- PROPERTY TYPE
Land
- SIZE
Ask agent
Description
Plot Size: 24m wide x 19m deep (456 sq.m)
Property Size: Plans approved for a sizeable three bedroom detached dwelling (1800 sq.ft)
Access: Road access via a quiet cul de sac, Timber Way.
Planning reference: P24/S0557/FUL
Brochures
ParticularsOakley Road, Chinnor, Oxfordshire, OX39
NEAREST STATIONS
Distances are straight line measurements from the centre of the postcode- Princes Risborough Station3.2 miles
- Saunderton Station4.0 miles
- Monks Risborough Station4.4 miles



Notes
Disclaimer - Property reference CNN250161. The information displayed about this property comprises a property advertisement. Rightmove.co.uk makes no warranty as to the accuracy or completeness of the advertisement or any linked or associated information, and Rightmove has no control over the content. This property advertisement does not constitute property particulars. The information is provided and maintained by Parkers Estate Agents, Chinnor. Please contact the selling agent or developer directly to obtain any information which may be available under the terms of The Energy Performance of Buildings (Certificates and Inspections) (England and Wales) Regulations 2007 or the Home Report if in relation to a residential property in Scotland.
Map data ©OpenStreetMap contributors.




