Skip to content
NEW HOME

2 bedroom semi-detached house for sale

Algarve, Tavira (Santa Maria e Santiago), Portugal

£435,100
€500,000
Casas Do Sotavento, Faro
PROPERTY TYPE

Semi-Detached

BEDROOMS

2

BATHROOMS

3

SIZE

1,399 sq ft

130 sq m

Key features

  • Near city center
  • Near shopping center
  • Near green areas
  • Parking
  • Bedrooms: 2
  • Near school
  • Near public transportation
  • Garage

Description

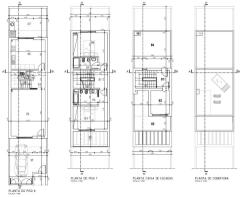
Houses of Typology T2 and T3 located in the Urbanization Marlin, next to the Footprint.

This villa consists of 3 floors that are distributed as follows:

- Ground floor composed of 2 patios, living room, kitchen and bathroom service;
- Floor 1 consisting of two bedrooms en suite, with built-in wardrobes, having one of them access to a spacious balcony uncovered.
- Penthouse with storage area and two terraces

Located in a residential area in the northern part of the city of Tavira. A short drive from the city centre where you can enjoy all kinds of commerce and services.

Area with urban transport (minibus).

Schedule your visit now!

---------

About The City of Tavira:

Tavira is a small town on the Algarve coast of Portugal. It extends along the Gilão River, which reaches the sea through the entrances of the lagoons of the Ria Formosa Natural Park.

The Island of Tavira has a long sandy beach and salt pans that attract flamingos, spoonspoons and other canisters.

Tavira is a city of a history very marked by Christian reconquest and some of its landmarks reflect this same history: the medieval castle of Tavira that offers views of the city, the Roman Bridge that crosses the River Gilão, and its churches that hold true treasures.

All these characteristics enthrall those who visit this city make them want to stay here.

Living in Tavira is never wanting to live anywhere else.

Casas do Sotavento is a family business, recognized at home and abroad, by customers, employees, investors, for the quality of our actions and our project. Our mission is to provide an easy and peaceful experience. Our concern, to treat everyone as we would like to be treated.
Energy Rating: A+
#ref:CS-MOR-93147.LT-9

Algarve, Tavira (Santa Maria e Santiago), Portugal

NEAREST AIRPORTS

Distances are straight line measurements
  • Faro(International)
    19.5 miles

Advice on buying Portuguese property

Learn everything you need to know to successfully find and buy a property in Portugal.

About Casas Do Sotavento, Faro

The Casas do Sotavento real estate company was founded in 2000 with the aim of being the leading real estate agency in the eastern Algarve. We stand out for our commitment to technological development, being present in around 220 national and foreign portals and personal pages. We provide a personalized accompaniment, we create solutions tailored to each client. We manage more than 2,000 properties from individuals, companies, banking and partnerships. All of our professionals guarantee strict management of mediation contracts and purchase and sale processes. Finally, we provide consultancy to all our clients, we also use modern and computerized means for business management.

Notes

These notes are private, only you can see them.

This is a property advertisement provided and maintained by Casas Do Sotavento, Faro (reference 283622_17750833) and does not constitute property particulars. Whilst we require advertisers to act with best practice and provide accurate information, we can only publish advertisements in good faith and have not verified any claims or statements or inspected any of the properties, locations or opportunities promoted. Rightmove does not own or control and is not responsible for the properties, opportunities, website content, products or services provided or promoted by third parties and makes no warranties or representations as to the accuracy, completeness, legality, performance or suitability of any of the foregoing. We therefore accept no liability arising from any reliance made by any reader or person to whom this information is made available to. You must perform your own research and seek independent professional advice before making any decision to purchase or invest in overseas property.

Email agent

Email agent