
Main Street, Threshfield, Skipton, North Yorkshire, BD23

- PROPERTY TYPE
Terraced
- BEDROOMS
2
- BATHROOMS
1
- SIZE
958 sq ft
89 sq m
- TENUREDescribes how you own a property. There are different types of tenure - freehold, leasehold, and commonhold.Read more about tenure in our glossary page.
Freehold
Key features
- Two bedrooms
- Grade II Listed character cottage
- Enclosed low maintenance rear garden
- Village location within Yorkshire Dales National Park
- Accommodation over three floors
- Suitable for investment/first time buyers
- No onward chain
Description
NO ONWARD CHAIN
The Goblins is a delightful two bedroom stone built cottage with a private courtyard garden and attractive views toward the village green. Dating back to 1651 the property has been sympathetically maintained, retaining its original character features.
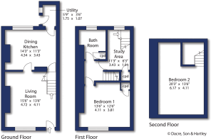
The ground floor comprises a charming spacious and sitting room boasting many period features including exposed beams and stonework and a large stone open fireplace. The windows to the front of the property ensure the room enjoys much natural light. To the rear is a dining kitchen with original stone flag floor and recently installed shaker style fitted kitchen with induction hob and electric oven, useful understairs storage cupboard and windows looking to the courtyard garden. Off the kitchen is a separate utility room with boiler, plumbing and space for a washing machine and dryer and providing access to the garden.
A staircase from the sitting room leads to the first floor with the master bedroom to the front of the property, offering pleasant views, fitted cupboard, ample space for additional free-standing wardrobes and a window seat. Across the landing, is the house bathroom which includes a panelled bath with shower over, pedestal hand wash basin, low flush w.c., radiator, partially tiled walls and cupboard housing the hot water tank. The landing also leads to a small study area with window to the rear, additional storage cupboard and staircase to the second floor which is where the second good sized double bedroom is located along with useful eaves storage space.
Externally, the property offers a low maintenance and enclosed south facing courtyard garden area to the rear with dry stone walling, as well as the inclusion of decorative borders.
Local Authority & Council Tax Band
• North Yorkshire Council
• Council Tax Band C
Tenure, Services & Parking
• Freehold
• Mains electricity drainage and gas are installed with domestic heating is from a gas fired boiler. There is a private water supply from Threshfield Water Company
• Please note that there is no allocated parking, however on street parking is available
• Please note that this property is located within the Yorkshire Dales National Park
• Please note that there is a right of way across the rear of the adjacent property
Internet & Mobile Coverage
For information on Internet and Mobile coverage access the Ofcom website from this link
Flooding
For information on flood risks please use this link Check for flooding in England - GOV.UK
Situated in this sought after Dales village, near to the picturesque, cobbled square at Grassington and some 9 miles north of the bustling market town of Skipton with its historical castle and regular colourful street market. The immediate area provides excellent amenities which include schooling for all ages, shops, small supermarket and medical centre. Many of the larger business centres of West Yorkshire and East Lancashire are also within daily commuting distance. The attractive village of Threshfield is also surrounded by the stunning landscape of the Yorkshire Dales National Park.
From Skipton take the Grassington road passing through the villages of Rylstone, Cracoe and entering into Threshfield. Follow the road, over the hump backed bridge and after a short distance bear right on to Main Street where the property will be easily identified on the right hand side by our Dacre, Son and Hartley ‘For Sale’ board opposite the village green.
Brochures
Particulars- COUNCIL TAXA payment made to your local authority in order to pay for local services like schools, libraries, and refuse collection. The amount you pay depends on the value of the property.Read more about council Tax in our glossary page.
- Band: C
- LISTED PROPERTYA property designated as being of architectural or historical interest, with additional obligations imposed upon the owner.Read more about listed properties in our glossary page.
- Listed
- PARKINGDetails of how and where vehicles can be parked, and any associated costs.Read more about parking in our glossary page.
- On street,Not allocated
- GARDENA property has access to an outdoor space, which could be private or shared.
- Yes
- ACCESSIBILITYHow a property has been adapted to meet the needs of vulnerable or disabled individuals.Read more about accessibility in our glossary page.
- No wheelchair access
Main Street, Threshfield, Skipton, North Yorkshire, BD23
Add an important place to see how long it'd take to get there from our property listings.
__mins driving to your place
Get an instant, personalised result:
- Show sellers you’re serious
- Secure viewings faster with agents
- No impact on your credit score
Your mortgage
Notes
Staying secure when looking for property
Ensure you're up to date with our latest advice on how to avoid fraud or scams when looking for property online.
Visit our security centre to find out moreDisclaimer - Property reference ILK250134. The information displayed about this property comprises a property advertisement. Rightmove.co.uk makes no warranty as to the accuracy or completeness of the advertisement or any linked or associated information, and Rightmove has no control over the content. This property advertisement does not constitute property particulars. The information is provided and maintained by Dacre Son & Hartley, Skipton. Please contact the selling agent or developer directly to obtain any information which may be available under the terms of The Energy Performance of Buildings (Certificates and Inspections) (England and Wales) Regulations 2007 or the Home Report if in relation to a residential property in Scotland.
*This is the average speed from the provider with the fastest broadband package available at this postcode. The average speed displayed is based on the download speeds of at least 50% of customers at peak time (8pm to 10pm). Fibre/cable services at the postcode are subject to availability and may differ between properties within a postcode. Speeds can be affected by a range of technical and environmental factors. The speed at the property may be lower than that listed above. You can check the estimated speed and confirm availability to a property prior to purchasing on the broadband provider's website. Providers may increase charges. The information is provided and maintained by Decision Technologies Limited. **This is indicative only and based on a 2-person household with multiple devices and simultaneous usage. Broadband performance is affected by multiple factors including number of occupants and devices, simultaneous usage, router range etc. For more information speak to your broadband provider.
Map data ©OpenStreetMap contributors.






