Humphrey Road, Sheffield

- PROPERTY TYPE
Semi-Detached
- BEDROOMS
5
- BATHROOMS
2
- SIZE
Ask agent
- TENUREDescribes how you own a property. There are different types of tenure - freehold, leasehold, and commonhold.Read more about tenure in our glossary page.
Freehold
Description
Virtual Walk Through Available
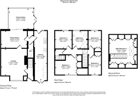
We are delighted to offer to the market this superbly extended, five bedroomed semi-detached property situated in the highly regarded suburb of Greenhill. Conveniently placed for local shops, amenities and excellent transport links, this well proportioned house would be ideal for a professional family. In brief the accommodation comprises: entrance hallway, breakfasting kitchen, lounge, dining room, downstairs WC, conservatory, utility area, five bedrooms, one with en-suite shower and a large family bathroom. To the front is a driveway providing off-road parking. A viewing is highly advised to appreciate the size and standard of accommodation on offer.
Tenure: Freehold
Entrance Hallway - Entrance through front facing UPVC door into entrance hallway. Having carpeted flooring, half panelled walls, useful storage cupboard and gas central heating radiator.
Lounge - 4.15m x 4.20m (13'7" x 13'9") - A well presented reception room having front facing UPVC double glazed window, laminate flooring, gas central heating radiator, and fire with feature surround and marble hearth.
Dining Room - 4.22m x 2.73m (13'10" x 8'11" ) - Having laminate flooring, gas central heating radiator and UPVC sliding doors leading to conservatory
Breakfasting Kitchen - 1.93m x 8.06m (6'3" x 26'5" ) - Large breakfasting kitchen fitted with a good range of white wall and base units with contrasting roll edge worktops incorporating one and a half bowl stainless steel sink with chrome mixer tap. Having front facing UPVC double glazed obscure glass French doors and rear facing UPVC door leading to rear garden. Benefiting from freestanding oven with 4 ring gas hob and space for under counter fridge/freezer. Also having breakfast bar, gas central heating radiator and laminate flooring.
Conservatory - 3.94m x 3.30m (12'11" x 10'9") - Large conservatory having laminate flooring, UPVC double glazed windows and doors leading to rear garden.
Utility Area - Utility room providing space and plumbing for washing machine
Downstairs Wc - Having tiled flooring, vanity sink, gas central heating radiator and WC
Bedroom One - 3.59m x 3.22m (11'9" x 10'6" ) - Well proportioned principal bedroom having front facing UPVC double glazed window, gas central heating radiator, carpeted flooring and built-in wardrobes. Also having hidden built-in shower.
En Suite Shower Room - Part tiled and accessed through fitted wardrobes. Having glass fronted shower cubicle with electric shower and towel rail.
Bedroom Two - 2.66m x 2.82m (8'8" x 9'3" ) - Having rear facing UPVC double glazed window, gas central heating radiator and carpeted flooring.
Bedroom Three - 4.05m x 4.06m (13'3" x 13'3" ) - Attic bedroom accessed via carpeted stairs from first floor. Double bedroom having side facing Velux window and carpeted flooring. Also benefiting from built-in vanity area and storage in the eaves.
Bedroom Four - 2.01m x 3.12m (6'7" x 10'2" ) - Further double bedroom having front facing UPVC double glazed window, carpeted flooring and gas central heating radiator. Also having built-in wardrobes.
Bedroom Five - 2.01m x 3.12m (6'7" x 10'2" ) - A good sized rear facing bedroom having UPVC double glazed window, gas central heating radiator, carpeted flooring and built-in storage.
Bathroom - 2.40m x 2.87m (7'10" x 9'4" ) - Fully tiled bathroom fitted with a large corner bath, pedestal wash hand basin, WC and bidet. Also having gold heated towel rail and rear facing UPVC double glazed window.
Outside - To the front of the property there is a large gated driveway providing off road parking.
The enclosed rear garden is mainly laid to lawn. Also benefiting from additional seating areas and outdoor storage facility housing boiler and providing ideal space for garden furniture.
Brochures
Humphrey Road, SheffieldBrochure- COUNCIL TAXA payment made to your local authority in order to pay for local services like schools, libraries, and refuse collection. The amount you pay depends on the value of the property.Read more about council Tax in our glossary page.
- Band: A
- PARKINGDetails of how and where vehicles can be parked, and any associated costs.Read more about parking in our glossary page.
- Yes
- GARDENA property has access to an outdoor space, which could be private or shared.
- Yes
- ACCESSIBILITYHow a property has been adapted to meet the needs of vulnerable or disabled individuals.Read more about accessibility in our glossary page.
- Ask agent
Humphrey Road, Sheffield
Add an important place to see how long it'd take to get there from our property listings.
__mins driving to your place
Get an instant, personalised result:
- Show sellers you’re serious
- Secure viewings faster with agents
- No impact on your credit score
Your mortgage
Notes
Staying secure when looking for property
Ensure you're up to date with our latest advice on how to avoid fraud or scams when looking for property online.
Visit our security centre to find out moreDisclaimer - Property reference 33356362. The information displayed about this property comprises a property advertisement. Rightmove.co.uk makes no warranty as to the accuracy or completeness of the advertisement or any linked or associated information, and Rightmove has no control over the content. This property advertisement does not constitute property particulars. The information is provided and maintained by SK Estate Agents, Sheffield. Please contact the selling agent or developer directly to obtain any information which may be available under the terms of The Energy Performance of Buildings (Certificates and Inspections) (England and Wales) Regulations 2007 or the Home Report if in relation to a residential property in Scotland.
*This is the average speed from the provider with the fastest broadband package available at this postcode. The average speed displayed is based on the download speeds of at least 50% of customers at peak time (8pm to 10pm). Fibre/cable services at the postcode are subject to availability and may differ between properties within a postcode. Speeds can be affected by a range of technical and environmental factors. The speed at the property may be lower than that listed above. You can check the estimated speed and confirm availability to a property prior to purchasing on the broadband provider's website. Providers may increase charges. The information is provided and maintained by Decision Technologies Limited. **This is indicative only and based on a 2-person household with multiple devices and simultaneous usage. Broadband performance is affected by multiple factors including number of occupants and devices, simultaneous usage, router range etc. For more information speak to your broadband provider.
Map data ©OpenStreetMap contributors.