
Alwin Grove, Dinnington, Newcastle Upon Tyne

- PROPERTY TYPE
 Detached
- BEDROOMS
 3
- BATHROOMS
 3
- SIZE
 Ask agent
- TENUREDescribes how you own a property. There are different types of tenure - freehold, leasehold, and commonhold.Read more about tenure in our glossary page.
 Freehold
Key features
- Stunning Property
 - Detached Family Home
 - Superbly Presented
 - Extended
 - Three Bedrooms
 - Ground Floor WC
 - Freehold
 - Council Tax Band *D*
 - Semi-Rural Location
 - Viewing Essential
 
Description
This beautifully presented and architecturally extended detached home is a rare gem, nestled in the heart of the semi-rural village of Dinnington. Offering the perfect blend of countryside tranquillity and city convenience.
Residents benefit from a variety of local shops and essential services, while larger retail and leisure facilities are easily accessible in nearby Gosforth and Newcastle city centre. There are primary and secondary schools in the area, contributing to the area’s family-friendly appeal. Transport links are excellent, with easy access to the A1 and A19 for travel across the North East. Newcastle International Airport is just a short drive away.
From the moment you step inside, it’s clear this home has been finished to an exceptional standard throughout. The thoughtfully designed extension creates a striking and spacious living environment, ideal for modern family life and stylish entertaining.
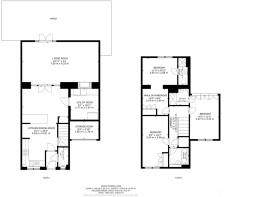
The property opens with a welcoming entrance lobby complete with a convenient ground floor WC. A stylish fitted kitchen, featuring quality integrated appliances, leads through double doors to the striking lounge and family area which is flooded with natural light via skylights and French doors, which open directly onto the beautifully landscaped rear garden. A handy utility room adds practicality to the ground floor layout. Upstairs, there are three well-proportioned double bedrooms, two with contemporary en-suite shower rooms and the main with walk in wardrobe. A modern family bathroom with WC and overhead shower completes the first floor. Externally, there is also a driveway to the front and storage with garage door access.
This home is faultless in both design and finish. Early viewing is essential to fully appreciate all that this stunning property has to offer. For more information please call .
Council Tax Band *D*
Living/Family Room - 7.60 x 4.25 (24'11" x 13'11") -
Kitchen - 4.59 x 8.01 (15'0" x 26'3") -
Utility Room - 2.77 x 3.07 (9'1" x 10'0") -
Bedroom One - 3.45 x 2.68 (11'3" x 8'9") -
Walk In Wardrobe - 2.54 x 2.529 (8'3" x 8'3") -
Bedroom Two - 2.54 x 5.06 (8'3" x 16'7") -
Bedroom Three - 2.87 x 4.33 (9'4" x 14'2") -
Tenure - The agent understands the property to be freehold. However, this should be confirmed with a licensed legal representative.
Brochures
Alwin Grove, Dinnington, Newcastle Upon Tyne- COUNCIL TAXA payment made to your local authority in order to pay for local services like schools, libraries, and refuse collection. The amount you pay depends on the value of the property.Read more about council Tax in our glossary page.
 - Ask agent
 - PARKINGDetails of how and where vehicles can be parked, and any associated costs.Read more about parking in our glossary page.
 - Yes
 - GARDENA property has access to an outdoor space, which could be private or shared.
 - Yes
 - ACCESSIBILITYHow a property has been adapted to meet the needs of vulnerable or disabled individuals.Read more about accessibility in our glossary page.
 - Ask agent
 
Alwin Grove, Dinnington, Newcastle Upon Tyne
Add an important place to see how long it'd take to get there from our property listings.
__mins driving to your place
Get an instant, personalised result:
- Show sellers you’re serious
 - Secure viewings faster with agents
 - No impact on your credit score
 

Your mortgage
Notes
Staying secure when looking for property
Ensure you're up to date with our latest advice on how to avoid fraud or scams when looking for property online.
Visit our security centre to find out moreDisclaimer - Property reference 34074673. The information displayed about this property comprises a property advertisement. Rightmove.co.uk makes no warranty as to the accuracy or completeness of the advertisement or any linked or associated information, and Rightmove has no control over the content. This property advertisement does not constitute property particulars. The information is provided and maintained by Jan Forster Estates, Gosforth. Please contact the selling agent or developer directly to obtain any information which may be available under the terms of The Energy Performance of Buildings (Certificates and Inspections) (England and Wales) Regulations 2007 or the Home Report if in relation to a residential property in Scotland.
*This is the average speed from the provider with the fastest broadband package available at this postcode. The average speed displayed is based on the download speeds of at least 50% of customers at peak time (8pm to 10pm). Fibre/cable services at the postcode are subject to availability and may differ between properties within a postcode. Speeds can be affected by a range of technical and environmental factors. The speed at the property may be lower than that listed above. You can check the estimated speed and confirm availability to a property prior to purchasing on the broadband provider's website. Providers may increase charges. The information is provided and maintained by Decision Technologies Limited. **This is indicative only and based on a 2-person household with multiple devices and simultaneous usage. Broadband performance is affected by multiple factors including number of occupants and devices, simultaneous usage, router range etc. For more information speak to your broadband provider.
Map data ©OpenStreetMap contributors.





