Andalucia, Cádiz, San Roque, Spain
- PROPERTY TYPE
Terraced
- BEDROOMS
3
- BATHROOMS
2
- SIZE
3,014 sq ft
280 sq m
Key features
- communal swimming pool
- double glazing
- basement
- balcony
- sea views
- attached
- good condition
- apartment
- open kitchen
- garage included
Description
The home features three bedrooms, two full bathrooms and a guest toilet, providing a generous layout ideal for family living, hosting guests or accommodating remote work. The main floor welcomes you into a light-filled open-plan living and dining area with floor-to-ceiling windows that open onto a spacious terrace and private garden. A separate yet connected kitchen offers both functionality and flow, enhanced by a walk-in pantry and clean contemporary finishes.
Upstairs, the first floor includes three well-appointed bedrooms and two bathrooms, one of them en suite. The principal suite features direct access to a large west-facing terrace with sweeping views across the golf course. The additional two bedrooms are bright and spacious, both with access to a shared balcony. Built-in wardrobes in each room provide excellent storage, and the hallway connects the spaces efficiently for maximum comfort.
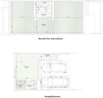
The top floor is dedicated entirely to a spectacular solarium terrace offering unobstructed golf and sunset views to the west. This expansive rooftop space is ideal for lounging, entertaining or creating an outdoor kitchen or chill-out zone. While this level does not currently include a fourth bedroom or bathroom, it offers ample space and flexibility for future upgrades, should one wish to expand the interior living area further.
On the lower level, the home includes a private double garage with internal access to the property, as well as a multi-use space that could function as a wine cellar, storage room or hobby area. The thoughtful design and layout ensure practicality without compromising elegance.
Set in a quiet and secure community surrounded by nature, the property offers an exceptional quality of life with on-site amenities such as a communal pool, landscaped areas and a modern gym. Its location in Sotogrande Alto places it just minutes from renowned golf courses, Sotogrande International School and the sophisticated marina with its restaurants, shops and services.
Ideal as a main residence or as a luxurious second home, this townhouse brings together privacy, lifestyle, and views in one of the most privileged enclaves of southern Spain.
Contact us for more information or to arrange a visit
Andalucia, Cádiz, San Roque, Spain
NEAREST AIRPORTS
Distances are straight line measurements- Gibraltar (North Front)(International)7.9 miles
- Jerez(International)52.1 miles
- Málaga(International)54.8 miles
- Sevilla (San Pablo)(International)84.9 miles
Advice on buying Spanish property
Learn everything you need to know to successfully find and buy a property in Spain.
Notes
This is a property advertisement provided and maintained by Golden Properties, Cadiz (reference RSA015T3) and does not constitute property particulars. Whilst we require advertisers to act with best practice and provide accurate information, we can only publish advertisements in good faith and have not verified any claims or statements or inspected any of the properties, locations or opportunities promoted. Rightmove does not own or control and is not responsible for the properties, opportunities, website content, products or services provided or promoted by third parties and makes no warranties or representations as to the accuracy, completeness, legality, performance or suitability of any of the foregoing. We therefore accept no liability arising from any reliance made by any reader or person to whom this information is made available to. You must perform your own research and seek independent professional advice before making any decision to purchase or invest in overseas property.






