
Hughes Close, Harvington

- PROPERTY TYPE
House
- BEDROOMS
3
- BATHROOMS
1
- SIZE
Ask agent
- TENUREDescribes how you own a property. There are different types of tenure - freehold, leasehold, and commonhold.Read more about tenure in our glossary page.
Freehold
Key features
- 3 Bedrooms
- Garage and Driveway
- Good Sized Rear Garden
- Enviable Position
- Popular Village Location
- Family Home
- In Need of Some Modernisation
- **VIEWINGS AVAILABLE 7 DAYS A WEEK**
Description
Front - Property is approached via a private driveway with ample parking for 3+ cars and gated side access.
Entrance Hallway - Carpeted flooring, radiator and access to lounge and stairs to 1st floor.
Lounge - UPVC DG windows to front aspect, carpet underfoot with access to Kitchen Diner.
Dining Area - Carpet underfoot, radiator, UPVC DG windows x2 to rear aspect open Kitchen Diner.
Kitchen - Mix of wall and base units, integrated sink and drainer, space for white goods, tiled flooring, UPVC DG window to rear aspect and door leading to side access/rear garden.
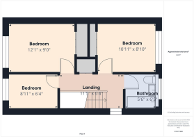
1st Floor Landing - Carpet underfoot, UPVC DG window to aide aspect and doors leading to Bedrooms 1,2 & 3 and family bathroom.
Family Bathroom - Carpet underfoot, fully tiled walls, stand alone wash hand basin, low flush wc, bath with shower over and UPVC DG window to rear aspect.
Bedroom 1 - Carpet underfoot, UPVC DG window to front aspect, radiator and integrated wardrobes.
Bedroom 2 - Carpet underfoot, UPVC DG window to rear aspect, radiator and integrated wardrobes.
Bedroom 3 - UPVC DG window to front aspect, radiator and carpet underfoot,
Garage - Attached single garage with concrete base, electric and lighting with rear/side access.
Rear Garden - Laid to lawn with secure fencing and gated side access.
Brochures
Hughes Close, Harvington- COUNCIL TAXA payment made to your local authority in order to pay for local services like schools, libraries, and refuse collection. The amount you pay depends on the value of the property.Read more about council Tax in our glossary page.
- Band: C
- PARKINGDetails of how and where vehicles can be parked, and any associated costs.Read more about parking in our glossary page.
- Yes
- GARDENA property has access to an outdoor space, which could be private or shared.
- Yes
- ACCESSIBILITYHow a property has been adapted to meet the needs of vulnerable or disabled individuals.Read more about accessibility in our glossary page.
- Ask agent
Energy performance certificate - ask agent
Hughes Close, Harvington
Add an important place to see how long it'd take to get there from our property listings.
__mins driving to your place
Get an instant, personalised result:
- Show sellers you’re serious
- Secure viewings faster with agents
- No impact on your credit score
Your mortgage
Notes
Staying secure when looking for property
Ensure you're up to date with our latest advice on how to avoid fraud or scams when looking for property online.
Visit our security centre to find out moreDisclaimer - Property reference 34075697. The information displayed about this property comprises a property advertisement. Rightmove.co.uk makes no warranty as to the accuracy or completeness of the advertisement or any linked or associated information, and Rightmove has no control over the content. This property advertisement does not constitute property particulars. The information is provided and maintained by Cooper & Co, Evesham. Please contact the selling agent or developer directly to obtain any information which may be available under the terms of The Energy Performance of Buildings (Certificates and Inspections) (England and Wales) Regulations 2007 or the Home Report if in relation to a residential property in Scotland.
*This is the average speed from the provider with the fastest broadband package available at this postcode. The average speed displayed is based on the download speeds of at least 50% of customers at peak time (8pm to 10pm). Fibre/cable services at the postcode are subject to availability and may differ between properties within a postcode. Speeds can be affected by a range of technical and environmental factors. The speed at the property may be lower than that listed above. You can check the estimated speed and confirm availability to a property prior to purchasing on the broadband provider's website. Providers may increase charges. The information is provided and maintained by Decision Technologies Limited. **This is indicative only and based on a 2-person household with multiple devices and simultaneous usage. Broadband performance is affected by multiple factors including number of occupants and devices, simultaneous usage, router range etc. For more information speak to your broadband provider.
Map data ©OpenStreetMap contributors.







