Land for sale
Bartie Gardens, Larkhall, ML9
- PROPERTY TYPE
Land
- SIZE
79,715 sq ft
7,406 sq m
Description
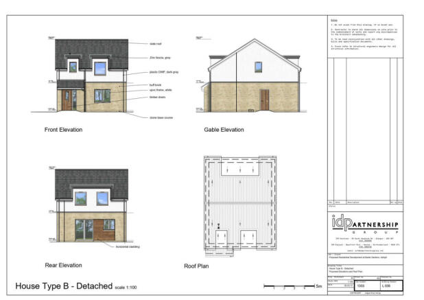
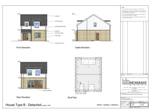
This fully consented site extends to approximately 0.74 hectares (1.83 acres) and benefits from detailed planning permission for 19 high-quality new homes, comprising:
16 semi-detached, 3-bedroom villas
3 detached, 3-bedroom villas
Each with **private gardens and two parking spaces
Set within a quiet semi-rural location, Bartie Gardens offers an attractive blend of countryside living with excellent commuter links, thanks to nearby Larkhall’s amenities, schools, and direct M74 access.
Key Features
Full planning permission granted (planning reference available on request)
19-unit layout - designed for modern family living
470 m² of landscaped open space - for residents to enjoy
Peaceful setting yet just minutes from Larkhall, Hamilton, and the motorway network
Strong local demand, with comparable new-build homes achieving **£195,000–£270,000**
A full information pack (including planning documentation, technical drawings, and site investigations) is available upon request.
Bartie Gardens, Larkhall, ML9
NEAREST STATIONS
Distances are straight line measurements from the centre of the postcode- Larkhall Station1.7 miles
- Merryton2.1 miles
- Wishaw Station2.9 miles
Notes
Disclaimer - Property reference RX605899. The information displayed about this property comprises a property advertisement. Rightmove.co.uk makes no warranty as to the accuracy or completeness of the advertisement or any linked or associated information, and Rightmove has no control over the content. This property advertisement does not constitute property particulars. The information is provided and maintained by Keller Williams Scotland, Scotland. Please contact the selling agent or developer directly to obtain any information which may be available under the terms of The Energy Performance of Buildings (Certificates and Inspections) (England and Wales) Regulations 2007 or the Home Report if in relation to a residential property in Scotland.
Map data ©OpenStreetMap contributors.






