
Plot for sale
Lot 3, Sharplaw Road, Jedburgh, Scottish Borders, TD8
- PROPERTY TYPE
Plot
- SIZE
Ask agent
Key features
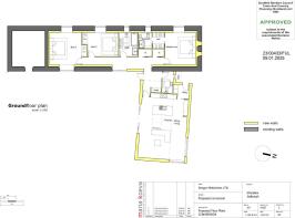
- Planning approved for 3-bed single-storey home (Ref: 23/00433/FUL)
- Spacious open-plan living, kitchen, and dining layout
- Private garden area and parking for four cars
- Peaceful rural setting with countryside views
- Ideal for permanent home, holiday let, or investment
- Available individually or with two other lots at Sharplaw
Description
Available individually or as part of the wider Sharplaw Development Site.
PROPERTY DESCRIPTION
Approved under planning (Ref: 23/00433/FUL), this former outbuilding has consent for conversion and extension into a well-proportioned single-storey home.
The approved accommodation comprises a large open-plan sitting room, dining area and kitchen, along with a utility room and WC.
There is a principal bedroom with en suite, two further double bedrooms and a family bathroom.
The property will benefit from its own garden area and parking for four cars, making it ideal as a permanent residence, holiday home or investment.
ACCOMMODATION COMPRISES
Lot 3 – The Conversion
Ground Floor:- Open Plan Sitting Room / Dining / Kitchen, Utility Room, W.C., Principal Bedroom (En-Suite), Bedroom 2, Bedroom 3, Family Bathroom
Outside:- Private Garden, Parking for Four Cars
DISTANCES
Tweedbank Train Station 14 miles, Galashiels 16 miles, Melrose 13 miles, Kelso 11 miles, Edinburgh Airport 54 miles, Berwick upon Tweed Train Station 34 miles (all mileage is approximate)
AREA INSIGHTS
Sharplaw Road enjoys a peaceful rural setting while being just a short drive from Jedburgh, a historic Borders town offering a full range of amenities, schooling, and convenient road links north to Edinburgh and south to Newcastle via the A68. The development site is well placed for those seeking a quiet countryside lifestyle within reach of town services, making it attractive to a wide range of buyers.
The Royal Burgh of Jedburgh, one of the oldest and most established of the Border towns and is home to many attractions such as “Mary Queen of Scots' House", the 12th century Jedburgh Abbey and the Jedburgh Jail and Museum. They are all situated in the heart of this picturesque, historic town attracting many visitors throughout the year. The town has excellent local amenities and professional services; there is a fantastic local butcher and a variety of independent shops that would love your support. Jedburgh has schooling for all ages, otherwise private schools like St Mary’s School and Longridge Towers can be found nearby. There are several sporting clubs including a formidable Jed-Forest rugby team, a well-supported golf club, running and cycling clubs, and a local swimming pool. At nearby Mounthooly there is the award-winning Caddy Man restaurant, a golf driving range and a country store.
Further amenities can be found in the historic market town of Kelso which lies 11 miles northeast of Sharplaw Road. Kelso houses several of the major supermarket chains, has some superb local shopping, several public houses and renowned eatery Scott’s of Kelso and several historical attractions such as Kelso Abbey and Floors Castle. Kelso also offers the world-famous Kelso Racecourse and 2 fantastic golf courses, Kelso Golf Club and the championship course at the Schloss Hotel along with their country club with a swim in and out pool.
GENERAL REMARKS
Services
Purchasers are recommended to seek independent advice as to the availability, suitability and cost of connection of services to meet their requirements.
Planning for Lot 1 & 3
Planning consent for the new-build home and barn conversion was granted under Scottish Borders Council reference 23/00433/FUL, with designs that blend modern living with energy efficiency and flexibility.
Whether you're looking for a self-build opportunity, a ready-to-go conversion project, or land with scope for rural enterprise, Sharplaw Development Site offers a rare and adaptable package. With permissions already secured and a mix of residential and land options available, this is a well-positioned Borders site with both immediate potential and long-term value.
Lot 3, Sharplaw Road, Jedburgh, Scottish Borders, TD8
NEAREST STATIONS
Distances are straight line measurements from the centre of the postcode- Tweedbank Station11.4 miles
About Paton & Co, Berwick-upon-Tweed
Paton & Co Estate Agents, 17F Windmill Way West, Ramparts Business Park, Berwick-upon-Tweed, TD15 1TB

Notes
Disclaimer - Property reference PAT250379. The information displayed about this property comprises a property advertisement. Rightmove.co.uk makes no warranty as to the accuracy or completeness of the advertisement or any linked or associated information, and Rightmove has no control over the content. This property advertisement does not constitute property particulars. The information is provided and maintained by Paton & Co, Berwick-upon-Tweed. Please contact the selling agent or developer directly to obtain any information which may be available under the terms of The Energy Performance of Buildings (Certificates and Inspections) (England and Wales) Regulations 2007 or the Home Report if in relation to a residential property in Scotland.
Map data ©OpenStreetMap contributors.






