Land for sale
Wyberton, Boston (Lincolnshire)
- PROPERTY TYPE
Land
- SIZE
Ask agent
Key features
- Full planning consent for 13 homes across two phases
- Executive detached homes
- Currently grazing land
- Freehold
- Popular edge of town location
Description
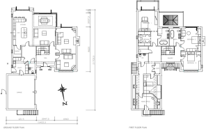
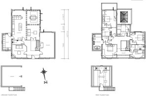
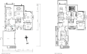
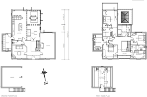
The Approval:
An outstanding opportunity to acquire a consented residential site with full detailed planning for 13 high-quality homes.
Planning Summary:
Phase 1:
Reserved matters approved for five individually designed executive detached dwellings, each with a double garage, set around a secure private access road. The site layout forms a courtyard-style development enhanced by new tree planting along the avenue.
Coordinates: 52°58'04.3"N 0°02'40.8"W
Phase 2:
Full permission granted for eight individually designed detached homes as a continuation of the first phase scheme.
Coordinates: 52°58'06.8"N 0°02'41.8"W
The Site:
The land is currently flat grazing land in an area designated for residential development. The layout, access, and landscaping have been carefully designed to meet modern market demand. All properties are designed with luxury finishes, spacious plots and attractive external detailing.
Viewings:
The site is visible from the roadside and can be viewed at any time.
Location:
Chain Bridge Road, Wyberton, is just minutes from central Boston, combining accessibility with a peaceful village-edge setting.
Close to local schools, amenities, and supermarkets
Excellent access to A16 and surrounding road network
Close to Boston Railway Station
Further Information & Contact
For brochure planning documents, GDV and SOA contact:
The Land Team
Wyberton, Boston (Lincolnshire)
NEAREST STATIONS
Distances are straight line measurements from the centre of the postcode- Boston Station1.1 miles
- Hubberts Bridge Station2.4 miles
Notes
Disclaimer - Property reference e62a0cb9-f9ee-411d-bcc9-2d0e7b2cadef. The information displayed about this property comprises a property advertisement. Rightmove.co.uk makes no warranty as to the accuracy or completeness of the advertisement or any linked or associated information, and Rightmove has no control over the content. This property advertisement does not constitute property particulars. The information is provided and maintained by Allen Heritage, Shirley. Please contact the selling agent or developer directly to obtain any information which may be available under the terms of The Energy Performance of Buildings (Certificates and Inspections) (England and Wales) Regulations 2007 or the Home Report if in relation to a residential property in Scotland.
Map data ©OpenStreetMap contributors.









