
42 Shawhill Road, Shawlands, Glasgow, G41 3RW

- PROPERTY TYPE
Detached
- BEDROOMS
2
- BATHROOMS
2
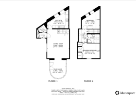
- SIZE
753 sq ft
70 sq m
- TENUREDescribes how you own a property. There are different types of tenure - freehold, leasehold, and commonhold.Read more about tenure in our glossary page.
Freehold
Key features
- Detached Home
- Two Bedroom
- Private Garden
- Driveway
Description
Situated within one of Shawlands most prestigious addresses lies this magnificent two-bedroom, detached home dating back to circa 1930. The current owners have beautifully maintained this truly unique property.
The home offers a wonderful blend of modern and traditional features throughout and boasts a sizeable and upgraded conservatory, a beautiful, private rear garden that is predominantly laid to lawn with shed and private driveway off. The property comprises; entrance vestibule, downstairs WC, modern kitchen and a spacious lounge with conservatory accessed off which provides a fantastic additional space for dining. Stairs lead to the upper level of the property where you will find two good size bedrooms both of which have built in storage and a family bathroom with walk in shower.
Shawhill Road is located within walking distance of excellent amenities including the coffee houses, restaurants, gastropubs and bakeries. More extensive facilities are available at the Morrisons stores in Crossmyloof or Newlands. Recreational pursuits are available at Pollok Park, Queens Park or Maxwell Park. Both Crossmyloof and Shawlands train stations are within half a mile of the front door, Shields Road underground station is two miles away and the M77 connects the Southside of Glasgow to Scotland's motorway network.
EPC Rating: D
- COUNCIL TAXA payment made to your local authority in order to pay for local services like schools, libraries, and refuse collection. The amount you pay depends on the value of the property.Read more about council Tax in our glossary page.
- Band: E
- PARKINGDetails of how and where vehicles can be parked, and any associated costs.Read more about parking in our glossary page.
- Yes
- GARDENA property has access to an outdoor space, which could be private or shared.
- Yes
- ACCESSIBILITYHow a property has been adapted to meet the needs of vulnerable or disabled individuals.Read more about accessibility in our glossary page.
- Ask agent
Energy performance certificate - ask agent
42 Shawhill Road, Shawlands, Glasgow, G41 3RW
Add an important place to see how long it'd take to get there from our property listings.
__mins driving to your place
Get an instant, personalised result:
- Show sellers you’re serious
- Secure viewings faster with agents
- No impact on your credit score
Your mortgage
Notes
Staying secure when looking for property
Ensure you're up to date with our latest advice on how to avoid fraud or scams when looking for property online.
Visit our security centre to find out moreDisclaimer - Property reference d04648a3-e8db-4473-af58-7c1c8608821b. The information displayed about this property comprises a property advertisement. Rightmove.co.uk makes no warranty as to the accuracy or completeness of the advertisement or any linked or associated information, and Rightmove has no control over the content. This property advertisement does not constitute property particulars. The information is provided and maintained by Clyde Property, Shawlands. Please contact the selling agent or developer directly to obtain any information which may be available under the terms of The Energy Performance of Buildings (Certificates and Inspections) (England and Wales) Regulations 2007 or the Home Report if in relation to a residential property in Scotland.
*This is the average speed from the provider with the fastest broadband package available at this postcode. The average speed displayed is based on the download speeds of at least 50% of customers at peak time (8pm to 10pm). Fibre/cable services at the postcode are subject to availability and may differ between properties within a postcode. Speeds can be affected by a range of technical and environmental factors. The speed at the property may be lower than that listed above. You can check the estimated speed and confirm availability to a property prior to purchasing on the broadband provider's website. Providers may increase charges. The information is provided and maintained by Decision Technologies Limited. **This is indicative only and based on a 2-person household with multiple devices and simultaneous usage. Broadband performance is affected by multiple factors including number of occupants and devices, simultaneous usage, router range etc. For more information speak to your broadband provider.
Map data ©OpenStreetMap contributors.








