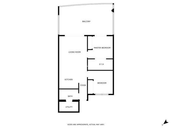
2 bedroom apartment for sale
Andalucia, Malaga, Fuengirola, Spain
- PROPERTY TYPE
Apartment
- BEDROOMS
2
- BATHROOMS
2
- SIZE
1,076 sq ft
100 sq m
Key features
- Air Conditioning
- Covered Terrace
- Lift
- Near Transport
- Private Terrace
- Solarium
- Satellite TV
- Gym
- Sauna
- Storage Room
Description
The apartment also includes a private parking space and a storage unit.
Seaviews Reserve is an exclusive residential area offering access to an infinity pool, gym, sauna, Turkish bath, green areas, solarium, and a chill-out zone, all with new and modern facilities as the development was completed in 2024.
The location is perfect and close to restaurants, supermarkets, schools, beach bars, and hotels. The local train station is just 30 meters away, offering quick access to the airport, Málaga city center, and the rest of the Costa del Sol.
You are warmly welcome to contact us for a viewing!
Andalucia, Malaga, Fuengirola, Spain
NEAREST AIRPORTS
Distances are straight line measurements- Málaga(International)11.8 miles
- Gibraltar (North Front)(International)48.8 miles
- Jerez(International)80.9 miles
- Sevilla (San Pablo)(International)92.4 miles
Advice on buying Spanish property
Learn everything you need to know to successfully find and buy a property in Spain.
Notes
This is a property advertisement provided and maintained by Holdsworth Estates, Malaga (reference R5063035_EAF_197101) and does not constitute property particulars. Whilst we require advertisers to act with best practice and provide accurate information, we can only publish advertisements in good faith and have not verified any claims or statements or inspected any of the properties, locations or opportunities promoted. Rightmove does not own or control and is not responsible for the properties, opportunities, website content, products or services provided or promoted by third parties and makes no warranties or representations as to the accuracy, completeness, legality, performance or suitability of any of the foregoing. We therefore accept no liability arising from any reliance made by any reader or person to whom this information is made available to. You must perform your own research and seek independent professional advice before making any decision to purchase or invest in overseas property.




