
Cinderford, Gloucestershire

- PROPERTY TYPE
Detached
- BEDROOMS
3
- BATHROOMS
1
- SIZE
Ask agent
- TENUREDescribes how you own a property. There are different types of tenure - freehold, leasehold, and commonhold.Read more about tenure in our glossary page.
Freehold
Key features
- Three bedroom detached house
- Detached double garage, ample off road parking
- Spacious living accommodation
- Situated close to the town centre
- Low maintenance gardens
- Freehold, Council tax band C, EPC Rating C
Description
This spacious three-bedroom detached home offers fantastic practicality right from the outset, with ample off-road parking and a double garage, perfect for multiple vehicles, workshop space, or secure storage. Set just a short walk from the town centre, the property enjoys a superb location while still benefitting from far-reaching views and a sense of privacy. Inside, the house feels light, airy, and generously sized throughout, with a lovely flow between rooms and plenty of space for modern family life or entertaining guests. With its blend of convenience, space and outlook, this is a home that offers so much.
The market town of Cinderford provides a variety of amenities, including shops, a post office, supermarkets, a library, a health centre, the Forest of Dean hospital, a dentist, and a sports/leisure centre. It also offers both primary and secondary education, along with regular bus services to Gloucester (approximately 14 miles away) and surrounding areas.
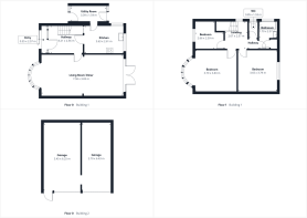
A porch provides access into a welcoming entrance to the home, where stairs rise to the first floor and doors lead into the main living areas. There’s a warm wood-effect floor underfoot, a radiator to keep the space cosy, and coving that adds a touch of traditional detail.
To the right hand side, this spacious, open-plan room has a lovely natural flow, perfect for both relaxing and entertaining. The living area is warm and inviting, with a feature fireplace set on a granite hearth, wooden surround, and a living flame gas fire for those cosy evenings in. Double French doors at the rear, flanked by glazed side panels, open out onto the patio and parking area – bringing in lots of light and offering a lovely outlook. The dining area is just as appealing, with a characterful bay window overlooking the front garden. A curved radiator fits neatly into the bay, and deep skirting boards and continued wood-effect flooring give the space a classic feel. There’s plenty of room for a family-sized dining table, making it an ideal setting for everything from casual breakfasts to more formal dinners.
The kitchen/breakfast room is a really sociable and practical space, well-fitted with a range of base and wall units, a gas hob with electric oven beneath, a glass splashback and filter hood above. There’s a breakfast bar for quick bites or coffee breaks, and room for an American-style fridge/freezer. A stainless steel sink sits beneath the rear window, which enjoys far-reaching views towards forest and woodland beyond. Another side window adds extra light, and a door opens into the utility room.
The utility room is a useful additional space, fitted with worktops, base units, and places for your washing machine and dishwasher. Timber cladding on the ceiling adds a touch of character, and with power points and USB sockets, it's a flexible room that works well as a utility or boot room. Windows to both the front and rear keep the space light and airy, and an obscure glazed panel door offers external access.
From the entrance hall, stairs lead up to a light-filled landing, where a side window brings in daylight and wooden panel doors lead off to the bedrooms and bathrooms.
The principal bedroom is a generous double bedroom at the front of the house, filled with natural light thanks to a feature bay window that blends aluminium and timber. This room feels bright and open, with space for a large bed and additional furniture.
Bedroom two is a peaceful rear-facing double bedroom with lovely views over the patio and beyond to the surrounding woodland. There’s plenty of space for wardrobes and furniture, and the room has a calm, restful atmosphere – ideal for unwinding at the end of the day.
Bedroom three is another spacious room with a front-facing window overlooking the garden. Perfect as a child’s room, guest bedroom, or even a home office – it’s a versatile space that adapts to your needs.
The family bathroom is finished with a white suite including an enamel bath with both conventional and rainfall shower heads, and a folding shower screen. There’s a vanity basin with storage beneath, chrome heated towel rail, and tiled surrounds. A door opens into a large airing cupboard housing the Worcester Bosch boiler and handy shelving for towels and linen. A side-facing window brings in natural light, making the room feel bright and fresh. Completing the property and a practical addition to the first floor, a W.C. with a side window, coving, and wood-effect flooring to match the rest of the home’s warm tone.
Outside- The property is accessed via a charming wrought iron gate set within a traditional stone wall, leading you along a neat concrete pathway directly to the front entrance. The front garden is a well-tended space, featuring a lush lawn framed by an attractive mix of small trees, established shrubs, and low-maintenance bushes. Enclosed by a combination of fencing, mature hedging, and stone walling, it offers both privacy and visual appeal from the outset. To the rear of the property, a side porch provides access to a spacious slabbed patio area, perfect for outdoor dining or relaxing. This area benefits from outside lighting, an external water tap, and a canopy for shade and shelter. A dwarf retaining wall gently borders the space, and stone steps accompanied by a pathway guide you down to a substantial parking and turning area. Finished in tarmac and gravel, this section offers generous off-road parking for three to four vehicles with ease. The detached garage complex is a highly versatile addition, ideal for vehicle storage, a home workshop, or hobby space. Garage One is accessed via an up-and-over roller shutter door and includes both power and lighting. It opens through to: Garage Two, also with its own up-and-over roller shutter door, power supply, and lighting.
- COUNCIL TAXA payment made to your local authority in order to pay for local services like schools, libraries, and refuse collection. The amount you pay depends on the value of the property.Read more about council Tax in our glossary page.
- Ask agent
- PARKINGDetails of how and where vehicles can be parked, and any associated costs.Read more about parking in our glossary page.
- Garage,Off street
- GARDENA property has access to an outdoor space, which could be private or shared.
- Private garden
- ACCESSIBILITYHow a property has been adapted to meet the needs of vulnerable or disabled individuals.Read more about accessibility in our glossary page.
- Ask agent
Cinderford, Gloucestershire
Add an important place to see how long it'd take to get there from our property listings.
__mins driving to your place
Get an instant, personalised result:
- Show sellers you’re serious
- Secure viewings faster with agents
- No impact on your credit score
Your mortgage
Notes
Staying secure when looking for property
Ensure you're up to date with our latest advice on how to avoid fraud or scams when looking for property online.
Visit our security centre to find out moreDisclaimer - Property reference S1406647. The information displayed about this property comprises a property advertisement. Rightmove.co.uk makes no warranty as to the accuracy or completeness of the advertisement or any linked or associated information, and Rightmove has no control over the content. This property advertisement does not constitute property particulars. The information is provided and maintained by Hattons Estate Agents, Forest of Dean. Please contact the selling agent or developer directly to obtain any information which may be available under the terms of The Energy Performance of Buildings (Certificates and Inspections) (England and Wales) Regulations 2007 or the Home Report if in relation to a residential property in Scotland.
*This is the average speed from the provider with the fastest broadband package available at this postcode. The average speed displayed is based on the download speeds of at least 50% of customers at peak time (8pm to 10pm). Fibre/cable services at the postcode are subject to availability and may differ between properties within a postcode. Speeds can be affected by a range of technical and environmental factors. The speed at the property may be lower than that listed above. You can check the estimated speed and confirm availability to a property prior to purchasing on the broadband provider's website. Providers may increase charges. The information is provided and maintained by Decision Technologies Limited. **This is indicative only and based on a 2-person household with multiple devices and simultaneous usage. Broadband performance is affected by multiple factors including number of occupants and devices, simultaneous usage, router range etc. For more information speak to your broadband provider.
Map data ©OpenStreetMap contributors.





