
Cuddington, Malpas, Cheshire SY14 7BQ

- PROPERTY TYPE
Detached
- BEDROOMS
4
- BATHROOMS
2
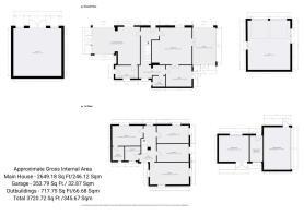
- SIZE
3,720 sq ft
346 sq m
- TENUREDescribes how you own a property. There are different types of tenure - freehold, leasehold, and commonhold.Read more about tenure in our glossary page.
Ask agent
Key features
- Built in the finest Cheshire brick with natural slate roofingOpen-plan bespoke kitchen with central island and adjoining conservatory family room
- Sitting Room with Grand Open Log Burning Fireplace with Natural Oak Mantle leading onto an Exquisite Orangery Dining Room
- Four Double Bedrooms, with the Principal Bedroom enjoying an en-suite
- Set within a generous 3-acre plot featuring extensive gardens and multiple outbuildings
- Spacious Main Residence and Outbuildings totalling circa 3,720 sq ft
- Two gated driveways: The principal, tree-lined gravel driveway is accessed via Chorlton Lane, while a secondary gated entrance is located to the rear of the property off Mill Lane.
- Tenure: Freehold | Council Tax Band: D | EPC Rating: D
Description
Accommodation Summary
Ground Floor:
Entering through a charming oak-framed porch, you step into a welcoming hallway that sets the tone for this elegant home. The living room’s centerpiece is a striking log-burning fireplace with a natural oak mantle, creating a warm and inviting focal point. Adjacent lies the impressive dining room, featuring an orangery roof that floods the space with natural light and offers stunning views over the grounds.
From the family sitting room, there is convenient access to a study, ideal for quiet work or relaxation, with direct access to the outside patio—perfect for seamless indoor-outdoor living. A thoughtfully positioned cloakroom with a downstairs WC and useful under-stairs storage completes the ground-floor accommodation.
Returning to the entrance hallway, you are led to the stunning open-plan bespoke kitchen, expertly crafted with traditional units and a central granite-topped island. This space flows effortlessly into the conservatory family room, where natural light fills every corner, creating a bright and welcoming environment ideal for casual family dining or peaceful mornings with coffee. A separate utility room provides practical convenience with a stable door to the outside, while a newly fitted external boiler is discreetly located just beyond.
Every corner of Mill House is meticulously styled to balance luxurious design with a warm, comfortable, and lived-in feel.
First Floor:
Ascending to the first floor, an expansive landing is illuminated by a full-length window that frames stunning views of the magnificent tree-lined driveway welcoming you to the property. From here, four generously proportioned bedrooms are accessed.
The principal suite is particularly spacious, boasting an elegant en-suite bathroom with refined fittings and a tranquil atmosphere. Three further large double bedrooms are filled with natural light and enhanced by charming features such as stained glass windows and painted wood floors, adding character and warmth throughout.
Completing the floor is a beautifully appointed family bathroom, featuring a natural stone hand basin and a bath with an overhead shower, blending style and practicality seamlessly.
Outside:
Approached via a magnificent tree-lined driveway, Mill House offers ample off-street parking alongside a detached double garage. Set within approximately three acres, the grounds feature extensive gardens, a tranquil stream, a spacious garden room ideal for entertaining, multiple garden sheds, and a picturesque summer house. The property’s elegant facade is perfectly balanced, framed beautifully by an orangery and conservatory at either end, creating a stunning visual harmony.
Location:
Mill House is situated in the tranquil hamlet of Cuddington, just a short drive from the picturesque and thriving South Cheshire village of Malpas. This charming area offers an ideal blend of rural serenity and modern convenience, with independent shops, traditional pubs, and the well-regarded Bishop Heber secondary school all close by.
Approximately 15 miles away, Chester provides vibrant city life, premium shopping, and excellent rail links to London and Manchester. The region is also renowned for its outstanding independent schools, including King’s, Queen’s, Moreton Hall, and Packwood Haugh, all easily accessible for families.
For outdoor enthusiasts, the nearby Bickerton Hills offer scenic walking trails, while the luxurious Carden Park spa is just a short drive away. Whether you desire a peaceful countryside retreat, an active family lifestyle, or effortless access to urban amenities, Mill House offers the perfect balance.
Tenure: Freehold | Council Tax Band: D | EPC Rating: D
Services, Utilities & Property Information
Utilities - Mains electrics, water. Private septic tank - please speak to the agent for further information.
Tenure - Freehold
Property Type - Detached
Construction Type - Red Cheshire Brick / Natural Slate
Council Tax - Cheshire West And Chester
Council Tax Band - D
Parking - Sweeping tree-lined driveway with plenty of parking for 10 plus cars.
Mobile phone coverage - 5G mobile signal is available in the area - we advise you to check with your provider.
Internet connection - Ultrafast Broadband connection available- we advise you to check with your provider.
Viewing: Strictly via the vendors sole agent Richard Hughes Fine & Country.
Disclaimer
All measurements are approximate and quoted in metric with imperial equivalents and for general guidance only and whilst every attempt has been made to ensure accuracy, they must not be relied on.
The fixtures, fittings and appliances referred to have not been tested and therefore no guarantee can be given and that they are in working order.
Internal photographs are reproduced for general information and it must not be inferred that any item shown is included with the property.
Whilst we carryout our due diligence on a property before it is launched to the market and we endeavour to provide accurate information, buyers are advised to conduct their own due diligence.
Our information is presented to the best of our knowledge and should not solely be relied upon when making purchasing decisions. The responsibility for verifying aspects such as flood risk, easements, covenants and other property related details rests with the buyer.
- COUNCIL TAXA payment made to your local authority in order to pay for local services like schools, libraries, and refuse collection. The amount you pay depends on the value of the property.Read more about council Tax in our glossary page.
- Band: D
- PARKINGDetails of how and where vehicles can be parked, and any associated costs.Read more about parking in our glossary page.
- Yes
- GARDENA property has access to an outdoor space, which could be private or shared.
- Yes
- ACCESSIBILITYHow a property has been adapted to meet the needs of vulnerable or disabled individuals.Read more about accessibility in our glossary page.
- Ask agent
Cuddington, Malpas, Cheshire SY14 7BQ
Add an important place to see how long it'd take to get there from our property listings.
__mins driving to your place
Get an instant, personalised result:
- Show sellers you’re serious
- Secure viewings faster with agents
- No impact on your credit score
About Fine & Country, Birmingham
Fine & Country, 11 Brindley Place, Brunswick Square, Birmingham, B1 2LP

Your mortgage
Notes
Staying secure when looking for property
Ensure you're up to date with our latest advice on how to avoid fraud or scams when looking for property online.
Visit our security centre to find out moreDisclaimer - Property reference RX604171. The information displayed about this property comprises a property advertisement. Rightmove.co.uk makes no warranty as to the accuracy or completeness of the advertisement or any linked or associated information, and Rightmove has no control over the content. This property advertisement does not constitute property particulars. The information is provided and maintained by Fine & Country, Birmingham. Please contact the selling agent or developer directly to obtain any information which may be available under the terms of The Energy Performance of Buildings (Certificates and Inspections) (England and Wales) Regulations 2007 or the Home Report if in relation to a residential property in Scotland.
*This is the average speed from the provider with the fastest broadband package available at this postcode. The average speed displayed is based on the download speeds of at least 50% of customers at peak time (8pm to 10pm). Fibre/cable services at the postcode are subject to availability and may differ between properties within a postcode. Speeds can be affected by a range of technical and environmental factors. The speed at the property may be lower than that listed above. You can check the estimated speed and confirm availability to a property prior to purchasing on the broadband provider's website. Providers may increase charges. The information is provided and maintained by Decision Technologies Limited. **This is indicative only and based on a 2-person household with multiple devices and simultaneous usage. Broadband performance is affected by multiple factors including number of occupants and devices, simultaneous usage, router range etc. For more information speak to your broadband provider.
Map data ©OpenStreetMap contributors.





