
1 bedroom retirement property for rent
24 Queens Road, Weybridge, Surrey, KT13 9UX

Letting details
- Let available date:
- Now
- Deposit:
- Ask agentA deposit provides security for a landlord against damage, or unpaid rent by a tenant.Read more about deposit in our glossary page.
- Min. Tenancy:
- Ask agent How long the landlord offers to let the property for.Read more about tenancy length in our glossary page.
- Let type:
- Long term
- Furnish type:
- Unfurnished
- Council Tax:
- Ask agent
- PROPERTY TYPE
Retirement Property
- BEDROOMS
1
- SIZE
581 sq ft
54 sq m
Key features
- A flexible alternative to outright purchase
- Guaranteed security with an Assured Tenancy Agreement
- A quick and simple way to move into your new McCarthyStone apartment
- Your rent includes all of the development's service charges, ground rents and the properties maintenance
- En-suite
- South West facing
Description
Enjoy all of the benefits of a McCarthy Stone retirement community with our assured, affordable and flexible tenancies, so you can rent your property for as long as you want (subject to a minimum term). Renting in retirement provides a wealth of benefits including one monthly fee, removing any worries you may have about the upkeep of your property and the grounds. You can move in at your pace, knowing there's long-term security with one of our Assured Tenancies and settle in to your new home with minimum fuss.
Featuring a stylish selection of one and two bedroom apartments, exclusively for retirees, Campbell House is proving a popular choice for those seeking an active and sociable retirement. Each modern apartment features a fully fitted kitchen and shower room, finished to a high standard. 24-hour emergency call systems are in place throughout the property for peace of mind and security.
McCarthy Stone Retirement Living PLUS properties are designed to be age exclusive, providing specific amenities for those 70 and over. With a mobility scooter charging room and parking available, residents can enjoy the local area and all that it has to offer with ease and comfort. Thanks to its location Campbell House on Queens Road offers stylish living in a highly desirable central location. Beautiful mature trees provide screening to the development, presenting tenants with a perfect blend of scenic surroundings in a convenient location. From eateries, to boutique shops and generous green spaces such as the cricket ground and the picturesque River Wey, there's something to suit all pastimes.
Within the property itself, residents have access to a Communal Lounge featuring Wi-Fi access and a beautiful patio area leading to landscaped gardens which will be fully maintained so that you and your guests can enjoy time outdoors without the hassle of regular upkeep. An Estate Manager is also available onsite to help with any domestic enquiries. Day-to-day assistance is available for those who would like some extra help within their home.
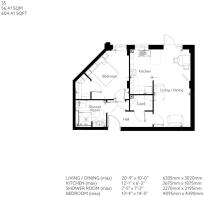
Property 35 is a one-bedroom apartment ideally located on the second floor, offering a south-west aspect, a juliet balcony and measuring 586 sqft. The apartment is decorated with a neutral palette creating a bright and welcoming feel. The fitted kitchen is finished to a high standard, with modern integrated appliances. The master bedroom benefits from an en-suite shower room and a walk-in wardrobe fitted with hanging space and shelving units. The shower room is complete with a low profile shower tray and slip resistant flooring, a chrome heated towel rail and an illuminated mirror.
*Photography is of the show apartment for illustrative purposes only and may not be of the apartment advertised.
Property 35 is a one-bedroom apartment ideally located on the second floor, offering a south-west aspect, a juliet balcony and measuring 586 sqft. The apartment is decorated with a neutral palette creating a bright and welcoming feel. The fitted kitchen is finished to a high standard, with modern integrated appliances. The master bedroom benefits from an en-suite shower room and a walk-in wardrobe fitted with hanging space and shelving units. The shower room is complete with a low profile shower tray and slip resistant flooring, a chrome heated towel rail and an illuminated mirror.
*Photography is of the show apartment for illustrative purposes only and may not be of the apartment advertised.
Great highlights of this wonderful property:
- Large living area with open plan kitchen featuring a breakfast bar
- Ample storage
- Built-in wardrobe in the bedroom
- Council tax band: E
- Reservation deposit: £500 (to be offset against your initial payment and fully refundable should your Tenancy not proceed)
- Security deposit: £3,975 (equivalent to 5 weeks rent of the apartment only, excludes any parking space rent)
Brochures
Campbell House brochure- COUNCIL TAXA payment made to your local authority in order to pay for local services like schools, libraries, and refuse collection. The amount you pay depends on the value of the property.Read more about council Tax in our glossary page.
- Band: E
- PARKINGDetails of how and where vehicles can be parked, and any associated costs.Read more about parking in our glossary page.
- Yes
- GARDENA property has access to an outdoor space, which could be private or shared.
- Yes
- ACCESSIBILITYHow a property has been adapted to meet the needs of vulnerable or disabled individuals.Read more about accessibility in our glossary page.
- Ask agent
24 Queens Road, Weybridge, Surrey, KT13 9UX
Add an important place to see how long it'd take to get there from our property listings.
__mins driving to your place
Notes
Staying secure when looking for property
Ensure you're up to date with our latest advice on how to avoid fraud or scams when looking for property online.
Visit our security centre to find out moreDisclaimer - Property reference a233X000003EZWCQA4. The information displayed about this property comprises a property advertisement. Rightmove.co.uk makes no warranty as to the accuracy or completeness of the advertisement or any linked or associated information, and Rightmove has no control over the content. This property advertisement does not constitute property particulars. The information is provided and maintained by McCarthy Stone, Nationwide. Please contact the selling agent or developer directly to obtain any information which may be available under the terms of The Energy Performance of Buildings (Certificates and Inspections) (England and Wales) Regulations 2007 or the Home Report if in relation to a residential property in Scotland.
*This is the average speed from the provider with the fastest broadband package available at this postcode. The average speed displayed is based on the download speeds of at least 50% of customers at peak time (8pm to 10pm). Fibre/cable services at the postcode are subject to availability and may differ between properties within a postcode. Speeds can be affected by a range of technical and environmental factors. The speed at the property may be lower than that listed above. You can check the estimated speed and confirm availability to a property prior to purchasing on the broadband provider's website. Providers may increase charges. The information is provided and maintained by Decision Technologies Limited. **This is indicative only and based on a 2-person household with multiple devices and simultaneous usage. Broadband performance is affected by multiple factors including number of occupants and devices, simultaneous usage, router range etc. For more information speak to your broadband provider.
Map data ©OpenStreetMap contributors.





