
7, Kerrocoar Close, Onchan

- PROPERTY TYPE
Semi-Detached
- BEDROOMS
3
- BATHROOMS
1
- SIZE
Ask agent
- TENUREDescribes how you own a property. There are different types of tenure - freehold, leasehold, and commonhold.Read more about tenure in our glossary page.
Ask agent
Key features
- Modern end of terrace home
- Quiet sought after cul-de-sac location
- Within walking distance to the local schools and shops
- Ideal opportunity for a purchaser to create their own desired finish
- No onward chain
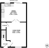
- Living room and a dining kitchen
- Three bedrooms
- Bathroom
- Good sized driveway providing off road parking
- Rear garden
Description
Found in a quiet and highly sought-after cul-de-sac, this well-located three-bedroom end of terrace home presents an excellent opportunity for buyers looking to personalise a property to their own taste.
Ideally positioned within walking distance of local schools, parks, and everyday amenities, this home is perfectly suited for families, first-time buyers, or investors.
The accommodation comprises a bright and welcoming living room, and a spacious dining kitchen with views over the rear garden. Upstairs, there are three bedrooms and a bathroom.
Outside, the property benefits from a good-sized driveway providing off-road parking, along with a rear garden.
With its popular cul-de-sac setting and scope to create your desired finish, this is a home not to be missed.
Inclusions All fitted floor coverings, blinds and light fittings
Appliances Electric oven and hob, extractor fan and a washing machine
Tenure Freehold
Rates Treasury tel - and Onchan Commissioners tel -
Windows uPVC double glazing
Heating Gas
- COUNCIL TAXA payment made to your local authority in order to pay for local services like schools, libraries, and refuse collection. The amount you pay depends on the value of the property.Read more about council Tax in our glossary page.
- Ask agent
- PARKINGDetails of how and where vehicles can be parked, and any associated costs.Read more about parking in our glossary page.
- Yes
- GARDENA property has access to an outdoor space, which could be private or shared.
- Yes
- ACCESSIBILITYHow a property has been adapted to meet the needs of vulnerable or disabled individuals.Read more about accessibility in our glossary page.
- Ask agent
Energy performance certificate - ask agent
7, Kerrocoar Close, Onchan
Add an important place to see how long it'd take to get there from our property listings.
__mins driving to your place
Get an instant, personalised result:
- Show sellers you’re serious
- Secure viewings faster with agents
- No impact on your credit score
Your mortgage
Notes
Staying secure when looking for property
Ensure you're up to date with our latest advice on how to avoid fraud or scams when looking for property online.
Visit our security centre to find out moreDisclaimer - Property reference 6891. The information displayed about this property comprises a property advertisement. Rightmove.co.uk makes no warranty as to the accuracy or completeness of the advertisement or any linked or associated information, and Rightmove has no control over the content. This property advertisement does not constitute property particulars. The information is provided and maintained by Garforth Gray, Isle of Man. Please contact the selling agent or developer directly to obtain any information which may be available under the terms of The Energy Performance of Buildings (Certificates and Inspections) (England and Wales) Regulations 2007 or the Home Report if in relation to a residential property in Scotland.
*This is the average speed from the provider with the fastest broadband package available at this postcode. The average speed displayed is based on the download speeds of at least 50% of customers at peak time (8pm to 10pm). Fibre/cable services at the postcode are subject to availability and may differ between properties within a postcode. Speeds can be affected by a range of technical and environmental factors. The speed at the property may be lower than that listed above. You can check the estimated speed and confirm availability to a property prior to purchasing on the broadband provider's website. Providers may increase charges. The information is provided and maintained by Decision Technologies Limited. **This is indicative only and based on a 2-person household with multiple devices and simultaneous usage. Broadband performance is affected by multiple factors including number of occupants and devices, simultaneous usage, router range etc. For more information speak to your broadband provider.
Map data ©OpenStreetMap contributors.






