
Greenway, Frinton-On-Sea

- PROPERTY TYPE
Detached
- BEDROOMS
3
- BATHROOMS
2
- SIZE
Ask agent
- TENUREDescribes how you own a property. There are different types of tenure - freehold, leasehold, and commonhold.Read more about tenure in our glossary page.
Freehold
Key features
- MODERN DETACHED FAMILY HOME
- PRIME LOCATION
- INSIDE THE FRINTON GATES
- OPEN PLAN MODERN LIVING
- THREE BEDROOMS
- EN-SUITE TO MASTER BEDROOM
- ECO FRIENDLY PROPERTY BUILT IN 2021 WITH NEW BUILD WARRANTY
- INTEGRAL GARAGE & PARKING
- WALK TO BEACH, STATION & CONNAUGHT AVENUE
- EPC B / COUNCIL TAX D
Description
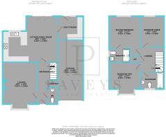
Entrance Hall - Composite entrance door to front aspect, wood flooring, smooth and coved ceiling, stair flight to First Floor, under stairs storage cupboard, radiator.
Cloakroom - Modern white suite comprising low level WC and vanity wash hand basin. Wood flooring, smooth ceiling, fully tiled walls, extractor fan, radiator.
Lounge - 5.87m x 3.96m (19'3 x 13') - Double glazed box bay window to front, fitted carpet, feature fireplace with surround and hearth, smooth and coved ceiling, wall lights, TV point, radiator.
Kitchen Family Room - 6.30m x 4.95m (20'8 x 16'3) - Extensive range of modern high gloss over and under counter units, matching full height cabinets. Quartz work tops and upstands, breakfast bar, inset stainless steel under mount sink with pull down tap. Built in eye level twin Neff ovens, Neff five ring induction hob with extractor over, integrated fridge freezer, integrated dishwasher. Double glazed window to rear overlooking the garden, double glazed bi fold doors to rear, wood flooring, smooth and coved ceiling, spot lights, under unit lighting, door to Utility Room, radiator.
Utility Room - Modern high gloss over and under counter units, matching full height cabinet housing wall mounted boiler (not tested by Agent). Quartz work tops and upstands, inset stainless steel sink and drainer. space and plumbing for washing machine, space for tumble dryer. Double glazed door and window to rear, wood flooring, smooth and coved ceiling, spot lights, radiator.
First Floor -
First Floor Landing - Fitted carpet, smooth and coved ceiling, built in airing cupboard,
Master Bedroom - 4.47m x 3.53m (14'8 x 11'7) - Double glazed window to rear, fitted carpet, smooth and coved ceiling, door to EnSuite Shower Room, radiator.
En-Suite Shower Room - Modern white suite comprising low level WC, vanity wash hand basin and walk in double shower with glass screen and rainfall shower. Double glazed window to side, tiled flooring, fully tiled walls, smooth ceiling, extractor fan, chrome heated towel rail.
Bedroom Two - 4.04m x 3.53m (13'3 x 11'7) - Double glazed box bay window to front, fitted carpet, smooth and coved ceiling, radiator.
Bedroom Three - 3.53m x 2.64m (11'7 x 8'8) - Double glazed window to rear, fitted carpet, smooth and coved ceiling, radiator.
Bathroom - Modern white suite comprising low level WC, vanity wash hand basin and bath with shower and screen over. Double glazed window to front, tiled flooring, fully tiled walls, smooth and coved ceiling, spot lights, extractor fan, chrome heated towel rail.
Outside Front - Block paved driveway to the front of the garage, retaining fencing, access to Garage, exterior lighting, gated access to rear.
Outside Rear - A pretty, very private rear garden, patio area with electric awning, lawn area bordered by flower and shrub borders, retaining panel fencing, exterior socket, outside tap, exterior lighting, timber summer house, access to front via side gate.
Garage - 7.01m x 3.00m (23' x 9'10) - Electric up and over door, fitted EV charge point, power and light connected (not tested by Agent).
Important Information - Council Tax Band: D
Tenure: Freehold
Energy Performance Certificate (EPC) rating: B
The property is connected to electric, gas, mains water and sewerage.
Money Laundering Regulations 2017 - Paveys Estate Agents are required by law to conduct anti-money laundering checks on all those selling or buying a property. Whilst we retain responsibility for ensuring checks and any ongoing monitoring are carried out correctly, the initial checks are carried out on our behalf by Lifetime Legal who will contact you once you have agreed to instruct us in your sale or had an offer accepted on a property you wish to buy. The cost of these checks is £45 (incl. VAT), which covers the cost of obtaining relevant data and any manual checks and monitoring which might be required. This fee will need to be paid by you in advance of us publishing your property (in the case of a vendor) or issuing a memorandum of sale (in the case of a buyer), directly to Lifetime Legal, and is non-refundable.
Disclaimer - These particulars are intended to give a fair description of the property and are in no way guaranteed, nor do they form part of any contract. All room measurements are approximate and a laser measurer has been used. Paveys Estate Agents have not tested any apparatus, equipment, fixtures & fittings or all services, so we can not verify if they are in working order or fit for purpose. Any potential buyer is advised to obtain verification via their solicitor or surveyor. Please Note: the floor plans are not to scale and are for illustration purposes only.
Referral Fees - Paveys reserve the right to recommend additional services. Paveys do receive referral fees of between £75-£150 per transaction when using a recommended solicitor. £50 or 10% referral fee on a recommended Surveying Company. £200 referral fee on Paveys nominated independent mortgage broker service. Clients have the right to use whomever they choose and are not bound to use Paveys suggested recommendations.
Brochures
Greenway, Frinton-On-SeaBrochure- COUNCIL TAXA payment made to your local authority in order to pay for local services like schools, libraries, and refuse collection. The amount you pay depends on the value of the property.Read more about council Tax in our glossary page.
- Ask agent
- PARKINGDetails of how and where vehicles can be parked, and any associated costs.Read more about parking in our glossary page.
- Yes
- GARDENA property has access to an outdoor space, which could be private or shared.
- Yes
- ACCESSIBILITYHow a property has been adapted to meet the needs of vulnerable or disabled individuals.Read more about accessibility in our glossary page.
- Ask agent
Greenway, Frinton-On-Sea
Add an important place to see how long it'd take to get there from our property listings.
__mins driving to your place
Get an instant, personalised result:
- Show sellers you’re serious
- Secure viewings faster with agents
- No impact on your credit score

Your mortgage
Notes
Staying secure when looking for property
Ensure you're up to date with our latest advice on how to avoid fraud or scams when looking for property online.
Visit our security centre to find out moreDisclaimer - Property reference 34086553. The information displayed about this property comprises a property advertisement. Rightmove.co.uk makes no warranty as to the accuracy or completeness of the advertisement or any linked or associated information, and Rightmove has no control over the content. This property advertisement does not constitute property particulars. The information is provided and maintained by Paveys Estate Agents Ltd, Frinton On Sea. Please contact the selling agent or developer directly to obtain any information which may be available under the terms of The Energy Performance of Buildings (Certificates and Inspections) (England and Wales) Regulations 2007 or the Home Report if in relation to a residential property in Scotland.
*This is the average speed from the provider with the fastest broadband package available at this postcode. The average speed displayed is based on the download speeds of at least 50% of customers at peak time (8pm to 10pm). Fibre/cable services at the postcode are subject to availability and may differ between properties within a postcode. Speeds can be affected by a range of technical and environmental factors. The speed at the property may be lower than that listed above. You can check the estimated speed and confirm availability to a property prior to purchasing on the broadband provider's website. Providers may increase charges. The information is provided and maintained by Decision Technologies Limited. **This is indicative only and based on a 2-person household with multiple devices and simultaneous usage. Broadband performance is affected by multiple factors including number of occupants and devices, simultaneous usage, router range etc. For more information speak to your broadband provider.
Map data ©OpenStreetMap contributors.





