
Gitana Street, Stoke on Trent
- PROPERTY TYPE
Land
- SIZE
Ask agent
Key features
- A Town Centre Office Premises
- potential for residential conversion into 5 apartments or 14 bedroom HMO (Subject to planning)
- 3961 sq.ft
- BJB Auction
- BJB Land & Development
- Pre-auction offers will be considered
Description
A Town Centre Office Premises
potential for residential conversion into 5 apartments or 14 bedroom HMO (Subject to planning)
For Sale By Auction at 6.30pm on Monday 15th September 2025
at the Double Tree By Hilton Hotel, Festival Park, Stoke on Trent, ST1 5BQ
Contact the Auction Team to Register: or
Description
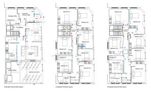
A 3 storey town centre office space measuring approximately 368 sq. m (3,875 sq.ft) with potential for alternative uses. The client has commission a planning report, outlining the properties potential for residential conversion into 5 apartments or a14 bed HMO. , this report is available upon request.
Location
The property is located in Hanley town centre, the CBD for Stoke-On-Trent, offering access to many local amenities such as the Tesco Extra, The Potteries Centre, and festival park, a popular retail and leisure destination. The Premises is well connected with transport links, such as Hanley bus station which is located less than a mile away and provides connecting routes across the city. Stoke-On-Trent Railway stations located 2.1 miles away and sits on the Oxford to Manchester branch of the west coast main line . Junction 16 of the M6 motorway is accessible via the arterial A500 road.
Local Council
The site is located in the Council district of Stoke-On-Trent City Council
Planning & Supporting Information
A planning report was commissioned by the client which identifies that the property may have potential for residential conversion (Subject to planning).
This report is available upon request and concludes 'The alternative schemes will provide much needed residential accommodation in a refurbished existing building. The site is located in a very sustainable city centre location, which is close to amenities and transport links.'
'I would expect that the Council would welcome the development of this small site as its sustainability credentials will fit well into the Council’s wider plans for
regeneration and provision of good quality housing within the city. Either development will comply with both National & Local Planning Policies and as such should be supported by Council Officers and the Council’s Planning Committee.'
NB: Whilst BJB will try and supply as much information as we can about the planning status of the property, please be mindful that we are not planning consultants and accordingly it is important that prospective purchasers ensure they have inspected the land / property and rely upon their own enquiries, assessments and due diligence with regards to the planning status and current or potential uses. All information is supplied in good faith and BJB cannot be held liable for any errors or omissions.
Accommodation
The proposed schemes within the planning report comprise;
Apartments;
- Unit 1 - 1 Bedroom Apartment (48.51 sq.m / 522 sq.ft) - Est. 700 pcm
- Unit 2 - 1 Bedroom Apartment (49.58 sq.m / 534 sq.ft) - Est. 700 pcm
- Unit 3 - 2 Bedroom Apartment (58.09 sq.m / 625 sq.ft) - Est. 1,000 pcm
- Unit 4 - 1 Bedroom Apartment (50.29 sq.m / 514 sq.ft) - Est. 700 pcm
- Unit 5 - 2 Bedroom Apartment (58.09 sq.m / 625 sq.ft) - Est. 1,000 pcm
Total Estimated Annual Income: £49,200 per annum
HMO;
- 14 Bedrooms & associated ground floor communal space - Est £500 pcm per room.
Total Estimated Annual Income: £84,000 per annum
Any sizes / values quoted by BJB are correct to the best of our knowledge, however we would recommended all interest parties carry out their own checks before relying on any information provided.
Tenure
Freehold with vacant possession upon completion.
VAT
All prices quoted by Butters John Bee are exclusive of VAT unless otherwise stated. All interested parties should make their own enquiries to satisfy themselves with the VAT position.
Pre-Auction Offers
Any pre-Auction offers should be submitted via e-mail to residential- . All offers will be forwarded to the client for consideration, but please be aware that the majority of clients prefer to let the marketing run for a period, prior to giving serious consideration to accepting any pre-Auction offer.
Common Auction Conditions
This property is sold subject to our Common Auction Conditions (a copy is available on request).
Buyers Admin Fee
A buyers administration fee of £1,800 including VAT is applicable to this lot. The purchaser will pay the fee whether the property is bought before, at or following the auction date.
Legal Pack
Purchasing a property at auction is a firm commitment that carries the same legal implications as a signed contract by private treaty. It is important that you consult with your legal adviser before bidding and also your accountant regarding the impact of VAT, if applicable, on the sale price. The legal pack can be viewed online via our website Legal packs can also be viewed at the selling office. These documents should be passed to your legal adviser as they will help you make an informed decision about the lot. If you need further legal information please contact the vendor's solicitor whose details will be in the auction catalogue. Remember that you buy subject to all documentation and terms of contract whether or not you have read them.
Addendum
Check the latest addendum at buttersjohnbee.com for any alterations or changes to the catalogue.
Internet, Telephone and Proxy Bidding
We are pleased to announce that we are now back in the Auction room at the Double Tree Hilton Hotel (Moat House). However, we also have the other bidding options available: On-Line / Telephone / By-Proxy. You will need to register in advance and provide two forms of ID. Register at or contact the Auction Team on or .
Deposit
Please note that a deposit of 10% of the purchase price (Min £3,000) will be due on Exchange of Contracts, whether the land / property is sold prior to Auction, in the Auction room or after the Auction.
Rating
The VOA website advises the rateable value for 2023/24 is to be confirmed and may need re-assessment depending on use. The standard non-domestic business rates multiplier is 51.2p. The small business multiplier is 49.9p up to a rateable value of £50,999. Small Business may benefit for upto100% on premises with a rateable value of up to £12,000 and a tapered relief for rateable values between £12,000 and £15,000.
Bjb recommends interested parties make their own enquiries into the business rate payable any further business rate relief which may be available.
Legal Costs
Please refer to the auction pack in respect of any legal fees or search fees which may be due upon exchange or completion.
Viewings
Strictly By Appointment with the BJB Land & New Homes Team.
Looking for Land and Development Opportunities ?
Please note that not all land & development opportunities will appear on our website. To ensure that you do not miss out on these opportunities please e-mail: residential- or call the Land & New Homes team to discuss your requirements.
All Enquiries
Alex Djukic BSc MSc
Regional Land Manager
Land & New Homes Team
residential-
Joe Boulton BSc
Assistant Land Manager
Land & New Homes Team
residential-
Disclaimer
Butters John Bee Estate Agents also offer a professional, ARLA accredited Lettings and Management Service. If you are considering purchasing your property in order to rent, are looking at buy to let or would like a free review of your current portfolio then please call the Lettings Branch Manager on the number shown above.
Butters John Bee Estate Agents is the seller's agent for this property. Your conveyancer is legally responsible for ensuring any purchase agreement fully protects your position. We make detailed enquiries of the seller to ensure the information provided is as accurate as possible. Please inform us if you become aware of any information being inaccurate.
Brochures
BrochureEnergy Performance Certificates
EPC 1Gitana Street, Stoke on Trent
NEAREST STATIONS
Distances are straight line measurements from the centre of the postcode- Stoke-on-Trent Station1.2 miles
- Longport Station2.0 miles
- Longton Station3.0 miles
Notes
Disclaimer - Property reference 9902_XXX990200282. The information displayed about this property comprises a property advertisement. Rightmove.co.uk makes no warranty as to the accuracy or completeness of the advertisement or any linked or associated information, and Rightmove has no control over the content. This property advertisement does not constitute property particulars. The information is provided and maintained by Butters John Bee Land, Stoke-on-Trent. Please contact the selling agent or developer directly to obtain any information which may be available under the terms of The Energy Performance of Buildings (Certificates and Inspections) (England and Wales) Regulations 2007 or the Home Report if in relation to a residential property in Scotland.
Auction Fees: The purchase of this property may include associated fees not listed here, as it is to be sold via auction. To find out more about the fees associated with this property please call Butters John Bee Land, Stoke-on-Trent on 01782 493945.
*Guide Price: An indication of a seller's minimum expectation at auction and given as a Guide Price or a range of Guide Prices. This is not necessarily the figure a property will sell for and is subject to change prior to the auction.
Reserve Price: Each auction property will be subject to a Reserve Price below which the property cannot be sold at auction. Normally the Reserve Price will be set within the range of Guide Prices or no more than 10% above a single Guide Price.
Map data ©OpenStreetMap contributors.







