
Victoria Street, Lytham St. Annes, Lancashire, FY8

- PROPERTY TYPE
Terraced
- BEDROOMS
3
- BATHROOMS
1
- SIZE
Ask agent
Key features
- SOUGHT AFTER LOCATION IN LYTHAM
- NO CHAIN
- CLOSE TO LYTHAM GREEN
- WELL PRESENTED 3 BEDROOM HOUSE
Description
*** IMPRESSIVE 3 BEDROOM HOUSE LOCATED CLOSE TO LYTHAM GREEN AND LYTHAM CENTRE, 2 RECEPTION ROOMS, KITCHEN BREAKFAST ROOM, 3 BEDS, BATHROOM, REAR GARDEN, NO CHAIN..... Unique Estate Agency are delighted to bring this property to the open market ***
Welcome to Victoria Street, Lytham, this well proportioned mid terraced house is positioned in a prime residential location. The house is located very close to Lytham Green, and within easy reach of Lytham Town Centre and its shops, cafes and bars. It is also ideally places for schools and transport links.
Front door opens on to the an entrance vestibule, inner door with feature stain glass detailing opens on to an impressive hallway. Door from the hall leads into the dining room, double glazed window to rear elevation, brick fire surround, feature wooden flooring. The dining room is semi open plan to the lounge, double glazed bay window to front elevation, feature wooden flooring. The kitchen has two double glazed windows to the side elevation, and double glazed door which opens open on to rear garden. The kitchen comprises a range of wall and base units with complementary worktops, 1+1/2 bowl stainless steel sink with single drainer and mixer tap, plumbed for washer and dishwasher, space for fridge/freezer. Integral oven, hob and extractor hood over. TV point, recently fitted wall mounted combi boiler (installed February 2025), door to under stairs storage cupboard.
Stairs from the aforementioned hallway lead to the split level landing, skylight. There are 3 bedrooms, 2 of which are good size doubles. The main bedroom is particularly well proportioned. There is a modern fitted shower room, a 3 piece suite comprises; double shower enclosure with fitted shower, wash hand basin, toilet, part tiled walls, heated towel rail, extractor fan, obscure double glazed window to side.
The property benefits from having been rewired in 2020 and having a new central heating system installed in February 2025.
External
Low maintenance front garden leads to the front door. Enclosed rear low maintenance paved rear garden, gate leading to Wellington St. Outbuilding with power and light.
UPVc double glazed and gas central heated throughout.
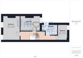
LOUNGE - 3.65 x 3.32 m (11′12″ x 10′11″ ft)
DINING ROOM - 3.91 x 3.85 m (12′10″ x 12′8″ ft)
KITCHEN BREAKFAST ROOM - 5.12 x 3.03 m (16′10″ x 9′11″ ft)
BEDROOM - 4.88 x 3.33 m (16′0″ x 10′11″ ft)
BEDROOM - 3.94 x 3.08 m (12′11″ x 10′1″ ft)
BEDROOM - 3.04 x 1.87 m (9′12″ x 6′2″ ft)
BATHROOM - 3.11 x 2.04 m (10′2″ x 6′8″ ft)
- COUNCIL TAXA payment made to your local authority in order to pay for local services like schools, libraries, and refuse collection. The amount you pay depends on the value of the property.Read more about council Tax in our glossary page.
- Ask agent
- PARKINGDetails of how and where vehicles can be parked, and any associated costs.Read more about parking in our glossary page.
- Ask agent
- GARDENA property has access to an outdoor space, which could be private or shared.
- Yes
- ACCESSIBILITYHow a property has been adapted to meet the needs of vulnerable or disabled individuals.Read more about accessibility in our glossary page.
- Ask agent
Victoria Street, Lytham St. Annes, Lancashire, FY8
Add an important place to see how long it'd take to get there from our property listings.
__mins driving to your place
Get an instant, personalised result:
- Show sellers you’re serious
- Secure viewings faster with agents
- No impact on your credit score

Your mortgage
Notes
Staying secure when looking for property
Ensure you're up to date with our latest advice on how to avoid fraud or scams when looking for property online.
Visit our security centre to find out moreDisclaimer - Property reference 9334. The information displayed about this property comprises a property advertisement. Rightmove.co.uk makes no warranty as to the accuracy or completeness of the advertisement or any linked or associated information, and Rightmove has no control over the content. This property advertisement does not constitute property particulars. The information is provided and maintained by Unique Estate Agency Ltd, Lytham St Annes. Please contact the selling agent or developer directly to obtain any information which may be available under the terms of The Energy Performance of Buildings (Certificates and Inspections) (England and Wales) Regulations 2007 or the Home Report if in relation to a residential property in Scotland.
*This is the average speed from the provider with the fastest broadband package available at this postcode. The average speed displayed is based on the download speeds of at least 50% of customers at peak time (8pm to 10pm). Fibre/cable services at the postcode are subject to availability and may differ between properties within a postcode. Speeds can be affected by a range of technical and environmental factors. The speed at the property may be lower than that listed above. You can check the estimated speed and confirm availability to a property prior to purchasing on the broadband provider's website. Providers may increase charges. The information is provided and maintained by Decision Technologies Limited. **This is indicative only and based on a 2-person household with multiple devices and simultaneous usage. Broadband performance is affected by multiple factors including number of occupants and devices, simultaneous usage, router range etc. For more information speak to your broadband provider.
Map data ©OpenStreetMap contributors.






