Station Road, Walkeringham, DN10

- PROPERTY TYPE
Terraced
- BEDROOMS
3
- BATHROOMS
1
- SIZE
872 sq ft
81 sq m
- TENUREDescribes how you own a property. There are different types of tenure - freehold, leasehold, and commonhold.Read more about tenure in our glossary page.
Freehold
Key features
- 3 GENEROUS BEDROOMS
- DESIRABLE RURAL VILLAGE LOCATION
- PEACEFUL SCENIC WALKING TRAILS ALONG THE RIVER TRENT CLOSE BY
- ORIGINAL FEATURES THROUGHOUT
- OPEN FIREPLACE AND LOG BURNER
- REAR GARDEN & ALLOTMENT WITH OUTBUILDINGS
- CLOSE TO LOCAL AMENITIES AND HIGHLY REGARDED SCHOOLS
Description
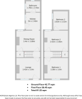
Ground Floor
Step inside to find a warm and welcoming lounge featuring a stunning open fireplace, perfect for cosy evenings. The generously sized dining room, complete with a log burner, provides the ideal setting for family meals or entertaining guests. The ground floor also boasts a contemporary, fully fitted kitchen and a family bathroom.
First Floor
Upstairs comprises two spacious double bedrooms and a well-proportioned single bedroom, perfect for a growing family or those needing a home office.
Outside
To the rear, enjoy a charming, low-maintenance garden with plenty of character. Additional external features include two useful outbuildings, a piggery ideal for storage, and an allotment.
Location
This lovely home is within walking distance of village amenities, including a friendly local pub and Walkeringham Primary School, rated "Good" by Ofsted. Nature lovers will appreciate the proximity to Idle Valley Nature Reserve, and the river Trent, offering beautiful walks along the river banks. The market town of Gainsborough is just a 10-minute drive away, providing a wide range of shops, supermarkets, and further amenities.
This is a fantastic opportunity to embrace a tranquil village lifestyle with convenient access to modern comforts and countryside pursuits.
Ground Floor Accommodation
Lounge - 3.4m x 3.9m
Accessed via the composite front door, the cosy front aspect lounge features a beautiful open fireplace and original wooden flooring.
Dining Room/2nd Sitting Room- 3.4m x 3.9m
A generous second reception room currently serving as a dining room, featuring a multi-fuel burner and convenient under stairs cupboard.
Kitchen - 3m x 2.5m
Featuring a range of wall and base cupboard units, complementary wood effect worktops, electric double oven, four ring gas hob with overhead extractor, sink and half bowl with mixer tap and space for a fridge/freezer, dishwasher and washing machine. A rear composite door provides external access.
Family Bathroom - 1.8m x 2.4m
A spacious fully tiled family bathroom, comprising of a bath with overhead shower, low flush w/c and wash basin.
First Floor Accommodation
Bedroom One - 3.4m x 3.9m
Front aspect double bedroom featuring neutral carpets and central heating radiator.
Bedroom Two - 3.4m x 3.9m
Rear aspect double bedroom featuring a built-in storage cupboard, neutral carpets and central heating radiator.
Bedroom three - 3m x 2.5m
Good size single bedroom off the second bedroom, featuring wood flooring and central heating radiator.
Agent Notes
Floorplans: The floorplans within these particulars are for identification purposes only, they are representational and are not to scale. Accuracy and proportions should be checked by prospective purchasers at the property.
Money Laundering Regulations: In accordance with Anti Money Laundering Regulations, buyers will be required to provide proof of identity once an offer has been accepted (subject to contract) prior to solicitors being instructed.
General: Whilst every care has been taken with the preparation of these particulars, they are only a general guide to the property. These Particulars do not constitute a contract or part of a contract.
- COUNCIL TAXA payment made to your local authority in order to pay for local services like schools, libraries, and refuse collection. The amount you pay depends on the value of the property.Read more about council Tax in our glossary page.
- Ask agent
- PARKINGDetails of how and where vehicles can be parked, and any associated costs.Read more about parking in our glossary page.
- Ask agent
- GARDENA property has access to an outdoor space, which could be private or shared.
- Yes
- ACCESSIBILITYHow a property has been adapted to meet the needs of vulnerable or disabled individuals.Read more about accessibility in our glossary page.
- Ask agent
Station Road, Walkeringham, DN10
Add an important place to see how long it'd take to get there from our property listings.
__mins driving to your place
Get an instant, personalised result:
- Show sellers you’re serious
- Secure viewings faster with agents
- No impact on your credit score
Your mortgage
Notes
Staying secure when looking for property
Ensure you're up to date with our latest advice on how to avoid fraud or scams when looking for property online.
Visit our security centre to find out moreDisclaimer - Property reference 3thebeeches64. The information displayed about this property comprises a property advertisement. Rightmove.co.uk makes no warranty as to the accuracy or completeness of the advertisement or any linked or associated information, and Rightmove has no control over the content. This property advertisement does not constitute property particulars. The information is provided and maintained by ACR Estate Agents Ltd, Covering Doncaster. Please contact the selling agent or developer directly to obtain any information which may be available under the terms of The Energy Performance of Buildings (Certificates and Inspections) (England and Wales) Regulations 2007 or the Home Report if in relation to a residential property in Scotland.
*This is the average speed from the provider with the fastest broadband package available at this postcode. The average speed displayed is based on the download speeds of at least 50% of customers at peak time (8pm to 10pm). Fibre/cable services at the postcode are subject to availability and may differ between properties within a postcode. Speeds can be affected by a range of technical and environmental factors. The speed at the property may be lower than that listed above. You can check the estimated speed and confirm availability to a property prior to purchasing on the broadband provider's website. Providers may increase charges. The information is provided and maintained by Decision Technologies Limited. **This is indicative only and based on a 2-person household with multiple devices and simultaneous usage. Broadband performance is affected by multiple factors including number of occupants and devices, simultaneous usage, router range etc. For more information speak to your broadband provider.
Map data ©OpenStreetMap contributors.





