Chinley, High Peak

- PROPERTY TYPE
Semi-Detached Bungalow
- BEDROOMS
3
- BATHROOMS
1
- SIZE
Ask agent
- TENUREDescribes how you own a property. There are different types of tenure - freehold, leasehold, and commonhold.Read more about tenure in our glossary page.
Freehold
Key features
- Semi Detached Bungalow
- Three Bedrooms
- Deceptively Spacious
- Stunning Views to Rear
- Large Garden
- Lower Ground Floor Garage to Rear
- Easy Access to Train Station and Local Shops
Description
With stunning views to the rear, residents can enjoy the tranquility of the surroundings from the comfort of their own home. The large garden offers plenty of outdoor space for relaxation or entertaining guests. Additionally, the lower ground floor garage to the rear provides convenient parking and storage options.
Located within easy reach the train station and local shops, this property offers easy access to essential amenities. The master bedroom is equipped with fitted wardrobes and the driveway and parking area ensure hassle-free parking for residents and visitors alike.
For those who appreciate the beauty of the countryside, this property is ideally situated close to nature trails and scenic landscapes. This semi-detached bungalow presents a fantastic opportunity to own a comfortable and inviting home in a sought-after location.
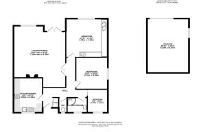
In a little more detail, the property is accessed via a driveway which sweeps past the front garden and down the side of the house to the garage at the rear. Internally there is an entrance hallway with useful storage cupboard, a kitchen breakfast room with a range of fitted wall and base units and space for white goods, overlooking the front garden. There is a recently installed, modern WC and bathroom comprising corner shower cubicle with glass enclosure and wash basin. Bedroom three looks out to the front and the second bedroom has a window looking out to the side of the property. The master bedroom is a generous bedroom with fitted wardrobes, drawers and dressing table and looks out to the rear over to Eccles Pike. The lounge also has the same stunning views and is a generous space with fireplace and double doors opening to the rear onto the raised patio seating area. The rear of the property is another generous space with steps down from the raised patio, driveway giving access to the lower ground floor garage via up and over door and large garden surrounded by shrubs and trees.
LOCATION
Chinley is a picturesque semi rural village which offers excellent day to day shopping facilities and good train links to Manchester and Sheffield. The area is ideal for many outdoor pursuits such as walking, cycling and horse riding. The nearby village of Whitehough offers two excellent Public Houses, with the larger towns of Whaley Bridge and Chapel-en-le-Frith offering a wider range of shops, public houses and Restaurants. The house is within the catchment of the highly regarded primary school.
Entrance Hall
FREEHOLD Subject to Verification By Solicitors
Not Tested
High Peak Borough Council
Brochures
Brochure.pdfWilsden_CF1020484.pd- COUNCIL TAXA payment made to your local authority in order to pay for local services like schools, libraries, and refuse collection. The amount you pay depends on the value of the property.Read more about council Tax in our glossary page.
- Band: D
- PARKINGDetails of how and where vehicles can be parked, and any associated costs.Read more about parking in our glossary page.
- Garage
- GARDENA property has access to an outdoor space, which could be private or shared.
- Yes
- ACCESSIBILITYHow a property has been adapted to meet the needs of vulnerable or disabled individuals.Read more about accessibility in our glossary page.
- Ask agent
Chinley, High Peak
Add an important place to see how long it'd take to get there from our property listings.
__mins driving to your place
Get an instant, personalised result:
- Show sellers you’re serious
- Secure viewings faster with agents
- No impact on your credit score



Your mortgage
Notes
Staying secure when looking for property
Ensure you're up to date with our latest advice on how to avoid fraud or scams when looking for property online.
Visit our security centre to find out moreDisclaimer - Property reference 1020484. The information displayed about this property comprises a property advertisement. Rightmove.co.uk makes no warranty as to the accuracy or completeness of the advertisement or any linked or associated information, and Rightmove has no control over the content. This property advertisement does not constitute property particulars. The information is provided and maintained by Gascoigne Halman, Chapel-En-Le-Frith. Please contact the selling agent or developer directly to obtain any information which may be available under the terms of The Energy Performance of Buildings (Certificates and Inspections) (England and Wales) Regulations 2007 or the Home Report if in relation to a residential property in Scotland.
*This is the average speed from the provider with the fastest broadband package available at this postcode. The average speed displayed is based on the download speeds of at least 50% of customers at peak time (8pm to 10pm). Fibre/cable services at the postcode are subject to availability and may differ between properties within a postcode. Speeds can be affected by a range of technical and environmental factors. The speed at the property may be lower than that listed above. You can check the estimated speed and confirm availability to a property prior to purchasing on the broadband provider's website. Providers may increase charges. The information is provided and maintained by Decision Technologies Limited. **This is indicative only and based on a 2-person household with multiple devices and simultaneous usage. Broadband performance is affected by multiple factors including number of occupants and devices, simultaneous usage, router range etc. For more information speak to your broadband provider.
Map data ©OpenStreetMap contributors.




