
4 bedroom barn conversion for sale
Moulton St. Mary, Norwich

- PROPERTY TYPE
Barn Conversion
- BEDROOMS
4
- BATHROOMS
2
- SIZE
2,097 sq ft
195 sq m
- TENUREDescribes how you own a property. There are different types of tenure - freehold, leasehold, and commonhold.Read more about tenure in our glossary page.
Freehold
Key features
- Detached Barn with Planning Permission to Convert
- Rural Farm Setting
- Walled Garden as Part of Scheme with Car Port & Parking
- Potential to Include Annexe
- Potential for Up to Four Reception Rooms
- Scheme to Include Four First Floor Bedrooms
- Short Drive to Acle & A47
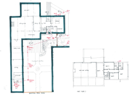
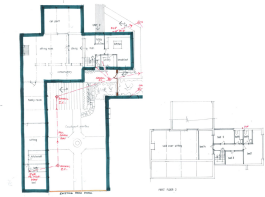
- Planning Permission Reference 2018/1983
Description
IN SUMMARY
Introducing a rare opportunity to own an UN-LISTED DETACHED BARN in a serene RURAL FARM SETTING, READY FOR CONVERSION with vast POTENTIAL for those SEEKING a BESPOKE HOME PROJECT. Boasting PLANNING PERMISSION to CONVERT, this barn presents as a blank canvas with the scope to become a stunning residence. The property features a CHARMING WALLED GARDEN that forms part of the scheme, offering a PRIVATE sanctuary, complemented by a convenient CAR PORT and ample parking. Furthermore, the BARN has been RE-ROOFED and the layout allows for the creation of an ANNEXE, providing flexibility for various living arrangements. With the opportunity to include up to FOUR RECEPTION ROOMS and a plan for FOUR FIRST FLOOR BEDROOMS, this property promises spacious and versatile living areas. Situated just a short drive away from Acle and the A47, convenience meets tranquillity in this unique property. For those who value both privacy and accessibility, the chance to create a bespoke home awaits (Planning Permission Reference: 2018/1983).
SETTING THE SCENE
The barn is situated on a shared track which leads to various cottages and the farm. The barn development of two units is located adjacent to the farm entrance.
FIND US
Postcode : NR13 3ND
What3Words : ///reminds.quaking.earphones
VIRTUAL TOUR
View our virtual tour for a full 360 degree of the interior of the property.
AGENTS NOTES
A drainage plan is in place as part of the scheme, involving the adjacent barn. Adjacent storage tanks currently sit along the side wall of the barn, but these will be relocated by the owner.
Garden
THE GREAT OUTDOORS
The exterior space requires landscaping as part of the development, but offers a walled south facing garden as part of the scheme.
Disclaimer
Anti-Money Laundering (AML) Fee Statement:
To comply with HMRC's regulations on Anti-Money Laundering (AML), we are legally required to conduct AML checks on every purchaser once a sale is agreed. We use a government-approved electronic identity verification service to ensure compliance, accuracy, and security. This is approved by the Government as part of the Digital Identity and Attributes Trust Framework (DIATF). The cost of anti-money laundering (AML) checks are £50 including VAT per person, payable in advance after an offer has been accepted. This fee is mandatory to comply with HMRC regulations and must be paid before a memorandum of sale can be issued. Please note that the fee is non-refundable.
General Disclaimer:
Whilst every care has been taken to prepare these sales particulars, they are for guidance purposes only. All measurements are approximate are for general guidance purposes only.
Brochures
Property Brochure- COUNCIL TAXA payment made to your local authority in order to pay for local services like schools, libraries, and refuse collection. The amount you pay depends on the value of the property.Read more about council Tax in our glossary page.
- Ask agent
- PARKINGDetails of how and where vehicles can be parked, and any associated costs.Read more about parking in our glossary page.
- Yes
- GARDENA property has access to an outdoor space, which could be private or shared.
- Private garden
- ACCESSIBILITYHow a property has been adapted to meet the needs of vulnerable or disabled individuals.Read more about accessibility in our glossary page.
- Ask agent
Energy performance certificate - ask agent
Moulton St. Mary, Norwich
Add an important place to see how long it'd take to get there from our property listings.
__mins driving to your place
Get an instant, personalised result:
- Show sellers you’re serious
- Secure viewings faster with agents
- No impact on your credit score
Your mortgage
Notes
Staying secure when looking for property
Ensure you're up to date with our latest advice on how to avoid fraud or scams when looking for property online.
Visit our security centre to find out moreDisclaimer - Property reference 49885552-351a-490e-9ec9-a884b6eeb8b5. The information displayed about this property comprises a property advertisement. Rightmove.co.uk makes no warranty as to the accuracy or completeness of the advertisement or any linked or associated information, and Rightmove has no control over the content. This property advertisement does not constitute property particulars. The information is provided and maintained by Starkings & Watson, Brundall. Please contact the selling agent or developer directly to obtain any information which may be available under the terms of The Energy Performance of Buildings (Certificates and Inspections) (England and Wales) Regulations 2007 or the Home Report if in relation to a residential property in Scotland.
*This is the average speed from the provider with the fastest broadband package available at this postcode. The average speed displayed is based on the download speeds of at least 50% of customers at peak time (8pm to 10pm). Fibre/cable services at the postcode are subject to availability and may differ between properties within a postcode. Speeds can be affected by a range of technical and environmental factors. The speed at the property may be lower than that listed above. You can check the estimated speed and confirm availability to a property prior to purchasing on the broadband provider's website. Providers may increase charges. The information is provided and maintained by Decision Technologies Limited. **This is indicative only and based on a 2-person household with multiple devices and simultaneous usage. Broadband performance is affected by multiple factors including number of occupants and devices, simultaneous usage, router range etc. For more information speak to your broadband provider.
Map data ©OpenStreetMap contributors.






