Lixouri, Cephalonia, Ionian Islands, Greece
- PROPERTY TYPE
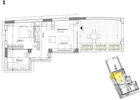
Ground Flat
- BEDROOMS
1
- BATHROOMS
1
- SIZE
608 sq ft
57 sq m
Key features
- On the Sea Front
- 22.6m2 Garden
- Close to the main square 5 minute walk
- BRAND NEW - Just waiting for you to choose your kitchen and finishes
- Choice of Wood or Tiled Flooring
- Aluminium windows & doors with energy efficient glass
Description
A Perfect Blend of Comfort and Luxury - This 56.5m2 seaside ground floor apartment, situated in the heart of Lixouri, offers an ideal combination of comfort, elegance, and breathtaking views.
Thoughtfully designed with functionality in mind, it features spacious rooms with large windows that allow natural light to flood the interiors while providing unobstructed vistas of the sea.
Amenities Include:
* Air conditioning throughout the apartment
* Solar hot water system
* Elevator with an eight-person capacity
* Individual personal storage space in the basement
Outdoor Space Features:
* A Private garden of 22.6m2, ideal for relaxation
Finishings:
* Choice of wood or tiled flooring
* Glass balcony railings
* Aluminium window and door frames with energy efficient glass
* Bathrooms featuring Moroccan plaster, known for its durability and waterproof properties, complemented by marble-tiled flooring
Convenient Location:
All major attractions in the town, includes the central market, port, square, and various services, which are within walking distance, ensuring that daily commutes are both effortless and economical.
Investment Opportunity
This offering represents an excellent option for both permanent and vacation living, making it an exceptional investment for future owners who may wish to rent the apartment, whether year-round or during the summer months.
The apartment is sold unfurnished and without electrical appliances; however, a "turnkey" option, which includes these items, is available upon request for an additional fee.
Lixouri, Cephalonia, Ionian Islands, Greece
NEAREST AIRPORTS
Distances are straight line measurements- Cephalonia(International)6.5 miles
- Zakynthos Island(International)39.1 miles
- Aktion(International)53.4 miles
Advice on buying Greek property
Learn everything you need to know to successfully find and buy a property in Greece.
Notes
This is a property advertisement provided and maintained by GM Properties & Developments, Kefalonia (reference M-3742) and does not constitute property particulars. Whilst we require advertisers to act with best practice and provide accurate information, we can only publish advertisements in good faith and have not verified any claims or statements or inspected any of the properties, locations or opportunities promoted. Rightmove does not own or control and is not responsible for the properties, opportunities, website content, products or services provided or promoted by third parties and makes no warranties or representations as to the accuracy, completeness, legality, performance or suitability of any of the foregoing. We therefore accept no liability arising from any reliance made by any reader or person to whom this information is made available to. You must perform your own research and seek independent professional advice before making any decision to purchase or invest in overseas property.




