Commercial property for sale
High Road, Whaplode, Spalding
- PROPERTY TYPE
Commercial Property
- BEDROOMS
3
- BATHROOMS
2
- SIZE
Ask agent
Key features
- Prominent High Road location in Whaplode with excellent visibility and passing trade.
- Currently operating as a successful Indian restaurant and takeaway with fully equipped commercial kitchen.
- Living accommodation above, ideal for owner-operators or staff.
- Generous plot of approximately one-third of an acre with ample parking.
- Versatile opportunity – continue as an ongoing concern or explore redevelopment potential.
- Previous planning applications submitted, highlighting scope for alternative uses (subject to consents).
Description
Set on a generous plot of approximately one-third of an acre, this well-positioned property offers a unique opportunity for buyers seeking a ready-made business venture or an exciting development prospect.
Currently trading as a popular Indian restaurant and takeaway, Darjeeling benefits from a spacious dining area, fully equipped commercial kitchen, and all the facilities needed to continue as an ongoing concern. Above, you’ll find comfortable living accommodation, making it ideal for owner-operators or those wishing to combine work and home life in one convenient location.
With its prominent frontage along High Road, the property enjoys excellent visibility and passing trade. The expansive plot provides ample parking and scope for future enhancement. Previous planning applications have been submitted in recent years, highlighting the site’s versatility and potential for redevelopment, subject to the necessary consents.
Whether you’re looking to step into the hospitality industry, expand an existing portfolio, or explore a fresh development opportunity, this property offers flexibility and promise in equal measure.
Contact Ark Property Centre today for more information or to arrange a viewing.
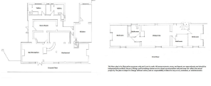
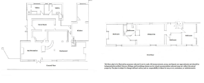
Entrance Lobby - Double doors opening. Tiled flooring. Radiator. Access to ladies and gentleman's toilets and boiler room, central store room and opening to bar area/reception.
Bar Area/Reception - Window to front. Double doors opening to front. Laminate flooring. Air conditioning unit. Opening through to the restaurant.
Restaurant - Currently set out for circa 40 covers. Windows to front. Air conditioning unit. Bar area. Opening through to rear lobby and entrance to the kitchen.
Kitchen - Windows and door opening to rear. Fixtures and fittings to be confirmed.
Rear Lobby - Door to courtyard.
Gentleman's Toilet - Cubicle and urinal. Wash hand basin.
Ladies Toilet - Cubicle. Wash hand basin.
Landing - Leading to bedrooms and bathroom.
Bedroom - Window to front. Built in cupboards.
Bedroom - Window to front.
Living Area - Window to front and rear. Built in storage. Radiator.
Bathroom - Window to rear. Panelled bath. Wash hand basin. Toilet. Loft access.
Bedroom - Window to front.
Outside -
Property Postcode - For location purposes the postcode of this property is: PE12 6TG
Additional Information - PLEASE NOTE:
All photos are property of Ark Property Centre and can not be used without their explicit permission.
Verified Material Information - Tenure: Freehold
Business Rates:
Property construction: Brick built
Electricity supply: Mains
Solar Panels: No
Other electricity sources: No
Water supply: Anglian Water
Sewerage: Mains
Heating: Gas central heating
Heating features: No
Broadband: As stated by Ofcom, Standard, Superfast and Ultrafast is available.
Mobile coverage: As stated by Ofcom, Indoor - EE is Likely over Voice and Data. Three is Limited over Voice and Data. O2 is Likely over Voice and Data. Vodafone is Limited over Voice and Data.
Mobile coverage: As stated by Ofcom, Outdoor - EE is Likely over Voice and Data. Three is Likely over Voice and Data, O2 is Likely over Voice and Data. Vodafone is Likely over Voice and Data.
Parking: Car park
Building safety issues: Not known
Restrictions: No
Public right of way: Right of access for properties to the rear
Flood risk: Surface water - very low. Rivers and the sea - low. Other flood risks - Groundwater - flooding from groundwater is unlikely in this area. Reservoirs - flooding from reservoirs is unlikely in this area.
Coastal erosion risk: No
Planning permission: Please refer to South Holland District Council Planning Portal for any planning applications.
Accessibility and adaptations: No
Coalfield or mining area: No
Energy Performance rating: 58C
Brochures
High Road, Whaplode, SpaldingBrochureHigh Road, Whaplode, Spalding
NEAREST STATIONS
Distances are straight line measurements from the centre of the postcode- Spalding Station5.0 miles
Notes
Disclaimer - Property reference 34091728. The information displayed about this property comprises a property advertisement. Rightmove.co.uk makes no warranty as to the accuracy or completeness of the advertisement or any linked or associated information, and Rightmove has no control over the content. This property advertisement does not constitute property particulars. The information is provided and maintained by Ark Property Centre, Spalding. Please contact the selling agent or developer directly to obtain any information which may be available under the terms of The Energy Performance of Buildings (Certificates and Inspections) (England and Wales) Regulations 2007 or the Home Report if in relation to a residential property in Scotland.
Map data ©OpenStreetMap contributors.





