
Exeter Road, Winkleigh, Devon, EX19
- PROPERTY TYPE
Commercial Property
- SIZE
Ask agent
Key features
- Genuine retirement sale
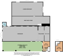
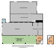
- Car repair workshop and stores
- Covered car sales forecourt
- Large site with ample parking
- For sale as existing business
- Alternatively the site has planning to demolish existing building and erect 6 dwellings - See planning number 1/0322/2024/OUT lodged with Torridge District Council
Description
In the sought after village of Winkleigh this rural hamlet has a population of about 1,300 inhabitants and is fast expanding with new housing estates being constructed on the boundary.
The village is perhaps most famous as the home of Inch's Cider and nearby the former Winkleigh Airfield which was a training base during the second World War. Winkleigh has a store, a butchers, Post Office, cafe and public houses.
Winkleigh is a picturesque rural village surrounded by rolling countryside, offering a peaceful escape from urban life. The nearest market town is Torrington about 11 miles to the north. It lies about 20 miles north west of Exeter.
THE PROPERTY
This long established vehicle sales and repair workshop sits on a plot bordering one of the main roads through the village. It is accessible to the nearby village Square and all amenities. The premises are now available due to retirement and comprise of a main workshop circa 1,728 sq ft, lower workshop circa 987 sq ft plus parts store, staff cloakroom, 2 offices and covered forecourt car sales area circa 1,000 sq ft, 4 lock up garages and car parking area to one side. For sale as existing business or for re-development.
PLANNING PERMISSION
Planning has been granted to demolish the existing building and construct 6 dwellings on the site. Planning number: 1/0322/2024/OUT lodged with Torridge District Council.
SERVICES
Mains electricity, water and drainage. We encourage you to check before viewing a property the potential broadband speeds and mobile signal coverage. You can do so by visiting
VAT
We understand that our client has not opted to charge VAT. All interested parties should make their own enquiries of HMRC.
VIEWING
Strictly by appointment through the selling agents.
RATEABLE VALUE
£14,000 UBR. As of April 2026, the Uniform Business Rate (UBR) multipliers are 43.2p in the pound for properties with a Rateable Value below £51,000 and 48.0p for properties at £51,000 or above.
The Rateable Value has been obtained from the Valuation Office Agency at the time these details were prepared. Prospective occupiers should verify the current Rateable Value and multiplier with the Valuation Office Agency or via the GOV.UK website.
Small Business Rate Relief (up to 100%) may apply for properties with a Rateable Value below £12,000, subject to eligibility and local authority assessment.
LEGAL ADVICE
We strongly recommend that a buyer takes independent legal advice and instructs solicitors to act on their behalf. Each party bears their own legal costs unless otherwise stated.
PLANNING
It is the responsibility of the proposed buyer to satisfy for themselves independently that their intended use complies with existing planning permission by contacting the local council planning department. The cost of any change of planning use is the buyer's responsibility.
From Torrington take the main A3124 road, proceed past the football pitch on your left then take a right turn into Exeter Street.
Proceed along this road for a few hundred yards and the premises are on the left hand side.
Brochures
ParticularsExeter Road, Winkleigh, Devon, EX19
NEAREST STATIONS
Distances are straight line measurements from the centre of the postcode- Eggesford Station3.8 miles
Notes
Disclaimer - Property reference COM250086. The information displayed about this property comprises a property advertisement. Rightmove.co.uk makes no warranty as to the accuracy or completeness of the advertisement or any linked or associated information, and Rightmove has no control over the content. This property advertisement does not constitute property particulars. The information is provided and maintained by Webbers Property Services, Torrington. Please contact the selling agent or developer directly to obtain any information which may be available under the terms of The Energy Performance of Buildings (Certificates and Inspections) (England and Wales) Regulations 2007 or the Home Report if in relation to a residential property in Scotland.
Map data ©OpenStreetMap contributors.






