Shop for rent
Totteridge Road, High Wycombe, Buckinghamshire, HP13
Letting details
- Let available date:
- Ask agent
- Deposit:
- £1,500A deposit provides security for a landlord against damage, or unpaid rent by a tenant.Read more about deposit in our glossary page.
- Let type:
- Long term
- Furnish type:
- Unfurnished
- PROPERTY TYPE
Shop
- BEDROOMS
1
- BATHROOMS
1
- SIZE
500 sq ft
46 sq m
Description
Available from 01 Jan 2024
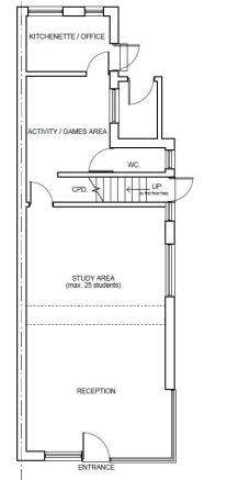
An excellent opportunity to rent a versatile commercial shop space, perfect for use as a tuition center, coaching institute, training academy, or other educational activities. Located in a safe, accessible area with good... read more
1 Main Room
1 Bathroom(s)
1 Staff Area
Address: Totteridge Road , High Wycombe, HP13 7LB.
Guide Price: £1,500
For more details and to book an appointment, Call our dedicated sales team now
Totteridge Road, High Wycombe, Buckinghamshire, HP13
NEAREST STATIONS
Distances are straight line measurements from the centre of the postcode- High Wycombe Station0.5 miles
- Bourne End Station3.9 miles
- Beaconsfield Station4.1 miles
Notes
Disclaimer - Property reference ShopInTotteridge. The information displayed about this property comprises a property advertisement. Rightmove.co.uk makes no warranty as to the accuracy or completeness of the advertisement or any linked or associated information, and Rightmove has no control over the content. This property advertisement does not constitute property particulars. The information is provided and maintained by Girik Lettings, High Wycombe. Please contact the selling agent or developer directly to obtain any information which may be available under the terms of The Energy Performance of Buildings (Certificates and Inspections) (England and Wales) Regulations 2007 or the Home Report if in relation to a residential property in Scotland.
Map data ©OpenStreetMap contributors.






