
Cromer Road, Beeston Regis, Sheringham

- PROPERTY TYPE
Detached
- BEDROOMS
5
- BATHROOMS
4
- SIZE
3,155 sq ft
293 sq m
- TENUREDescribes how you own a property. There are different types of tenure - freehold, leasehold, and commonhold.Read more about tenure in our glossary page.
Freehold
Key features
- A stunningly presented home with added potential
- Wonderful coastal views
- Beautifully proportioned, extended accommodation
- Three reception rooms
- Five bedrooms
- Four bathrooms
- South facing garden at rear
- Four man Swedish rock sauna
- Ample off-road parking
- No onward chain
Description
Sheringham itself is approximately a mile distant and offers a wonderful selection of shops and restaurants, whilst both bus and rail services provide easy access to the County Capital of Norwich.
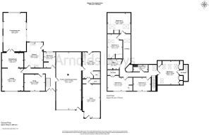
Entrance Hall - Two composite entrance doors, stairs to first floor, two radiators.
Lounge - With large picture window to front aspect with wonderful coastal views. Engineered oak floor, wood burning stove on slate tiles, provision for TV, radiator, wide opening to:
Dining Area - Continuation of engineered oak floor, radiator, twin panelled glass doors leading to:
Tv/Games Room - A beautifully light room with patio doors to the rear and windows to two further aspects. Two radiators, provision for TV and wiring for surround sound.
Snug/Bedroom - Radiator, window to front aspect, fitted desk/storage unit, provision for wall mounted TV.
Kitchen/Breakfast Room - Beautifully fitted with a range of white, high gloss, contemporary base and wall cabinets with solid work surfaces and matching upstands. Inset 1 1/2 bowl stainless steel sink unit, integrated dishwasher, range style, dual fuel stove with double oven, multi ring gas hob with stainless steel splashback and filter hood above. Integrated fridge, freezer and microwave. Concealed worktop lighting, and LED low level floor lighting, window and part glazed door to rear.
Bathroom - Panelled bath, vanity wash basin with cupboards beneath, close coupled w.c., enclosed shower cubicle, window to rear aspect, tiled floor and walls.
First Floor - With two Velux roof lights above stairs.
Landing - Two Velux roof lights, access to roof space. Low level LED floor lighting. Two doors opening to boiler cupboard and airing cupboard.
Bedroom 1 - Radiator, Velux roof lights to front and rear. Range of fitted wardrobe cupboards with central door opening to:
Ensuite - With enclosed shower cubicle, vanity wash basin, close coupled w.c., heated towel rail, Velux roof light.
Bedroom 5 - Window to front aspect with wonderful coastal views. Radiator.
Bedroom 2 - Window to front aspect with wonderful coastal views. Radiator, fitted wardrobe. Door to:
Ensuite - With enclosed shower cubicle, vanity wash basin, close coupled w.c.
Shower Room - With enclosed shower cubicle, pedestal wash basin, close coupled w.c., heated towel rail, Velux roof light.
Office - Velux roof light, fitted work surface.
Bedroom 4 - Radiator, provision for TV, Velux roof light, fitted wardrobe and drawer unit.
Bedroom 3 - Radiator, two Velux roof lights, provision for TV, fitted wardrobe cupboard.
Former Shop - Formerly a Convenience Store but suitable for conversion into additional accommodation (subject to Building Regulation approval) with store room and W.C at rear.
Salon - Currently operating as a Hair Salon but equally suitable for a home office etc. Lobby and Cloakroom at rear.
Outside - The property stands in a generous plot with a gated entrance leading to a shingled parking and turning area for a number of vehicles. A gated access then leads to the rear garden which has been very neatly arranged to provide a high degree of privacy. There is a raised decked area with pergola over and space for alfresco dining and hot tub which is included. There is an extensive lawned area with established planting and close boarded fencing. There is also a timber GARDEN SHED.
Agents Note - The property is freehold, has all mains services connected and has a Council Tac Rating of Band C. The property over the last three years has been re-roofed, insulated, all soffits and gutters replaced and new windows.
Brochures
Cromer Road, Beeston Regis, SheringhamEPCBrochure- COUNCIL TAXA payment made to your local authority in order to pay for local services like schools, libraries, and refuse collection. The amount you pay depends on the value of the property.Read more about council Tax in our glossary page.
- Band: C
- PARKINGDetails of how and where vehicles can be parked, and any associated costs.Read more about parking in our glossary page.
- Yes
- GARDENA property has access to an outdoor space, which could be private or shared.
- Yes
- ACCESSIBILITYHow a property has been adapted to meet the needs of vulnerable or disabled individuals.Read more about accessibility in our glossary page.
- Ask agent
Cromer Road, Beeston Regis, Sheringham
Add an important place to see how long it'd take to get there from our property listings.
__mins driving to your place
Get an instant, personalised result:
- Show sellers you’re serious
- Secure viewings faster with agents
- No impact on your credit score
Your mortgage
Notes
Staying secure when looking for property
Ensure you're up to date with our latest advice on how to avoid fraud or scams when looking for property online.
Visit our security centre to find out moreDisclaimer - Property reference 34092313. The information displayed about this property comprises a property advertisement. Rightmove.co.uk makes no warranty as to the accuracy or completeness of the advertisement or any linked or associated information, and Rightmove has no control over the content. This property advertisement does not constitute property particulars. The information is provided and maintained by Arnolds Keys, Coastal. Please contact the selling agent or developer directly to obtain any information which may be available under the terms of The Energy Performance of Buildings (Certificates and Inspections) (England and Wales) Regulations 2007 or the Home Report if in relation to a residential property in Scotland.
*This is the average speed from the provider with the fastest broadband package available at this postcode. The average speed displayed is based on the download speeds of at least 50% of customers at peak time (8pm to 10pm). Fibre/cable services at the postcode are subject to availability and may differ between properties within a postcode. Speeds can be affected by a range of technical and environmental factors. The speed at the property may be lower than that listed above. You can check the estimated speed and confirm availability to a property prior to purchasing on the broadband provider's website. Providers may increase charges. The information is provided and maintained by Decision Technologies Limited. **This is indicative only and based on a 2-person household with multiple devices and simultaneous usage. Broadband performance is affected by multiple factors including number of occupants and devices, simultaneous usage, router range etc. For more information speak to your broadband provider.
Map data ©OpenStreetMap contributors.







