McCourt Gardens, Bellshill

- PROPERTY TYPE
 Apartment
- BEDROOMS
 2
- BATHROOMS
 1
- SIZE
 743 sq ft
69 sq m
- TENUREDescribes how you own a property. There are different types of tenure - freehold, leasehold, and commonhold.Read more about tenure in our glossary page.
 Freehold
Key features
- Ground floor flat in walk-in condition
 - Spacious lounge with laminate flooring, neutral decor and space for dining
 - Cream fitted kitchen with contrasting worktops and integrated appliances
 - 2 double bedrooms with fitted wardrobes in bedroom 1 plus a large storage/box room
 - Recently refitted shower room
 - New Boiler under 2 years old
 - Residents parking to rear
 - Walking distance to Bellshill Main Street, shops, restaurants, bars and train station
 - Easy access to M8 and M74 motorways
 - COUNCIL TAX BAND: C - EPC RATING:C
 
Description
Move On are delighted to present to the market this 2 bedroom, ground floor flat in Bellshill - McCourt Gardens.
This lovely home is in walk-in condition, with generous room sizes and excellent storage, and would be perfectly suited for those looking for living accommodation all on the ground level.
The accommodation features: A bright lounge with space for dining, laminate flooring and neutral decor; fitted kitchen with cream wall and floor units, contrasting worktops and integrated fridge freezer and washing machine; 2 double bedrooms with fitted wardrobes and dual aspect windows in the main bedroom; recently refitted shower room; and a box room which makes for great storage but could also be converted to a small study or home office. There is gas central heating with a new boiler installed just over a year ago, double glazing, and security entry.
Externally there is a large parking area for residents and guests to the rear of the building, and manicured gardens all round.
McCourt Gardens is situated in a popular location in the Mossend area of Bellshill, close to Bellshill Main Street which has a good selection of shops, bars and restaurants as well as major supermarkets including Morrisons, Tesco and Aldi. Bellshill train station is also located within the town centre with frequent services to Glasgow and Edinburgh, and for those commuting by car, the M8, M74 and A725 East Kilbride Expressway are all within a few minutes drive.
Need help arranging a mortgage? Call our team to speak to one of our advisers.
Do you have a property to sell? Move On can get you on the market for sale quickly!
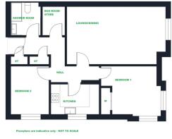
Lounge 6.39m (21' 0") x 3.73m (12' 3")
Kitchen 3.05m (10' 0") x 2.29m (7' 6")
Bedroom 1 3.65m (12' 0") x 3.52m (11' 7")
Bedroom 2 3.12m (10' 3") x 2.52m (8' 3")
Bathroom 1.97m (6' 6") x 1.92m (6' 4")
Brochures
PDF brochure- COUNCIL TAXA payment made to your local authority in order to pay for local services like schools, libraries, and refuse collection. The amount you pay depends on the value of the property.Read more about council Tax in our glossary page.
 - Band: C
 - PARKINGDetails of how and where vehicles can be parked, and any associated costs.Read more about parking in our glossary page.
 - Yes
 - GARDENA property has access to an outdoor space, which could be private or shared.
 - Yes
 - ACCESSIBILITYHow a property has been adapted to meet the needs of vulnerable or disabled individuals.Read more about accessibility in our glossary page.
 - Ask agent
 
McCourt Gardens, Bellshill
Add an important place to see how long it'd take to get there from our property listings.
__mins driving to your place
Get an instant, personalised result:
- Show sellers you’re serious
 - Secure viewings faster with agents
 - No impact on your credit score
 
Your mortgage
Notes
Staying secure when looking for property
Ensure you're up to date with our latest advice on how to avoid fraud or scams when looking for property online.
Visit our security centre to find out moreDisclaimer - Property reference MOH1000440. The information displayed about this property comprises a property advertisement. Rightmove.co.uk makes no warranty as to the accuracy or completeness of the advertisement or any linked or associated information, and Rightmove has no control over the content. This property advertisement does not constitute property particulars. The information is provided and maintained by Move On, Motherwell. Please contact the selling agent or developer directly to obtain any information which may be available under the terms of The Energy Performance of Buildings (Certificates and Inspections) (England and Wales) Regulations 2007 or the Home Report if in relation to a residential property in Scotland.
*This is the average speed from the provider with the fastest broadband package available at this postcode. The average speed displayed is based on the download speeds of at least 50% of customers at peak time (8pm to 10pm). Fibre/cable services at the postcode are subject to availability and may differ between properties within a postcode. Speeds can be affected by a range of technical and environmental factors. The speed at the property may be lower than that listed above. You can check the estimated speed and confirm availability to a property prior to purchasing on the broadband provider's website. Providers may increase charges. The information is provided and maintained by Decision Technologies Limited. **This is indicative only and based on a 2-person household with multiple devices and simultaneous usage. Broadband performance is affected by multiple factors including number of occupants and devices, simultaneous usage, router range etc. For more information speak to your broadband provider.
Map data ©OpenStreetMap contributors.





