
3 bedroom detached house for sale
Alexandra Gardens, Knaphill, Woking, Surrey, GU21

- PROPERTY TYPE
Detached
- BEDROOMS
3
- BATHROOMS
2
- SIZE
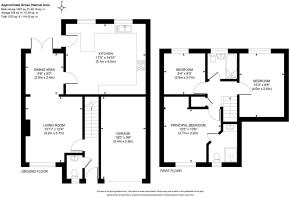
1,233 sq ft
115 sq m
- TENUREDescribes how you own a property. There are different types of tenure - freehold, leasehold, and commonhold.Read more about tenure in our glossary page.
Freehold
Key features
- Detached
- Three Double Bedrooms
- Ensuite to Master
- Kitchen/Dining Room
- Garage
- Driveway
- Close to Local Amenities
Description
The property has been significantly enhanced on the ground floor to create a stunning open-plan kitchen/dining room, flooded with natural light and perfect for both everyday living and entertaining. In addition to this impressive space, the home offers two separate reception rooms including a front aspect lounge and rear aspect dining room with bi-folding doors giving access to the garden.
Upstairs, there are three well proportioned double bedrooms. The master bedroom benefits from a stylish ensuite shower room, while the remaining bedrooms are served by a modern family bathroom.
Externally there is a rear garden that comes mainly laid to lawn with sleeper enclosed borders and separate decking areas providing space to sit or barbecue. Further benefits include a garage and a driveway providing off street parking for two cars.
This is a fantastic opportunity to purchase a spacious and exceptionally well presented family home in a sought after location. Viewings are highly recommended.
Location
Knaphill village has a vibrant range of shops, pubs, restaurants and Post Office. For more comprehensive shopping Sainsbury's superstore is approximately quarter of a mile away. For commuting, nearby Brookwood station provides a regular service direct to Waterloo. Woking and Guildford. For those who enjoy the outdoors there is Stafford Lake which is ideal for dog walking and nearby Brookwood Country Park ideal for a family stroll on a Sunday.
N.B Annual charges apply £280.00pa
Brochures
Particulars- COUNCIL TAXA payment made to your local authority in order to pay for local services like schools, libraries, and refuse collection. The amount you pay depends on the value of the property.Read more about council Tax in our glossary page.
- Band: F
- PARKINGDetails of how and where vehicles can be parked, and any associated costs.Read more about parking in our glossary page.
- Garage,Driveway
- GARDENA property has access to an outdoor space, which could be private or shared.
- Yes
- ACCESSIBILITYHow a property has been adapted to meet the needs of vulnerable or disabled individuals.Read more about accessibility in our glossary page.
- Ask agent
Alexandra Gardens, Knaphill, Woking, Surrey, GU21
Add an important place to see how long it'd take to get there from our property listings.
__mins driving to your place
Get an instant, personalised result:
- Show sellers you’re serious
- Secure viewings faster with agents
- No impact on your credit score
Your mortgage
Notes
Staying secure when looking for property
Ensure you're up to date with our latest advice on how to avoid fraud or scams when looking for property online.
Visit our security centre to find out moreDisclaimer - Property reference KNA250339. The information displayed about this property comprises a property advertisement. Rightmove.co.uk makes no warranty as to the accuracy or completeness of the advertisement or any linked or associated information, and Rightmove has no control over the content. This property advertisement does not constitute property particulars. The information is provided and maintained by Seymours Estate Agents, Knaphill. Please contact the selling agent or developer directly to obtain any information which may be available under the terms of The Energy Performance of Buildings (Certificates and Inspections) (England and Wales) Regulations 2007 or the Home Report if in relation to a residential property in Scotland.
*This is the average speed from the provider with the fastest broadband package available at this postcode. The average speed displayed is based on the download speeds of at least 50% of customers at peak time (8pm to 10pm). Fibre/cable services at the postcode are subject to availability and may differ between properties within a postcode. Speeds can be affected by a range of technical and environmental factors. The speed at the property may be lower than that listed above. You can check the estimated speed and confirm availability to a property prior to purchasing on the broadband provider's website. Providers may increase charges. The information is provided and maintained by Decision Technologies Limited. **This is indicative only and based on a 2-person household with multiple devices and simultaneous usage. Broadband performance is affected by multiple factors including number of occupants and devices, simultaneous usage, router range etc. For more information speak to your broadband provider.
Map data ©OpenStreetMap contributors.





