Skip to content

Plot for sale

Serviced Site With FPP At Forthill, Summercove, Kinsale, Co Cork, Ireland

£429,017
€495,000
Sherry FitzGerald, Cork
PROPERTY TYPE

Plot

SIZE

Ask agent

Description

A rare opportunity to purchase a 0.2 acre site in very close proximity to the town of Kinsale with full unrestricted planning permission for an architecturally designed three bed contemporary home with uninterrupted views of Kinsale harbour, Old Head of Kinsale, Charles Fort and an array of rolling countryside hills.

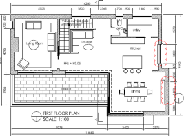
Designed by well known local architect Richard Rainey, the planning consists of a 188 sq.m/ 2,030 sq. ft 2 storey residence. On ground floor level, the plans consist of a large entrance hall, Master bedroom with ensuite and walk in wardrobe, two large double bedrooms, one with ensuite, a home office and family bathroom. On first floor level, plans include a large open plan Kitchen/ Dining/ Lounge area, a living room and a utility room all with access to a large terrace. Thoughtfully designed and carefully laid out, all the rooms in the house were purposely designed to face the water, each with large windows to take in the vista as well as flooding the house with natural light. Planning reference 21/04554.

Situated down a quiet cul-de-sac on an elevated position, the site enjoys the most fantastic, uninterrupted water views and complete privacy from surrounding properties. The planning allows for parking of up to three cars, a tree lined boundary and large garden laid to lawn at the front of the property.
Boundary and retaining walls are built and wastewater treatment plant and water soakaways are fully installed. Mains water connection in progress.

Located just a short walk from the renowned Bulman Pub in Kinsale, this contemporary property offers the perfect base for water enthusiasts whether you're swimming, paddleboarding, or kayaking. It is also a 5-minute walk to the historic Charles Fort and its stunning coastal walk. Enjoy the best of coastal living, with the chance to unwind at sunset with a drink in hand, soaking up the beautiful surroundings.
A viewing is a requirement to fully appreciate the space and panoramic views that this site has to offer.

A mere 5 minutes' drive away, the medieval fishing port of Kinsale is one of the most sought-after addresses in Ireland attracting a diverse global population. This medieval town is full of character & charm with its yacht-filled harbour, narrow streets and brightly painted buildings, it marks the beginning of scenic Wild Atlantic Way.

Famous for its exemplary gourmet restaurants, it is internationally known as the "Gourmet Capital of Ireland" with numerous restaurants, cafes and bars catering for all tastes and budget. Kinsale also has the usual requirements for family living with a number of excellent schools, both primary and secondary close by. Kinsale is immensely popular among the sailing and golf community with Kinsale Yacht Club, the world-renowned Old Head Golf Links, and Kinsale Golf Club on the doorstep. It also has many sports and social clubs and water-based activities catering for both adults and children alike. Kinsale is only 26km from Cork City centre (less than 20 minutes' drive), 21km from Cork International Airport and 2km from Eli Lilly.

Serviced Site With FPP At Forthill, Summercove, Kinsale, Co Cork, Ireland

NEAREST AIRPORTS

Distances are straight line measurements
  • Cork(International)
    9.1 miles
  • Kerry(International)
    54.5 miles
  • Waterford(International)
    68.3 miles
  • Shannon(International)
    72.0 miles

Advice on buying Irish property

Learn everything you need to know to successfully find and buy a property in Ireland.

About Sherry FitzGerald, Cork

6 Lapp's Quay Cork Co Cork

With owned offices in Dublin and Wicklow, regional offices in Cork, Galway and Limerick - and a national franchise network across the country - the Sherry Fitz Group is Ireland's largest estate agency. Our brands are among the most recognised in the country. The depth and breadth of our expertise in the property sector, both locally and nationally, is unrivalled. Recruiting the very best local property advisors, we believe that in-depth knowledge of an area or a neighbourhood is essential to give the best service.

Your Cork Office

Our flagship premises at 6 Lapps Quay shows our confidence and forward thinking in terms of the regeneration of Cork City and in particular the moving of Cork's central business district east to the Docklands. The office is headed by Sheila O'Flynn and we service over 60 locations in Cork City and County, specialising in residential sales and valuations.

Notes

These notes are private, only you can see them.

This is a property advertisement provided and maintained by Sherry FitzGerald, Cork (reference 141287_CRK250500) and does not constitute property particulars. Whilst we require advertisers to act with best practice and provide accurate information, we can only publish advertisements in good faith and have not verified any claims or statements or inspected any of the properties, locations or opportunities promoted. Rightmove does not own or control and is not responsible for the properties, opportunities, website content, products or services provided or promoted by third parties and makes no warranties or representations as to the accuracy, completeness, legality, performance or suitability of any of the foregoing. We therefore accept no liability arising from any reliance made by any reader or person to whom this information is made available to. You must perform your own research and seek independent professional advice before making any decision to purchase or invest in overseas property.

Email agent

Email agent