2 bedroom terraced house for sale
Amelia Close, Benwell, Newcastle upon Tyne, Tyne and Wear, NE4 8LH

- PROPERTY TYPE
Terraced
- BEDROOMS
2
- BATHROOMS
1
- SIZE
Ask agent
- TENUREDescribes how you own a property. There are different types of tenure - freehold, leasehold, and commonhold.Read more about tenure in our glossary page.
Freehold
Key features
- Two Bedroom Terraced House
- Garden
- Off Street Parking
- Viewing Recommended
Description
Amelia Close, Benwell, Newcastle upon Tyne
Located in a highly sought-after cul-de-sac in Benwell, this charming two-bedroom terraced home is beautifully presented and thoughtfully arranged over three spacious floors. Offering a peaceful residential setting with excellent access to local amenities and transport links, the property is just a ten-minute drive from Newcastle city centre—perfect for first-time buyers, young professionals, or investors.
Upon entering the home, you're welcomed by a bright entrance porch which leads into a modern kitchen and dining area, ideal for both everyday meals and hosting guests. Stairs from the hallway take you down to the lower ground floor, where a generous lounge provides a comfortable living space with direct access to the enclosed rear garden, offering a private and secure outdoor area for relaxing or entertaining. Upstairs, the property comprises two well-proportioned bedrooms and a contemporary family bathroom, all finished to a good standard. The home further benefits from off-street parking to the front, enhancing convenience for residents.
With stylish interiors, a practical layout, and a highly convenient location, this is a superb opportunity to own a versatile and well-cared-for home in one of Benwell’s most popular residential areas.
Council Tax Band: A
Tenure: Freehold
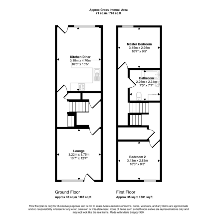
Entrance Porch
Kitchen Diner
4.7m x 3.2m
Lower Floor - Lounge
3.22m x 3.75m
Sairs to Upper Floors
Bedroom Two
3.13m x 2.83m
Stairs to top Floor
Master Bedroom
3.15m x 2.98m
Bathroom
External
Brochures
Brochure- COUNCIL TAXA payment made to your local authority in order to pay for local services like schools, libraries, and refuse collection. The amount you pay depends on the value of the property.Read more about council Tax in our glossary page.
- Band: A
- PARKINGDetails of how and where vehicles can be parked, and any associated costs.Read more about parking in our glossary page.
- Driveway
- GARDENA property has access to an outdoor space, which could be private or shared.
- Yes
- ACCESSIBILITYHow a property has been adapted to meet the needs of vulnerable or disabled individuals.Read more about accessibility in our glossary page.
- Ask agent
Amelia Close, Benwell, Newcastle upon Tyne, Tyne and Wear, NE4 8LH
Add an important place to see how long it'd take to get there from our property listings.
__mins driving to your place
Get an instant, personalised result:
- Show sellers you’re serious
- Secure viewings faster with agents
- No impact on your credit score

Your mortgage
Notes
Staying secure when looking for property
Ensure you're up to date with our latest advice on how to avoid fraud or scams when looking for property online.
Visit our security centre to find out moreDisclaimer - Property reference 487593. The information displayed about this property comprises a property advertisement. Rightmove.co.uk makes no warranty as to the accuracy or completeness of the advertisement or any linked or associated information, and Rightmove has no control over the content. This property advertisement does not constitute property particulars. The information is provided and maintained by Pattinson Estate Agents, West Road. Please contact the selling agent or developer directly to obtain any information which may be available under the terms of The Energy Performance of Buildings (Certificates and Inspections) (England and Wales) Regulations 2007 or the Home Report if in relation to a residential property in Scotland.
*This is the average speed from the provider with the fastest broadband package available at this postcode. The average speed displayed is based on the download speeds of at least 50% of customers at peak time (8pm to 10pm). Fibre/cable services at the postcode are subject to availability and may differ between properties within a postcode. Speeds can be affected by a range of technical and environmental factors. The speed at the property may be lower than that listed above. You can check the estimated speed and confirm availability to a property prior to purchasing on the broadband provider's website. Providers may increase charges. The information is provided and maintained by Decision Technologies Limited. **This is indicative only and based on a 2-person household with multiple devices and simultaneous usage. Broadband performance is affected by multiple factors including number of occupants and devices, simultaneous usage, router range etc. For more information speak to your broadband provider.
Map data ©OpenStreetMap contributors.




