
Office for rent
Crawley Business Centre, Stephenson Way, Crawley, West Sussex, RH10
Letting details
- Let available date:
- Now
- Let type:
- Not Specified
- Furnish type:
- Furnished or unfurnished, landlord is flexible
- PROPERTY TYPE
Office
- SIZE
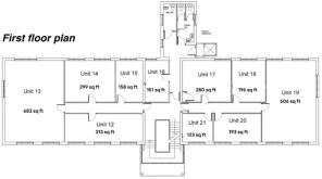
120 sq ft
11 sq m
Key features
- Small office suites to rent
- Parking available
- Flexible terms
- Licence or lease agreements
- Close proximity to Three Bridges station
- LGW reachable in circa five minutes
- Central London circa 35 minutes
- Town centre circa 15 mins on foot
Description
Workspaces range from single desks to suites accommodating nine or more workstations. Standard units are suitable for teams of one to nine and can be easily combined to support larger operations. Furnished packages are available for businesses seeking a straightforward start-up solution.
Amenities include 24-hour access, on-site car parking, air conditioning, kitchen facilities, and ultra-fast broadband (details available on request). On-site management ensures smooth day-to-day operations.
Location
Located just a short walk from Three Bridges station, the offices offer exceptional transport links-Gatwick Airport is reachable in five minutes, and central London lies within a 35-minute journey. Situated in the heart of the Gatwick Diamond, Crawley provides a strategic base amid a thriving business hub that hosts over 45,000 UK companies and 500 international enterprises.
The surrounding area features a wide selection of pubs, restaurants, and shops, with the town centre accessible in just 15 minutes on foot. For those seeking a balance between professional life and personal wellbeing, Tilgate Park presents scenic lakes, woodland trails, and a golf course, offering a peaceful retreat within easy reach.
Terms
Suites are offered on either licence or lease agreements, with the option to continue on a rolling monthly basis at a fixed rate for up to 12 months. Following an initial three-month term, only one month's notice is required to terminate the agreement.
The fixed monthly licence fee covers business rates, service charges, building insurance, utilities, security, maintenance, and cleaning of communal areas, ensuring clarity and simplicity in ongoing costs.
Availability
Please contact Greenaway Residential for availability.
Energy Performance Certificates
EPCCrawley Business Centre, Stephenson Way, Crawley, West Sussex, RH10
NEAREST STATIONS
Distances are straight line measurements from the centre of the postcode- Three Bridges Station0.3 miles
- Crawley Station0.9 miles
- Ifield Station2.1 miles
About Greenaway Residential Estate Agents & Lettings Agents, Crawley
Boscobel House, 109 High Street, Crawley, West Sussex, RH10 1DD



Notes
Disclaimer - Property reference CRW2502011. The information displayed about this property comprises a property advertisement. Rightmove.co.uk makes no warranty as to the accuracy or completeness of the advertisement or any linked or associated information, and Rightmove has no control over the content. This property advertisement does not constitute property particulars. The information is provided and maintained by Greenaway Residential Estate Agents & Lettings Agents, Crawley. Please contact the selling agent or developer directly to obtain any information which may be available under the terms of The Energy Performance of Buildings (Certificates and Inspections) (England and Wales) Regulations 2007 or the Home Report if in relation to a residential property in Scotland.
Map data ©OpenStreetMap contributors.






