
Lords Mill Development, Buckinghamshire, HP5

- PROPERTY TYPE
Barn Conversion
- BEDROOMS
2
- BATHROOMS
2
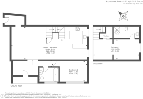
- SIZE
1,382 sq ft
128 sq m
- TENUREDescribes how you own a property. There are different types of tenure - freehold, leasehold, and commonhold.Read more about tenure in our glossary page.
Freehold
Key features
- Unique Development
- High Specification Throughout
- Fully Integrated Bosch Appliances
- Neff Appliances and Quooker Tap
- Bespoke Worktops and Upstands
- 10 Year Build Warranty
- Views of Riverside and Courtyard
- Two Parking Spaces
- Full Fibre and Data Points
- Underfloor Heating Throughout
Description
Lords Mill stands at the Southern gateway to Historic Chesham. The development comprises a 17th-century Mill Cottage and Barns giving a rare and unique opportunity to own a home with such rich historic connections
Property Details
Lovingly restored and modernised throughout, the properties retain and preserve their original structure and materials. Modern living has been thoughtfully considered, with the integration of technologies designed for today’s and tomorrow’s households. These unique properties include original exposed oak beams and brickwork, Samsung air source heating with underfloor heating throughout, Architecturally designed Bathrooms and Kitchens with bespoke worktops, Quooker tap and integrated appliances Ideally located close to parks and leisure facilities, the development is also within easy reach of Chesham Old Town and its excellent local and regional transport links.
The scenic beauty of Chesham was once a well-kept secret, but that all changed with the arrival of the Metropolitan Railway. This charming town, set amidst the rolling Chiltern Hills – now became accessible to visitors from London. As it quickly gained a reputation
for its community feel and picturesque setting, many of those visitors ended up staying. It’s not surprising that Chesham has grown into the sought-after location it is today. The largest town in the Chiltern District feels more like a quaint village, complete with a weekly market and historic town square. With that said, the area boasts all the convenience of a bustling city, but without the
crowds. All the major retailers can be found on the High Street, and residents can make use of the town’s cinema or large leisure centre. The nearby golf courses and wide expanses of greenery offer a similar appeal for fans of the outdoors. In an area famed for its walking routes, there’s always somewhere worth exploring on a sunny day. Alternatively, families have the convenience of Lowndes Park, which is nestled in the heart of the town.
Places of Interest/Leisure;
The Elgiva Theatre
Chartridge Park Golf Club
Distance is from Chesham;
Roald Dahl Museum & Story Centre 4 miles
Chiltern Open Air Museum 6 miles
Frogmore Paper Mill 6 miles
Ashridge Estate 6 miles
Bekonscot Model Village & Railway 7 miles
Local Education;
Secondary Schools-
Chesham Grammar
The Beacon School
Chesham Preparatory
Primary Schools-
Chartridge Combined School
Ley Hill School
Transport and Connections;
Nearest train station
Trains Chesham Metropolitan line 0.3 miles
Amersham Metropolitan line
Chiltern line
Nearest motorway
M40 9 miles
M25 10 miles
M1 15 miles
Nearest airport
Heathrow 22 miles
Luton 21 miles
The internal images shown are for illustrative purposes only and individual plot layouts vary. Please speak to our sales consultant for full pricing, individual unit sizes and availability.
Brochures
More details from Chancellors- COUNCIL TAXA payment made to your local authority in order to pay for local services like schools, libraries, and refuse collection. The amount you pay depends on the value of the property.Read more about council Tax in our glossary page.
- Band: D
- PARKINGDetails of how and where vehicles can be parked, and any associated costs.Read more about parking in our glossary page.
- Off street
- GARDENA property has access to an outdoor space, which could be private or shared.
- Communal garden
- ACCESSIBILITYHow a property has been adapted to meet the needs of vulnerable or disabled individuals.Read more about accessibility in our glossary page.
- Ask agent
Lords Mill Development, Buckinghamshire, HP5
Add an important place to see how long it'd take to get there from our property listings.
__mins driving to your place
Get an instant, personalised result:
- Show sellers you’re serious
- Secure viewings faster with agents
- No impact on your credit score
Affordability
Notes
Staying secure when looking for property
Ensure you're up to date with our latest advice on how to avoid fraud or scams when looking for property online.
Visit our security centre to find out moreDisclaimer - Property reference 5028490. The information displayed about this property comprises a property advertisement. Rightmove.co.uk makes no warranty as to the accuracy or completeness of the advertisement or any linked or associated information, and Rightmove has no control over the content. This property advertisement does not constitute property particulars. The information is provided and maintained by Chancellors, Chesham. Please contact the selling agent or developer directly to obtain any information which may be available under the terms of The Energy Performance of Buildings (Certificates and Inspections) (England and Wales) Regulations 2007 or the Home Report if in relation to a residential property in Scotland.
*This is the average speed from the provider with the fastest broadband package available at this postcode. The average speed displayed is based on the download speeds of at least 50% of customers at peak time (8pm to 10pm). Fibre/cable services at the postcode are subject to availability and may differ between properties within a postcode. Speeds can be affected by a range of technical and environmental factors. The speed at the property may be lower than that listed above. You can check the estimated speed and confirm availability to a property prior to purchasing on the broadband provider's website. Providers may increase charges. The information is provided and maintained by Decision Technologies Limited. **This is indicative only and based on a 2-person household with multiple devices and simultaneous usage. Broadband performance is affected by multiple factors including number of occupants and devices, simultaneous usage, router range etc. For more information speak to your broadband provider.
Map data ©OpenStreetMap contributors.








