
Church Road, Paddock Wood, Kent, TN12 6HF

- PROPERTY TYPE
Detached
- BEDROOMS
4
- SIZE
1,485 sq ft
138 sq m
- TENUREDescribes how you own a property. There are different types of tenure - freehold, leasehold, and commonhold.Read more about tenure in our glossary page.
Freehold
Key features
- Flooring package included
- Fitted wardrobe
- Upgraded specification included as standard
- Utility room off of the kitchen for your everyday essentials
- Double garage and driveway with parking spaces for 2 cars
- En-suite to bedroom 1
- Open plan kitchen and dining room
- Separate living room offers a space to relax as a family
- 10 year NHBC Buildmark warranty
- 2 year customer care warranty
Description
This superior four bedroom detached home features a separate living room with double doors opening onto the rear garden. The home boasts a utility room and a spacious open-plan kitchen/ family area, perfect for shared meals and get-togethers. Plus, you have a further reception room which can be used as a snug, family room, dining room or even a study. The hall leads up to three bedrooms, a family bathroom and the master bedroom complete with en suite.
Around the local area:
Blending seamlessly into the existing community, these new homes sit conveniently close to shopping and other local amenities, while overlooking beautiful Kent countryside.
The larger, bustling towns of Royal Tunbridge Wells and Maidstone are within easy reach as is the smaller, charming town of Tonbridge, together with all the other various attractions that the historic county of Kent has to offer. The Burrows provides the very best of both worlds; modern living within a traditional community.
A great start for your children
Education provision in Kent is of a very high standard and the county utilises the state grammar school system. Locally and within a few miles of The Burrows there is a good selection of schools covering all aspects of education. Pre-school requirements are well catered for with a selection of nurseries within close proximity to The Burrows.
In the town of Paddock Wood there are two excellent mainstream schools. Paddock Wood Primary Academy is a community school for boys and girls of all abilities from 4 - 11 years of age. Mascalls Academy is a co-educational secondary school and sixth form. It is a high achieving, mixed, multi-disciplinary comprehensive academy with outstanding arts and sports facilities.
The town also has the Quest School, a special independent school for boys and girls aged 5 to 19 with autistic spectrum disorders. In the neighbouring larger towns of Tonbridge and Royal Tunbridge Wells, there are many schools dealing with the broad range of educational requirements - nursery, primary, secondary, grammar, college, faith and special needs.
Well connected
Its train station, less than half a mile from The Burrows, offers regular services every 30 minutes to London Charing Cross, reached in under an hour. Services also go to Folkstone, other Kent towns and the Kent coast. For road links, the town sits just off the A228 allowing fast and easy connections to the larger, neighbouring towns of Tonbridge, Tunbridge Wells, Maidstone and Sevenoaks. The M20, M25 and M26 can be rapidly accessed to ease your travels North, South, East or West.
By car, Gatwick Airport can be reached in under an hour, approximately 40 miles away. London Heathrow Airport is approximately 62 miles with a travel time of just over the hour.
A great place to live and enjoy life
Set in beautiful Kent countryside, The Burrows is ideally located with leisure, shopping and entertainment all nearby. There are plenty of pubs and restaurants on the doorstep, alongside local amenities including a post office, pharmacy, large Waitrose, Costa Coffee and petrol station. To make life even easier, Paddock Wood benefits from a wide range of shops, including the large Barsleys department store.
The neighbouring town of Maidstone has two large shopping centres. The Mall offers a wide range of fashion and the Fremlin Walk shopping centre boasts a riverside setting and features a department store along with well-known shops and restaurants. Maidstone has one of the largest selections of independent retailers in the country, offering everything from jewellery and kitchenware to gifts and fashion. You can also take advantage of the weekly markets where you'll find a range of fresh, local produce, including wines from the local Hush Heath Winery and ciders from Biddenden Vineyards.
The town of Tunbridge Wells is home to the Royal Victoria Place shopping centre and the famous Pantiles; an elegant walkway dating from the 18th and 19th centuries, now home to a variety of specialist independent shops and art galleries.
Please refer to the sales consultant for specific plot details as the illustrations shown are computer generated impressions of how the property may look so are indicative only. External details or finishes may vary on individual plots and homes may be built in either detached or attached styles depending on the development layout. Exact specifications, window styles and whether a property is left or right handed may differ from plot to plot. The floorplans shown are not to scale. Measurements are based on the original drawings. Slight variations may occur during construction. Wardrobe locations are indicative of space and are not part of standard specification, available to purchase as an additional upgrade.
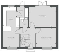
This floorplan has been produced for illustrative purposes only. Room sizes shown are between arrow points as indicated on plan. The dimensions have tolerances of + or -50mm and should not be used other than for general guidance. If specific dimensions are required, enquiries should be made to the sales consultant.
Room Dimensions
- Kitchen / Dining area - 7.16m x 3.00m 23'6" x 9'10"
- Living Room - 4.90m x 3.53m 16'1" x 11'7"
- Study / Family Room - 3.64m x 3.47m 12'0" x 11'5"
- Master Bedroom - 4.16m x 3.76m 13'8" x 12'4"
- Bedroom 2 - 3.76m x 2.90m 12'4" x 9'6"
- Bedroom 3 - 3.81m x 2.72m 12'6" x 8'11"
- Bedroom 4 - 3.25m x 3.06m 10'8" x 10'1"
- COUNCIL TAXA payment made to your local authority in order to pay for local services like schools, libraries, and refuse collection. The amount you pay depends on the value of the property.Read more about council Tax in our glossary page.
- Ask developer
- PARKINGDetails of how and where vehicles can be parked, and any associated costs.Read more about parking in our glossary page.
- Yes
- GARDENA property has access to an outdoor space, which could be private or shared.
- Yes
- ACCESSIBILITYHow a property has been adapted to meet the needs of vulnerable or disabled individuals.Read more about accessibility in our glossary page.
- Ask developer
Energy performance certificate - ask developer
- All-inclusive specification
- 2,3 4 & 5 bedroom homes
- Hassle-free moving thanks to no onward chain
- Half a mile from Paddock Wood train Station
Church Road, Paddock Wood, Kent, TN12 6HF
Add an important place to see how long it'd take to get there from our property listings.
__mins driving to your place
Get an instant, personalised result:
- Show sellers you’re serious
- Secure viewings faster with agents
- No impact on your credit score
About Vistry South East (Countryside)
Countryside is a leading UK home builder and urban regeneration partner. We believe that where we live matters. We’re passionate about creating places people aspire to live, where they feel a true sense of belonging.
All our developments and homes carry a signature style and character, designed to work for the way people live today with materials that reflect our commitment to quality. Our exacting standards and sustainable credentials combine to create places that will stand the test of time. As a result we hold more Housing Design Awards than any other developer.
From the character of the homes we build to the planning of environments and the unique detailing of the landscape, our creative approach to place making creates places where people feel at home, providing a greater sense of belonging, spirit of neighbourhood and quality of life for everyone who lives in and around our developments.
We create places people love.
Your mortgage
Notes
Staying secure when looking for property
Ensure you're up to date with our latest advice on how to avoid fraud or scams when looking for property online.
Visit our security centre to find out moreDisclaimer - Property reference hummingbird_289. The information displayed about this property comprises a property advertisement. Rightmove.co.uk makes no warranty as to the accuracy or completeness of the advertisement or any linked or associated information, and Rightmove has no control over the content. This property advertisement does not constitute property particulars. The information is provided and maintained by Vistry South East (Countryside). Please contact the selling agent or developer directly to obtain any information which may be available under the terms of The Energy Performance of Buildings (Certificates and Inspections) (England and Wales) Regulations 2007 or the Home Report if in relation to a residential property in Scotland.
*This is the average speed from the provider with the fastest broadband package available at this postcode. The average speed displayed is based on the download speeds of at least 50% of customers at peak time (8pm to 10pm). Fibre/cable services at the postcode are subject to availability and may differ between properties within a postcode. Speeds can be affected by a range of technical and environmental factors. The speed at the property may be lower than that listed above. You can check the estimated speed and confirm availability to a property prior to purchasing on the broadband provider's website. Providers may increase charges. The information is provided and maintained by Decision Technologies Limited. **This is indicative only and based on a 2-person household with multiple devices and simultaneous usage. Broadband performance is affected by multiple factors including number of occupants and devices, simultaneous usage, router range etc. For more information speak to your broadband provider.
Map data ©OpenStreetMap contributors.