
Castlebar Road, Ealing, W5

- PROPERTY TYPE
Maisonette
- BEDROOMS
3
- BATHROOMS
2
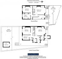
- SIZE
1,270 sq ft
118 sq m
Key features
- Share Of Freehold
- No Onward Chain
- Gated Off Street Parking
- 3 Bedroom Maisonette
- Circa. 1270 Square Feet
- 2 Bathrooms
- Large Rear Garden
- Ealing Broadway Station (Central, District & Elizabeth Lines)
Description
This magnificent property benefits from sole use of the front and rear garden and has been totally refurbished throughout, presented in immaculate condition with a contemporary feel whilst retaining the period grandeur.
Entering on the upper ground floor into a spacious elegant reception room with period fireplace and fitted cabinetry, there is a further reception dining room with fitted cabinetry, feature fireplace and views over the rear garden. A contemporary and bright kitchen overlooks the large, walled private garden at the rear, ideal for al fresco dining. There is a guest toilet on this floor. On the lower floor, benefiting from a modern under floor heating system, you will find a generous principal bedroom suite with a sumptuous shower room, two further bedrooms, a luxury family bathroom, utility room and fitted storage cupboards.
A real feature of this home is a large private rear garden, 83ft with scope for a home office; to the front of the property is gated off street parking, and a separate side access to the property and rear garden. Luxury finishes, quality appliances and smart home features ensure modern comforts are offered whilst enjoying the generous and historic features.
Castlebar Road is a highly sought after road within minutes walking distance of Ealing Broadway station, and the Crossrail Elizabeth line; the Central, District and Piccadilly Underground Lines all easily accessible. Ideally placed within minutes of the open green spaces, including Haven Green, Walpole park and Ealing Common.
Brochures
Particulars- COUNCIL TAXA payment made to your local authority in order to pay for local services like schools, libraries, and refuse collection. The amount you pay depends on the value of the property.Read more about council Tax in our glossary page.
- Band: F
- PARKINGDetails of how and where vehicles can be parked, and any associated costs.Read more about parking in our glossary page.
- Yes
- GARDENA property has access to an outdoor space, which could be private or shared.
- Yes
- ACCESSIBILITYHow a property has been adapted to meet the needs of vulnerable or disabled individuals.Read more about accessibility in our glossary page.
- No wheelchair access
Castlebar Road, Ealing, W5
Add an important place to see how long it'd take to get there from our property listings.
__mins driving to your place
Get an instant, personalised result:
- Show sellers you’re serious
- Secure viewings faster with agents
- No impact on your credit score
Your mortgage
Notes
Staying secure when looking for property
Ensure you're up to date with our latest advice on how to avoid fraud or scams when looking for property online.
Visit our security centre to find out moreDisclaimer - Property reference BEA250181. The information displayed about this property comprises a property advertisement. Rightmove.co.uk makes no warranty as to the accuracy or completeness of the advertisement or any linked or associated information, and Rightmove has no control over the content. This property advertisement does not constitute property particulars. The information is provided and maintained by Benham & Reeves - Ealing, Ealing. Please contact the selling agent or developer directly to obtain any information which may be available under the terms of The Energy Performance of Buildings (Certificates and Inspections) (England and Wales) Regulations 2007 or the Home Report if in relation to a residential property in Scotland.
*This is the average speed from the provider with the fastest broadband package available at this postcode. The average speed displayed is based on the download speeds of at least 50% of customers at peak time (8pm to 10pm). Fibre/cable services at the postcode are subject to availability and may differ between properties within a postcode. Speeds can be affected by a range of technical and environmental factors. The speed at the property may be lower than that listed above. You can check the estimated speed and confirm availability to a property prior to purchasing on the broadband provider's website. Providers may increase charges. The information is provided and maintained by Decision Technologies Limited. **This is indicative only and based on a 2-person household with multiple devices and simultaneous usage. Broadband performance is affected by multiple factors including number of occupants and devices, simultaneous usage, router range etc. For more information speak to your broadband provider.
Map data ©OpenStreetMap contributors.





