
Pentland Avenue, Redcar, North Yorkshire, TS10

- PROPERTY TYPE
Semi-Detached Bungalow
- BEDROOMS
2
- BATHROOMS
1
- SIZE
Ask agent
- TENUREDescribes how you own a property. There are different types of tenure - freehold, leasehold, and commonhold.Read more about tenure in our glossary page.
Ask agent
Key features
- GENEROUS CORNER PLOT
- CONSERVATORY
- HIGH SPECIFICATION THROUGHOUT
- EXPANSIVE REAR GARDENS
- DRIVEWAY LEADING TO DETACHED GARAGE
Description
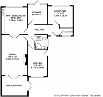
Detailed Accommodation: Pentland Avenue, Redcar
Entrance Vestibule: Composite uPVC double glazed door, front access, radiator, internal door leading to Bedrooms, Lounge, Kitchen and Bathroom.
Lounge: 17'6" x 11'4" (5.33 x 3.45m)Feature fireplace incorporating log burner, laminate flooring, decorative coving, radiator, uPVC double glazed French doors, Rear access into Conservatory.
Conservatory: 9'9" x 12'9" (2.98m x 3.89m) uPVC double glazed windows, side and rear windows, laminate flooring, uPVC double glazed French doors, side access into garden.
Kitchen: 13'8" x 8'6" (4.17m x 2.59m)Range of wall, drawer and floor units, integrated electric oven and gas hob, overhead extractor hood, integrated fridge/freezer, part tiled surround, plumbing for washing machine, radiator, uPVC double glazed door, side access into garden.
Bedroom One: 11'9" x 11'4" (3.59m x 3.45m) uPVC double glazed window, front access, fitted wardrobes, radiator, double doors into lounge.
Bedroom Two: 11' x 9'5" (3.35m x 2.87m) uPVC double glazed window, front aspect, radiator.
Bathroom: uPVC double glazed window, side access, vanity unit with low level W/c and wash hand basin, heated towel rail, shower cubicle with glass screen and overhead shower, PVC panelled surround.
Front Garden: Mainly laid with lawn, bordered with small plants and trees, resin pathway leading to property.
Rear Garden: Resin area leading from property, laid to lawn leading to raised decking/barbeque area, bordered with trees and plants, access to garage.
Driveway: Paved driveway to rear leading to garage.
Garage: Detached garage with up and over door.
Council tax Band B
Agents notes:
Services: All descriptions of any appliances of service should not be relied upon that there are in good working order. The buyer should obtain verification from their solicitor or other qualified person before entering into any commitment on the property.
Measurements: All measurements are approximate and should not be relied upon. Should you require more accurate measurements this can be arranged through our office.
Description: Dimensions, descriptions, necessary permission and other details are given without responsibility any intending purchaser must satisfy themselves by inspection or otherwise as to the accuracy of them.
No person in the employment of kings estate agents has an authority to make
or give representation or warranty in relation to this property.
- COUNCIL TAXA payment made to your local authority in order to pay for local services like schools, libraries, and refuse collection. The amount you pay depends on the value of the property.Read more about council Tax in our glossary page.
- Ask agent
- PARKINGDetails of how and where vehicles can be parked, and any associated costs.Read more about parking in our glossary page.
- Garage,Driveway
- GARDENA property has access to an outdoor space, which could be private or shared.
- Front garden,Private garden,Enclosed garden,Rear garden,Back garden
- ACCESSIBILITYHow a property has been adapted to meet the needs of vulnerable or disabled individuals.Read more about accessibility in our glossary page.
- Ask agent
Energy performance certificate - ask agent
Pentland Avenue, Redcar, North Yorkshire, TS10
Add an important place to see how long it'd take to get there from our property listings.
__mins driving to your place
Get an instant, personalised result:
- Show sellers you’re serious
- Secure viewings faster with agents
- No impact on your credit score
Your mortgage
Notes
Staying secure when looking for property
Ensure you're up to date with our latest advice on how to avoid fraud or scams when looking for property online.
Visit our security centre to find out moreDisclaimer - Property reference pentland1. The information displayed about this property comprises a property advertisement. Rightmove.co.uk makes no warranty as to the accuracy or completeness of the advertisement or any linked or associated information, and Rightmove has no control over the content. This property advertisement does not constitute property particulars. The information is provided and maintained by Kings Estate Agents, Redcar. Please contact the selling agent or developer directly to obtain any information which may be available under the terms of The Energy Performance of Buildings (Certificates and Inspections) (England and Wales) Regulations 2007 or the Home Report if in relation to a residential property in Scotland.
*This is the average speed from the provider with the fastest broadband package available at this postcode. The average speed displayed is based on the download speeds of at least 50% of customers at peak time (8pm to 10pm). Fibre/cable services at the postcode are subject to availability and may differ between properties within a postcode. Speeds can be affected by a range of technical and environmental factors. The speed at the property may be lower than that listed above. You can check the estimated speed and confirm availability to a property prior to purchasing on the broadband provider's website. Providers may increase charges. The information is provided and maintained by Decision Technologies Limited. **This is indicative only and based on a 2-person household with multiple devices and simultaneous usage. Broadband performance is affected by multiple factors including number of occupants and devices, simultaneous usage, router range etc. For more information speak to your broadband provider.
Map data ©OpenStreetMap contributors.






