
Devon Street, Bury, Greater Manchester, BL9 9BN

- PROPERTY TYPE
Terraced
- BEDROOMS
2
- BATHROOMS
1
- SIZE
Ask agent
Key features
- 2 Bedrooms
- Great Location
Description
Bury town centre is just minutes away, with the local Metrolink and bus station providing excellent connections to Manchester city centre. Local amenities and well-regarded schools are also easily accessible.
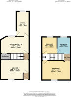
The property comprises: entrance vestibule, bright and spacious lounge, dining room, and kitchen. To the first floor, there are two bedrooms – a large master bedroom and an additional single bedroom – plus a modern three-piece Jack-and-Jill shower room with shower, sink, and toilet.
Externally, the home benefits from an enclosed rear yard and a small front garden.
This property is not to be missed – early viewing is highly recommended.
Key Details
Tenure: Leasehold - 855 year(s) remaining Council tax band: A (£1,610 per year) EPC rating (2023) 71 (C) Potential 85 (B) Borough: Bury Broadband: Gigabit Mobile signal / coverage: 4G excellent data and voice Heating: Boiler and radiators, mains gas Listed building: No Conservation area: No recorded conservation area Flood risk: None
Agents Note
The seller is related to a staff member at Miller Metcalfe
Brochures
Particulars- COUNCIL TAXA payment made to your local authority in order to pay for local services like schools, libraries, and refuse collection. The amount you pay depends on the value of the property.Read more about council Tax in our glossary page.
- Band: TBC
- PARKINGDetails of how and where vehicles can be parked, and any associated costs.Read more about parking in our glossary page.
- Ask agent
- GARDENA property has access to an outdoor space, which could be private or shared.
- Yes
- ACCESSIBILITYHow a property has been adapted to meet the needs of vulnerable or disabled individuals.Read more about accessibility in our glossary page.
- Ask agent
Devon Street, Bury, Greater Manchester, BL9 9BN
Add an important place to see how long it'd take to get there from our property listings.
__mins driving to your place
Get an instant, personalised result:
- Show sellers you’re serious
- Secure viewings faster with agents
- No impact on your credit score
Your mortgage
Notes
Staying secure when looking for property
Ensure you're up to date with our latest advice on how to avoid fraud or scams when looking for property online.
Visit our security centre to find out moreDisclaimer - Property reference BTN250500. The information displayed about this property comprises a property advertisement. Rightmove.co.uk makes no warranty as to the accuracy or completeness of the advertisement or any linked or associated information, and Rightmove has no control over the content. This property advertisement does not constitute property particulars. The information is provided and maintained by Miller Metcalfe, Bury. Please contact the selling agent or developer directly to obtain any information which may be available under the terms of The Energy Performance of Buildings (Certificates and Inspections) (England and Wales) Regulations 2007 or the Home Report if in relation to a residential property in Scotland.
*This is the average speed from the provider with the fastest broadband package available at this postcode. The average speed displayed is based on the download speeds of at least 50% of customers at peak time (8pm to 10pm). Fibre/cable services at the postcode are subject to availability and may differ between properties within a postcode. Speeds can be affected by a range of technical and environmental factors. The speed at the property may be lower than that listed above. You can check the estimated speed and confirm availability to a property prior to purchasing on the broadband provider's website. Providers may increase charges. The information is provided and maintained by Decision Technologies Limited. **This is indicative only and based on a 2-person household with multiple devices and simultaneous usage. Broadband performance is affected by multiple factors including number of occupants and devices, simultaneous usage, router range etc. For more information speak to your broadband provider.
Map data ©OpenStreetMap contributors.





