
3 bedroom semi-detached house for sale
Mountfield Road, Huddersfield, HD5

- PROPERTY TYPE
Semi-Detached
- BEDROOMS
3
- BATHROOMS
1
- SIZE
700 sq ft
65 sq m
- TENUREDescribes how you own a property. There are different types of tenure - freehold, leasehold, and commonhold.Read more about tenure in our glossary page.
Freehold
Key features
- Ripe for renovation
- Excellent transport links
- Potential for 3 double bedrooms
- Off road parking
- Enclosed back garden
Description
This property presents an excellent renovation opportunity for buyers seeking to add value and personalise their next home. Situated with access to well-regarded schools and excellent transport links, it offers the perfect foundation for family living or a smart investment. There is significant potential to reconfigure the layout to create three generous double bedrooms and an open plan kitchen, dining, and living space, ideal for modern lifestyles and entertaining. To the rear, you'll find a large enclosed garden, providing a private and secure outdoor area with ample space for family activities, extensions (STPP), or landscaped relaxation. Don’t miss the chance to transform this well-located property into a stunning home tailored to your taste and needs.
EPC Rating: D
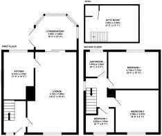
Entrance Hall
This spacious hallway features wooden panel flooring in neutral tones and benefits from practical built-in storage, ideal for keeping shoes and coats. Providing access to the upstairs landing and the lounge/diner, it serves as a functional entry point to the home.
Kitchen
2.13m x 3.1m
The kitchen is fitted with cream shaker-style doors and a contrasting work surface. It features a five-ring gas hob, Hoover electric oven, chrome steel mixer tap and sink. There's ample space for both a washer and dryer, as well as room for a freestanding American-style fridge freezer. Additional highlights include large pan drawers, a built-in wine holder, and the boiler conveniently housed within the kitchen for easy access and maintenance. Importantly, there is further potential to open up the space, allowing for the creation of a contemporary open plan kitchen, dining, and living area, ideal for modern family living and entertaining.
Lounge
3.1m x 5.99m
Presented in neutral tones with a contrasting deep-toned carpet, this generously sized lounge/diner benefits from dual aspect windows. There is ample space for a full-sized dining suite and comfortable family seating. The focal point of the room is a black gloss-effect electric fireplace. Conveniently, the room offers direct access to both the kitchen and conservatory, making it ideal for everyday living and entertaining.
Conservatory
2.82m x 3.66m
The conservatory floods the adjoining lounge with natural light, creating a bright and airy extension of the living space. Presented with wood-effect panel flooring and french doors open directly onto the outdoor patio area, seamlessly connecting indoor and outdoor living. There is also exciting potential to reconfigure this space into a fully integrated extension of the lounge-diner, adding further versatility to the home's layout and enhancing its appeal for open-plan living.
Landing
The landing provides access to three bedrooms and the family bathroom, with a drop-down ladder offering convenient access to the loft space.
Bedroom 1
2.74m x 3.73m
This generously sized double bedroom is presented in neutral tones and contrasting deep-toned carpet. Ample built-in storage, including over-bed cabinets and a wood-effect vanity unit, offers practicality and ample storage options.
Bedroom 2
2.59m x 2.57m
This good-sized double bedroom features floor-to-ceiling built-in storage, including over-bed cabinetry for maximum functionality. Finished with wood laminate flooring and dusty blue toned walls.
Bedroom 3
2.62m x 1.85m
This spacious single bedroom is perfect as a children’s room, home office, nursery, or dressing room, with clever built-in storage above the bulkhead, neutral tones, and a wallpapered feature wall. Alternatively, the room offers excellent potential as a conversion point for attic access, paving the way for a generous third double bedroom, subject to the necessary permissions, making it a truly flexible space with scope to grow.
Bathroom
1.85m x 1.52m
The bathroom features a full-size wood-panelled bath with a chrome shower head and mixer tap, alongside a white vanity sink and WC. Frosted glass windows offer natural light with privacy, while white tiled walls with a decorative border add a touch of detail. The space is finished with wood-effect Linoleum flooring, spotlights, and a white heated towel rail.
Attic Room
2.9m x 3.99m
Currently used as a fourth bedroom (not to building regulations), this good-sized double room is accessed via a loft ladder from the landing and offers full head height throughout. Presented in soft tones with a wallpapered feature wall, the space is bathed in natural light from a South East-facing Velux window. There’s ample room for free-standing furniture, along with built-in cabinets, a decorative bookcase, and a separate storage room within the eaves.
Exterior
To the rear, a large South-East facing patio area is framed by wrought black iron railings and double gates leading to the driveway. Patio steps descend into a fully enclosed lawned garden, perfect for children and pets. At the far end of the garden, a decking area offers the ideal spot to relax and enjoy the evening sun. The property also features a front garden and driveway parking for two cars.
Parking - Driveway
- COUNCIL TAXA payment made to your local authority in order to pay for local services like schools, libraries, and refuse collection. The amount you pay depends on the value of the property.Read more about council Tax in our glossary page.
- Band: B
- PARKINGDetails of how and where vehicles can be parked, and any associated costs.Read more about parking in our glossary page.
- Driveway
- GARDENA property has access to an outdoor space, which could be private or shared.
- Private garden
- ACCESSIBILITYHow a property has been adapted to meet the needs of vulnerable or disabled individuals.Read more about accessibility in our glossary page.
- Ask agent
Mountfield Road, Huddersfield, HD5
Add an important place to see how long it'd take to get there from our property listings.
__mins driving to your place
Get an instant, personalised result:
- Show sellers you’re serious
- Secure viewings faster with agents
- No impact on your credit score
Your mortgage
Notes
Staying secure when looking for property
Ensure you're up to date with our latest advice on how to avoid fraud or scams when looking for property online.
Visit our security centre to find out moreDisclaimer - Property reference 81a4d095-b1eb-4cd6-88ec-591b76fd6369. The information displayed about this property comprises a property advertisement. Rightmove.co.uk makes no warranty as to the accuracy or completeness of the advertisement or any linked or associated information, and Rightmove has no control over the content. This property advertisement does not constitute property particulars. The information is provided and maintained by Home & Manor, Kirkheaton. Please contact the selling agent or developer directly to obtain any information which may be available under the terms of The Energy Performance of Buildings (Certificates and Inspections) (England and Wales) Regulations 2007 or the Home Report if in relation to a residential property in Scotland.
*This is the average speed from the provider with the fastest broadband package available at this postcode. The average speed displayed is based on the download speeds of at least 50% of customers at peak time (8pm to 10pm). Fibre/cable services at the postcode are subject to availability and may differ between properties within a postcode. Speeds can be affected by a range of technical and environmental factors. The speed at the property may be lower than that listed above. You can check the estimated speed and confirm availability to a property prior to purchasing on the broadband provider's website. Providers may increase charges. The information is provided and maintained by Decision Technologies Limited. **This is indicative only and based on a 2-person household with multiple devices and simultaneous usage. Broadband performance is affected by multiple factors including number of occupants and devices, simultaneous usage, router range etc. For more information speak to your broadband provider.
Map data ©OpenStreetMap contributors.





