
Land for sale
Self Build Plot, Mount Pleasant Close, Buckingham. MK18 1DN
- PROPERTY TYPE
Land
- BEDROOMS
4
- BATHROOMS
3
- SIZE
6,157 sq ft
572 sq m
Key features
- Rare SELF-BUILD Opportunity on an Established Cul-De-Sac
- Freehold Sale - All Services to Site
- Detached Bungalow with Full Planning Permission to Replace with a New Two-Storey Family Home
- Royal Latin Grammar School Catchment and Short Walk Away
- Generous Plot 572 m2 (1/8th Acre) with Excellent Frontage and Privacy to Rear
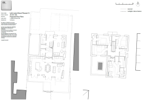
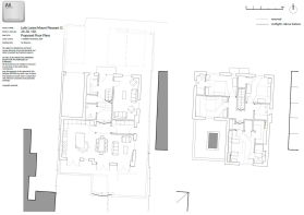
- Planning for a Four Bedroom, Three Bathroom, Two Reception Room, Detached House of 186m2 or 2,002 Square Feet Floor Area
- Level South Facing Plot - Views across towards Stowe and Distant Countryside from Front Elevation
- Planning Permission Buckinghamshire Council 24/03569/APP Full Plans Available on Request
Description
A Rare Self-Build Opportunity in One of the Town’s Most Sought-After Locations
Occupying a generous, mature plot on a quiet private cul-de-sac, this detached bungalow presents a unique chance to create your dream family home. Full planning permission has been granted (Buckinghamshire Council ref: 24/03569/APP) for the demolition of the existing dwelling and the construction of a spacious two-storey detached house.
The approved plans offer a premium designed layout, ideal for modern family living, with materials being left as a condition to give a buyer the flexibility to personalise finishes and internal spaces to your exact specifications. Whether you’re an experienced self-builder or a family looking to bring your vision to life, this is a truly exciting and accessible opportunity.
Located within the catchment area for the highly regarded Royal Latin Grammar School, and close to local amenities, green spaces, and excellent transport links, the setting combines convenience with community in a well-established residential area.
Opportunities like this are extremely rare — early viewing is highly recommended. (A/2004/Land199)
Parking - Garage
A single garage is planned.
Parking - Off street
Three parking spaces are planned.
Self Build Plot, Mount Pleasant Close, Buckingham. MK18 1DN
NEAREST STATIONS
Distances are straight line measurements from the centre of the postcode- Bicester North Station9.2 miles

Notes
Disclaimer - Property reference 4d6bef7b-c6ef-41fb-a5f0-2f33815bfe2a. The information displayed about this property comprises a property advertisement. Rightmove.co.uk makes no warranty as to the accuracy or completeness of the advertisement or any linked or associated information, and Rightmove has no control over the content. This property advertisement does not constitute property particulars. The information is provided and maintained by Lafford James, Milton Keynes. Please contact the selling agent or developer directly to obtain any information which may be available under the terms of The Energy Performance of Buildings (Certificates and Inspections) (England and Wales) Regulations 2007 or the Home Report if in relation to a residential property in Scotland.
Map data ©OpenStreetMap contributors.






