
Olivers Wharf, Wapping High Street, London, E1W

- PROPERTY TYPE
Apartment
- BEDROOMS
1
- BATHROOMS
2
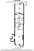
- SIZE
1,163 sq ft
108 sq m
Key features
- 1 bedroom
- 1 reception room
- 2 bathrooms
- A Share of the Boathouse
- First Floor Apartment
- 1163sqft of Internal Space
- Separate Storage Space
- Views Over The Thames
- Located in Wapping
- Historic Warehouse Conversion
Description
Nestled within the historic Grade II listed Oliver's Wharf, this exquisite apartment epitomizes the charm of warehouse conversions in the vibrant heart of Wapping. Meticulously refurbished, it exudes an abundance of industrial allure while offering ample entertaining space.
Situated on the first floor, the residence boasts a generously proportioned reception room that seamlessly flows onto a balcony, providing captivating vistas of the majestic River Thames. Continuing through the galley kitchen, a chic dressing area awaits, adorned with bespoke fitted wardrobes by Neville Johnson, leading to the tranquil bedroom sanctuary. Furthermore, this luxurious residence features two modern bathrooms, each exquisitely appointed with contemporary fixtures and fittings, providing both convenience and sophistication. There is also the possibility of configuring this into a two bedroom apartment, subject to the necessary planning and permissions etc.
The rear bedroom is a sanctuary of natural light, boasting expansive dimensions and enchanting views overlooking the serene St. John's Churchyard. Additionally, the property features a convenient storage room on the parking level, alongside a designated parking space, ensuring practicality amidst luxury living. Furthermore, the fortunate owner will enjoy a share of the esteemed boat house, adding an exclusive touch to this exceptional offering.
Although currently configured as a one-bedroom apartment, this space offers a wealth of possibilities. Oliver's Wharf is celebrated for its distinctive apartments and versatile layouts, allowing each space to be tailored to the needs of its residents. The current dressing area, for instance, could easily be transformed into an additional sleeping area by incorporating a glass partition. Opting for Crittall-style glass would not only preserve the flow of natural light but also enhance the apartment’s charming warehouse aesthetic.
Situated in the Wapping Pierhead Conservation area, one of the most attractive areas to the east of Tower Bridge, the building is well placed for public transport with the 100 bus stop very close by and Wapping Overground Station (trains connect to the Jubilee, Hammersmith and City and District Line). Supermarket shopping is at the recently refurbished Waitrose by St Katherine Docks and local shops in Wapping Lane. There are a number of local riverside pubs and a selection of restaurants.
Brochures
More Details- COUNCIL TAXA payment made to your local authority in order to pay for local services like schools, libraries, and refuse collection. The amount you pay depends on the value of the property.Read more about council Tax in our glossary page.
- Band: G
- LISTED PROPERTYA property designated as being of architectural or historical interest, with additional obligations imposed upon the owner.Read more about listed properties in our glossary page.
- Listed
- PARKINGDetails of how and where vehicles can be parked, and any associated costs.Read more about parking in our glossary page.
- Private
- GARDENA property has access to an outdoor space, which could be private or shared.
- Ask agent
- ACCESSIBILITYHow a property has been adapted to meet the needs of vulnerable or disabled individuals.Read more about accessibility in our glossary page.
- Ask agent
Olivers Wharf, Wapping High Street, London, E1W
Add an important place to see how long it'd take to get there from our property listings.
__mins driving to your place
Get an instant, personalised result:
- Show sellers you’re serious
- Secure viewings faster with agents
- No impact on your credit score



Your mortgage
Notes
Staying secure when looking for property
Ensure you're up to date with our latest advice on how to avoid fraud or scams when looking for property online.
Visit our security centre to find out moreDisclaimer - Property reference CNW012400131. The information displayed about this property comprises a property advertisement. Rightmove.co.uk makes no warranty as to the accuracy or completeness of the advertisement or any linked or associated information, and Rightmove has no control over the content. This property advertisement does not constitute property particulars. The information is provided and maintained by Knight Frank, Canary Wharf. Please contact the selling agent or developer directly to obtain any information which may be available under the terms of The Energy Performance of Buildings (Certificates and Inspections) (England and Wales) Regulations 2007 or the Home Report if in relation to a residential property in Scotland.
*This is the average speed from the provider with the fastest broadband package available at this postcode. The average speed displayed is based on the download speeds of at least 50% of customers at peak time (8pm to 10pm). Fibre/cable services at the postcode are subject to availability and may differ between properties within a postcode. Speeds can be affected by a range of technical and environmental factors. The speed at the property may be lower than that listed above. You can check the estimated speed and confirm availability to a property prior to purchasing on the broadband provider's website. Providers may increase charges. The information is provided and maintained by Decision Technologies Limited. **This is indicative only and based on a 2-person household with multiple devices and simultaneous usage. Broadband performance is affected by multiple factors including number of occupants and devices, simultaneous usage, router range etc. For more information speak to your broadband provider.
Map data ©OpenStreetMap contributors.





