
Harworth and Bircotes DN11 8AB

- PROPERTY TYPE
Detached
- BEDROOMS
4
- SIZE
Ask developer
- TENUREDescribes how you own a property. There are different types of tenure - freehold, leasehold, and commonhold.Read more about tenure in our glossary page.
Freehold
Key features
- EXPLORE OFFERS TAILORED TO YOU
- LARGE OPEN PLAN KITCHEN AND DINING AREA WITH FRENCH DOORS TO THE GARDEN
- KITCHEN FLOWS INTO UTILITY ROOM WITH ACCESS TO WC AND REAR GARDEN
- SPACIOUS LOUNGE PERFECT FOR ENTERTAINING FAMILY AND FRIENDS
- ADDITIONAL FAMILY ROOM, IDEAL AS A SNUG OR STUDY
- MASTER SUITE WITH DRESSING AREA COMPLETE WITH HAMMONDS WARDROBES AND PRIVATE ENSUITE
- FAMILY BATHROOM COMPLETE WITH SEPARATE BATH AND SHOWER
- DETACHED DOUBLE GARAGE AND BLOCK PAVED DRIVEWAY
- 10 YEAR NHBC WARRANTY FOR PEACE OF MIND
- THE HARRON SPECIFICATION INCLUDES LEADING BRANDS SUCH AS BOSCH, SYMPHONY, FRANKE, HANSGROHE, IDEAL STANDARD, AND HAMMONDS WARDROBES
Description
Discover a stunning collection of two-, three-, four- and five-bedroom homes at Simpson Park, designed with timeless quality and modern living in mind.
Set in Harworth and Bircotes, this growing community offers open green spaces, excellent local schools, and easy access to the M1 and M18, making it ideal for families and commuters alike.
With several homes now ready to make yours, why not pop in and speak with our experienced Sales Executives about how we could help make your dream home a reality with a collection of fantastic incentives.
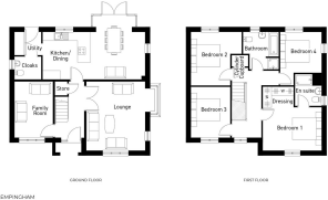
THE EMPINGHAM
The stylish Empingham is a four-bedroom detached home with a detached double garage, perfectly combining space and practicality for modern family living.
Step into a spacious hallway that flows through to a bright, elegant lounge and a versatile family room - ideal as a playroom, snug, or study. The heart of this home is the high specification open-plan kitchen and dining area, featuring classic French doors that open onto the garden, flooding the space with natural light and creating the perfect setting for entertaining. There's also room for a sofa to enjoy a relaxed morning coffee, while the utility room and cloakroom add further convenience.
Upstairs, the central landing leads to four generous bedrooms. The master suite is a true retreat, complete with a dressing area with Hammonds fitted wardrobes and a private en-suite shower room. The remaining bedrooms are spacious and flexible, ideal for family, guests, or home working, while the modern family bathroom offers both a bath and a separate shower.
MEASUREMENTS
Lounge: 4760 x 4790mm 15'7" x 15'8"
Dining Area: 7060 x 4390mm 23'1" x 14'4"
Family Room: 2655 x 3890mm 8'8" x 12'9"
Utility: 1850 x 1850mm 6'0" x 6'0"
WC: 1850 x 1585mm 6'0" x 5'2"
Master Bedroom: 4060 x 3000mm 13'3" x 9'10"
Dressing Room: 2110 x 1420mm 6'11" x 4'7"
En suite: 1850 x 2200mm 6'0" x 7'2"
Bedroom 2: 3540 x 3705mm 11'7" x 12'1"
Bedroom 3: 2690 x 3520mm 8'9" x 11'6"
Bedroom 4: 2870 x 2824mm 9'4" x 9'3"
Bathroom: 2400 x 2585mm 7'10" x 8'5"
MAKE YOUR MOVE WITH PART EXCHANGE
With our Part Exchange scheme, we could be your guaranteed buyer, so there's no chain, no estate agent fees, and no risk of your sale falling through. It's a simple, stress-free way to move into your new Harron home sooner.
For more information, please speak with your Sales Executive.
HARRON HOMES
Known for spacious designs, premium specifications, and exceptional attention to detail, Harron Homes builds properties that combine style, comfort, and craftsmanship - all in carefully chosen locations. Our mission is simple: to help people find their dream home and move with confidence.
Please note images used may be of a similar property and are for illustrative purposes only. For a detailed overview of this home's internal and external specification, please speak with our Sales Executive. We endeavour to make our property particulars accurate and reliable. However, they do not constitute or form any part of an offer or contract and none is to be relied upon as statements of representation or fact. Measurements are taken as a guide and may not be precise. All incentives advertised are plot and development specific and cannot be used in conjunction with any other home buying scheme. For more information, please speak with your Sales Executive.
- COUNCIL TAXA payment made to your local authority in order to pay for local services like schools, libraries, and refuse collection. The amount you pay depends on the value of the property.Read more about council Tax in our glossary page.
- Ask developer
- PARKINGDetails of how and where vehicles can be parked, and any associated costs.Read more about parking in our glossary page.
- Garage,Private,Allocated,No permit,Visitor
- GARDENA property has access to an outdoor space, which could be private or shared.
- Front garden,Private garden,Enclosed garden,Rear garden,Back garden
- ACCESSIBILITYHow a property has been adapted to meet the needs of vulnerable or disabled individuals.Read more about accessibility in our glossary page.
- Ask developer
Energy performance certificate - ask developer
- 3, 4 & 5 bedroom homes
- Chance to live in a regenerated community in an idyllic location
- Independent shops, pubs and scenic landscapes
- Everything you need to live a full and active lifestyle
Harworth and Bircotes DN11 8AB
Add an important place to see how long it'd take to get there from our property listings.
__mins driving to your place
Get an instant, personalised result:
- Show sellers you’re serious
- Secure viewings faster with agents
- No impact on your credit score
About Harron Homes
Founded in 1993, Harron Homes has been delivering high quality new homes across Yorkshire and the North Midlands for nearly 30 years.
We cater for how families want to live today with a sought-after selection of three, four and five bedroom executive homes.
Privately owned, the company prides itself on building homes of outstanding quality and good value for money and after easy to live in add with generous size rooms. Our attention to the design of all our properties ensures that the homes we build are not just attractive but remain practical as well as enjoyable and easy to live in.
Equally, all our properties are constructed to the highest possible standards and are built only by highly trained managers and skilled craftspeople. The exacting standards
and quality workmanship, which goes into every property, means that Harron Homes offers a National House Building Council (NHBC) 10 year warranty.
A Harron home is one that we are proud to put our name to and one that you will be truly proud to own.
Your mortgage
Notes
Staying secure when looking for property
Ensure you're up to date with our latest advice on how to avoid fraud or scams when looking for property online.
Visit our security centre to find out moreDisclaimer - Property reference Plot-144-The-Empingham. The information displayed about this property comprises a property advertisement. Rightmove.co.uk makes no warranty as to the accuracy or completeness of the advertisement or any linked or associated information, and Rightmove has no control over the content. This property advertisement does not constitute property particulars. The information is provided and maintained by Harron Homes. Please contact the selling agent or developer directly to obtain any information which may be available under the terms of The Energy Performance of Buildings (Certificates and Inspections) (England and Wales) Regulations 2007 or the Home Report if in relation to a residential property in Scotland.
*This is the average speed from the provider with the fastest broadband package available at this postcode. The average speed displayed is based on the download speeds of at least 50% of customers at peak time (8pm to 10pm). Fibre/cable services at the postcode are subject to availability and may differ between properties within a postcode. Speeds can be affected by a range of technical and environmental factors. The speed at the property may be lower than that listed above. You can check the estimated speed and confirm availability to a property prior to purchasing on the broadband provider's website. Providers may increase charges. The information is provided and maintained by Decision Technologies Limited. **This is indicative only and based on a 2-person household with multiple devices and simultaneous usage. Broadband performance is affected by multiple factors including number of occupants and devices, simultaneous usage, router range etc. For more information speak to your broadband provider.
Map data ©OpenStreetMap contributors.





