
Carron View, Maddiston

- PROPERTY TYPE
Terraced
- BEDROOMS
2
- BATHROOMS
1
- SIZE
Ask agent
- TENUREDescribes how you own a property. There are different types of tenure - freehold, leasehold, and commonhold.Read more about tenure in our glossary page.
Freehold
Key features
- Beautifully presented mid terraced house
- Upgraded & modernised throughout
- Exceptional kitchen & bathroom
- Two double bedrooms
- True walk-in condition
- Cul-de-sac position with parking
- Excellent commuter area
- Good local amenities
Description
CastleBrae are delighted to market this beautiful two-bedroom mid-terraced home. The property has been meticulously upgraded and modernised throughout, presented in true walk-in condition, and is a real credit to our vendors. It further benefits from a stunning and tastefully designed new kitchen and an equally exceptional new bathroom. This is a must-view property, early viewing is strongly recommended to avoid disappointment.
The home is ideally situated in a quiet cul-de-sac, offering excellent parking for both residents and visitors. A park is conveniently located beside the cul-de-sac, making this an ideal setting. The upper floor enjoys exceptional views across the Forth Valley to the Ochil Hills.
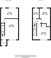
Accommodation comprises: entrance vestibule leading to a beautifully presented, front-facing lounge with stairway to the upper floor. The outstanding new kitchen, designed and installed by Howdens, is sleek, modern, and tastefully finished. It offers an array of wall and base-mounted storage units, excellent worktop space, and integrated oven, hob, and hood. The kitchen overlooks the rear of the property and provides direct access to the lovely private garden.
Upstairs, the accommodation includes a spacious, front-facing main bedroom with two fitted storage areas. The main wardrobe was installed by Sharps, and there is ample space for freestanding furniture. The room benefits from excellent natural light, creating a tranquil and relaxing space. Bedroom two is a well-proportioned, rear-facing double room with a further storage recess. Currently accommodating a double bed and desk, it is an excellent space for use as a second bedroom, guest room, or home office.
The beautiful, recently renovated bathroom features a modern white three-piece suite, comprising a vanity sink with storage, WC, and bath with mains-powered overhead shower. The walls are finished with wet wall panelling for easy maintenance, and the room is completed with a chrome heated towel rail and an LED mirror.
The property benefits from gas central heating, newly installed radiators throughout, and the property is double glazed.
Externally, there is a garden to the front, while the rear garden is fully enclosed with timber fencing. A patio area and generous decked section offer the perfect space for outdoor furniture-ideal for enjoying sunny days and relaxing outdoors.
Council Tax Banding "C"
EPC Rating "C"
LOCALE: Maddiston is located on the outskirts of Falkirk and offers shopping that will cater for day to day needs with local shops. The nearby towns of Falkirk and Polmont offer further shopping which can be found at supermarket level and high street shopping. Maddiston offers schooling at primary level with local Braes High School being in the catchment area or Falkirk offering further secondary schooling. The Railway Stations at Polmont and Falkirk provides direct services to Edinburgh, Glasgow and Stirling and beyond. The location is well placed for motorway links and has excellent bus services into the larger town of Falkirk.
IMPORTANT NOTE TO PURCHASERS: We endeavour to make our sales particulars accurate and reliable, however, they do not constitute or form part of an offer or any contract and none is to be relied upon as statements of representation or fact. Any services, systems and appliances listed in this specification have not been tested by us and no guarantee as to their operating ability or efficiency is given. Fixtures and fittings other than those mentioned are to be agreed with the seller. Whilst every attempt has been made to ensure the accuracy of the measurements contained here, they are approximate and no responsibility is taken for any error, omission, or misstatement. All measurements are a guide to prospective buyers only and should not be assumed as precise. We would not recommend ordering flooring, furniture or anything else on the basis of these measurements.
Access can be granted for buyers or contractors to obtain their own measurements, on successful conclusion of missives. Confirmation of such will be sought from both solicitors transacting.
- COUNCIL TAXA payment made to your local authority in order to pay for local services like schools, libraries, and refuse collection. The amount you pay depends on the value of the property.Read more about council Tax in our glossary page.
- Band: C
- PARKINGDetails of how and where vehicles can be parked, and any associated costs.Read more about parking in our glossary page.
- Yes
- GARDENA property has access to an outdoor space, which could be private or shared.
- Yes
- ACCESSIBILITYHow a property has been adapted to meet the needs of vulnerable or disabled individuals.Read more about accessibility in our glossary page.
- Ask agent
Energy performance certificate - ask agent
Carron View, Maddiston
Add an important place to see how long it'd take to get there from our property listings.
__mins driving to your place
Get an instant, personalised result:
- Show sellers you’re serious
- Secure viewings faster with agents
- No impact on your credit score
Your mortgage
Notes
Staying secure when looking for property
Ensure you're up to date with our latest advice on how to avoid fraud or scams when looking for property online.
Visit our security centre to find out moreDisclaimer - Property reference 103319004087. The information displayed about this property comprises a property advertisement. Rightmove.co.uk makes no warranty as to the accuracy or completeness of the advertisement or any linked or associated information, and Rightmove has no control over the content. This property advertisement does not constitute property particulars. The information is provided and maintained by Castlebrae Sales and Letting Ltd, Bathgate. Please contact the selling agent or developer directly to obtain any information which may be available under the terms of The Energy Performance of Buildings (Certificates and Inspections) (England and Wales) Regulations 2007 or the Home Report if in relation to a residential property in Scotland.
*This is the average speed from the provider with the fastest broadband package available at this postcode. The average speed displayed is based on the download speeds of at least 50% of customers at peak time (8pm to 10pm). Fibre/cable services at the postcode are subject to availability and may differ between properties within a postcode. Speeds can be affected by a range of technical and environmental factors. The speed at the property may be lower than that listed above. You can check the estimated speed and confirm availability to a property prior to purchasing on the broadband provider's website. Providers may increase charges. The information is provided and maintained by Decision Technologies Limited. **This is indicative only and based on a 2-person household with multiple devices and simultaneous usage. Broadband performance is affected by multiple factors including number of occupants and devices, simultaneous usage, router range etc. For more information speak to your broadband provider.
Map data ©OpenStreetMap contributors.





