Pentre Nicklaus Village, Llanelli

- PROPERTY TYPE
Detached
- BEDROOMS
4
- BATHROOMS
5
- SIZE
Ask agent
- TENUREDescribes how you own a property. There are different types of tenure - freehold, leasehold, and commonhold.Read more about tenure in our glossary page.
Freehold
Key features
- Detached Property In Sought After Location
- Far Reaching Views
- Four Bedrooms With Master & Guest En-Suite
- Driveway & Garage
- Beautifully Presented Throughout
- Council Tax - G (May 2025)
- Mains Gas, Electric, Water & Drainage
- EPC - B 208m2
- No Chain
- Freehold
Description
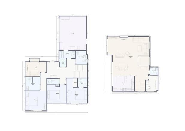
The ground floor comprises an inviting entrance hallway leading to the master bedroom with en-suite, and a second en-suite bedroom, both benefiting from direct garden access and superb far-reaching views over the golf course and beyond. Two further bedrooms, a cloakroom, a family bathroom, and a utility room with access to the integral garage complete this level.
Ascend to the first floor and be greeted by an impressive open-plan living space, seamlessly integrating the living, cooking, and dining areas. Bi-folding doors open onto a spacious balcony, the perfect vantage point for enjoying the uninterrupted panoramic vistas. A separate study/office and cloakroom are also located on this floor.
Externally, the front of the property features a driveway with ample parking and an integral garage with an electric door. The enclosed rear garden offers a lawn and patio area, with convenient access to the first-floor balcony.
An internal viewing is essential to truly appreciate the adaptable and peaceful living space and the unparalleled views this remarkable property affords.
Entrance Hallway - Wooden flooring, airing cupboard, storage cupboard, two radiators. leading to;
Master Bedroom - 5.23 x 4.59 approx. (max) (17'1" x 15'0" approx. ( - Fitted wardrobes, two radiators, double doors to rear, door into;
En-Suite - 2.23 x 2.25 approx. (max) (7'3" x 7'4" approx. (ma - Fitted with W/C, hand wash basin with cabinet, double shower cubicle, wooden panelled walls, radiator, extractor fan.
Bedroom Two - 3.80 x 2.76 approx. (12'5" x 9'0" approx. ) - Fitted wardrobes, window to rear, double doors to rear, radiator, door into;
En-Suite - 1.51 x 1.84 approx. (4'11" x 6'0" approx.) - Fitted with W/C, Hand wash basin with cabinet, shower cubicle, extractor fan, tiled flooring, part tiled walls.
Bedroom Three - 3.86 x 2.63 approx. (max) (12'7" x 8'7" approx. (m - Bay window to front, radiator, electric fire & surround.
Bedroom Four - 3.30 x 2.61 approx. (10'9" x 8'6" approx. ) - Fitted wardrobes, window to rear, radiator.
Cloakroom - 2.12 x 1.37 approx. (6'11" x 4'5" approx.) - Fitted with W/C, hand wash basin with cabinet, radiator, panelled walls, tiled flooring, extractor fan.
Bathroom - 2.454 x 1.91 approx. (8'0" x 6'3" approx.) - Fitted with W/C, hand wash basin with cabinet, panelled bath with shower over, part tiles walls, window to side, extractor fan, tiled flooriing.
Utility - 1.32 x 2.78 approx. (4'3" x 9'1" approx. ) - Fitted with wall and base units with worktop over, Belfast sink with mixer tap, space for washing machine and tumble dyer, tiled flooring. Door into;
Garage - 6.01 x 4.88 approx. (19'8" x 16'0" approx.) - Electric door, loft access with ladder (not inspected) Fitted with base units with worktop over. Window to side, boiler (IDEAL- 5yrsold )
Open Plan Living/Dining/Kitchen - 8.12 x 8.83 approx. (max) (26'7" x 28'11" approx. - Vaulted ceilings, wooden flooring, two windows to front. Remote electric blinds.
Living - Built in electric fire in panelled wall, double sliding door to decking.
Kitchen/Dining - Bi-folding doors leading to decking. Kitchen fitted with wall and base units with worktop over, Belfast sink with mixer taps, double oven and gas hob with extractor hood over, intergraded fridge/freezer
& microwave, island with granite worktop with electric power tower, storage cupboards and wine fridge,
Study - 2.46m x 3.25m approx. (8'1" x 10'8" approx.) - Wooden flooring, window to side, loft access, radiator,
Cloakroom - 1.72 x 1.51 approx. ( 5'7" x 4'11" approx. ) - Fitted with W/C, hand wash basin with cabinet, window to side, radiator, storage cabinet, wooden flooring,
External - To the rear - Spacious composite decking with stairs to side, leading down to to enclosed garden laid to lawn with side access.
To The front - Driveway for multiple cars leading to garage.
Brochures
Pentre Nicklaus Village, LlanelliProperty InformationBrochure- COUNCIL TAXA payment made to your local authority in order to pay for local services like schools, libraries, and refuse collection. The amount you pay depends on the value of the property.Read more about council Tax in our glossary page.
- Ask agent
- PARKINGDetails of how and where vehicles can be parked, and any associated costs.Read more about parking in our glossary page.
- Yes
- GARDENA property has access to an outdoor space, which could be private or shared.
- Yes
- ACCESSIBILITYHow a property has been adapted to meet the needs of vulnerable or disabled individuals.Read more about accessibility in our glossary page.
- Ask agent
Pentre Nicklaus Village, Llanelli
Add an important place to see how long it'd take to get there from our property listings.
__mins driving to your place
Explore area BETA
Llanelli
Get to know this area with AI-generated guides about local green spaces, transport links, restaurants and more.
Get an instant, personalised result:
- Show sellers you’re serious
- Secure viewings faster with agents
- No impact on your credit score
Your mortgage
Notes
Staying secure when looking for property
Ensure you're up to date with our latest advice on how to avoid fraud or scams when looking for property online.
Visit our security centre to find out moreDisclaimer - Property reference 33857689. The information displayed about this property comprises a property advertisement. Rightmove.co.uk makes no warranty as to the accuracy or completeness of the advertisement or any linked or associated information, and Rightmove has no control over the content. This property advertisement does not constitute property particulars. The information is provided and maintained by Davies Craddock, Llanelli. Please contact the selling agent or developer directly to obtain any information which may be available under the terms of The Energy Performance of Buildings (Certificates and Inspections) (England and Wales) Regulations 2007 or the Home Report if in relation to a residential property in Scotland.
*This is the average speed from the provider with the fastest broadband package available at this postcode. The average speed displayed is based on the download speeds of at least 50% of customers at peak time (8pm to 10pm). Fibre/cable services at the postcode are subject to availability and may differ between properties within a postcode. Speeds can be affected by a range of technical and environmental factors. The speed at the property may be lower than that listed above. You can check the estimated speed and confirm availability to a property prior to purchasing on the broadband provider's website. Providers may increase charges. The information is provided and maintained by Decision Technologies Limited. **This is indicative only and based on a 2-person household with multiple devices and simultaneous usage. Broadband performance is affected by multiple factors including number of occupants and devices, simultaneous usage, router range etc. For more information speak to your broadband provider.
Map data ©OpenStreetMap contributors.





