Commercial property for sale
The Green, Syston, Leicester, LE7 1HQ
- PROPERTY TYPE
Commercial Property
- BEDROOMS
1
- BATHROOMS
2
- SIZE
1,313 sq ft
122 sq m
Key features
- Available Now
- Commercial Unit
- First Floor One Bedroom Apartment
- Prime Location
- excellent visibility and foot traffic
- EPC Rating D
Description
This prime commercial property is situated in the heart of Syston, a vibrant town within the district of Charnwood. Positioned on High Street, the unit benefits from excellent visibility and foot traffic, being just a short walk from the bustling Syston Town Square Shopping Centre. The property is conveniently located near the junction with Melton Road, a key thoroughfare that hosts a variety of well-established national and local retailers, enhancing the area’s commercial appeal. Syston offers a blend of residential and commercial environments, ensuring a steady flow of potential customers and clients.
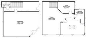
Accommodation
The commercial unit offers a versatile space suitable for a range of business uses, featuring both retail and office areas. On the ground floor, you will find a spacious retail/office area complemented by a small storage room and a WC, providing all the essential facilities for your business operations.
The first floor comprises of a one-bedroom apartment, ideal for owner-occupiers or as an additional work space. The apartment includes a bathroom, a fitted kitchen, and a comfortable lounge area. Both floors benefit from double glazing and gas central heating, ensuring a comfortable environment year-round.
Key Features
- High Visibility Location: Situated on High Street, close to major shopping and commercial areas.
- Flexible Use: Suitable for a variety of business purposes including retail and office use.
- Ground Floor Facilities: Retail/office space, storage area, and WC.
- First Floor Accommodation: One-bedroom apartment with bathroom, kitchen, and lounge.
- Previous Uses: The property has a history of diverse uses, having served as a shop/workshop for the past 15 years and a hairdresser's before that. Potential tenants can apply for a change of use with the council if a different type of business is desired.
Rateable Value
The rateable value of the property is £8,700. This figure is used by the local council to calculate the business rates bill, but it is not the amount paid in rent or business rates. For more information on how the rateable value impacts your business rates, please refer to your local council’s guidelines.
This commercial unit offers an excellent opportunity for businesses looking to establish themselves in a thriving area with strong community ties and significant commercial activity. Contact us today to arrange a viewing and secure this prime property for your business needs.
Viewings:
To arrange a viewing or obtain more information, please contact us today. This property is expected to attract significant interest.
Contact Details:
Phone:
Email:
Additional Information
We understand the property to be freehold with vacant possession upon completion. Charnwood Borough Council - rateable value of the property is £8,700. Please be advised that when a property is sold, local authorities reserve the right to re-calculate the council tax band.
These particulars, whilst believed to be accurate, are set out as a general outline only for guidance and do not constitute any part of an offer or contract. Details are given without any responsibility, and any intending purchasers, lessees or third parties should not rely on them as statements of representation of fact, but must satisfy themselves by inspection or otherwise as to their accuracy. All photographs, measurements (width x length), floor plans and distances referred to are given as a guide only and should not be relied upon for the purchase of carpets or any other fixtures or fittings. All services and appliances have not and will not be tested by Weldon Homes. Lease details, service ground rent are given as a guide only and should be checked and confirmed by your solicitor prior to exchange of contracts. No person in this firm's employment has the authority to make or give any representation or warranty in respect of the property. We retain the copyright.
Free Property Valuations
If you have a house to sell then we would love to provide you with a free no obligation valuation.
For further information on this property please call or e-mail
Energy Performance Certificates
EPC 1The Green, Syston, Leicester, LE7 1HQ
NEAREST STATIONS
Distances are straight line measurements from the centre of the postcode- Syston Station0.5 miles
- Sileby Station2.5 miles
- Barrow upon Soar Station4.5 miles
Notes
Disclaimer - Property reference S1192182. The information displayed about this property comprises a property advertisement. Rightmove.co.uk makes no warranty as to the accuracy or completeness of the advertisement or any linked or associated information, and Rightmove has no control over the content. This property advertisement does not constitute property particulars. The information is provided and maintained by Weldon Homes Estate Agents, Wigston. Please contact the selling agent or developer directly to obtain any information which may be available under the terms of The Energy Performance of Buildings (Certificates and Inspections) (England and Wales) Regulations 2007 or the Home Report if in relation to a residential property in Scotland.
Map data ©OpenStreetMap contributors.





