Jackson Terrace, Tunstall

- PROPERTY TYPE
Cottage
- BEDROOMS
2
- BATHROOMS
1
- SIZE
Ask agent
- TENUREDescribes how you own a property. There are different types of tenure - freehold, leasehold, and commonhold.Read more about tenure in our glossary page.
Freehold
Key features
- A Very Well Presented Cottage In This Highly Regarded Village Location
- Roof Terrace With Open Countryside Views
- Living Room With Open Fire
- Dining Room
- Modern Kitchen
- Study/Bedroom 3
- Two Double Bedrooms
- Modern Bathroom
- Large Mature Well Maintained Garden
- Driveway Parking & Garage
Description
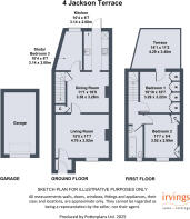
ENTRANCE LOBBY Accessed through a part glazed upvc door, the lobby provides space for hanging coats and has a radiator.
LIVING ROOM A lovely room retaining a real cottage feel and having exposed ceiling beams and an open fireplace with brick detailing. There are two radiators, a TV point and a upvc double glazed window to the front of the property.
DINING ROOM With ample space for family dining and having a radiator, a useful understairs cupboard and exposed brick arch detailing.
STUDY/BEDROOM 3 A very useful additional reception room which is currently used as a home office but could also be used as an additional bedroom. There is a radiator and a upvc double glazed window to rear.
KITCHEN Fitted with a range for quality wall and base units with complimenting countertops. Integrated into the units are an electric hob with extractor over, and double ovens. There is plumbing for a washing machine and dishwasher, space for a fridge freezer, a Belfast sink and a fully glazed upvc door to the rear giving open countryside views and providing access to the roof terrace.
FIRST FLOOR LANDING With loft access and a radiator.
BEDROOM A double bedroom with a generous range of fitted wardrobes, a TV point, a radiator and a upvc double glazed door that opens onto the roof terrace and gives open countryside views.
BEDROOM A double bedroom with a radiator, a built in wardrobe, a storage cupboard and a upvc double glazed window to the front of the cottage.
BATHROOM Fitted with a modern white suite that comprises a bath with a Mira electric shower over, a WC and a wash hand basin. There is a heated towel rail and a upvc double glazed window.
EXTERNAL The cottage forms part of a terrace of four cottages sitting in a quiet location with an open countryside aspect to the rear.
To the front there is a large driveway providing off street parking for a number of cars.
To the rear there is a large roof terrace that makes the most of the open aspect providing a fantastic spot for relaxing.
Across the access road to the cottage there is the garage and large garden. The Garage has an up and over door and a water tap. The garden is accessed via a gate which leads to a gravelled parking area providing additional off street parking.
The very well presented landscaped garden is a real oasis and features well planted mature beds, areas of lawn and seating areas. There is a greenhouse and a number of raised vegetable planters.
ADDITIONAL INFORMATION The postcode is DL10 7QT and the Council Tax Band is B.
The oil fired boiler is being replaced in September and will have a manufacturer's warranty in place.
Brochures
Sales Brochure- COUNCIL TAXA payment made to your local authority in order to pay for local services like schools, libraries, and refuse collection. The amount you pay depends on the value of the property.Read more about council Tax in our glossary page.
- Ask agent
- PARKINGDetails of how and where vehicles can be parked, and any associated costs.Read more about parking in our glossary page.
- Garage,Off street
- GARDENA property has access to an outdoor space, which could be private or shared.
- Yes
- ACCESSIBILITYHow a property has been adapted to meet the needs of vulnerable or disabled individuals.Read more about accessibility in our glossary page.
- Ask agent
Jackson Terrace, Tunstall
Add an important place to see how long it'd take to get there from our property listings.
__mins driving to your place
Get an instant, personalised result:
- Show sellers you’re serious
- Secure viewings faster with agents
- No impact on your credit score
Your mortgage
Notes
Staying secure when looking for property
Ensure you're up to date with our latest advice on how to avoid fraud or scams when looking for property online.
Visit our security centre to find out moreDisclaimer - Property reference 103422006383. The information displayed about this property comprises a property advertisement. Rightmove.co.uk makes no warranty as to the accuracy or completeness of the advertisement or any linked or associated information, and Rightmove has no control over the content. This property advertisement does not constitute property particulars. The information is provided and maintained by Irvings Property Limited, Catterick Garrison. Please contact the selling agent or developer directly to obtain any information which may be available under the terms of The Energy Performance of Buildings (Certificates and Inspections) (England and Wales) Regulations 2007 or the Home Report if in relation to a residential property in Scotland.
*This is the average speed from the provider with the fastest broadband package available at this postcode. The average speed displayed is based on the download speeds of at least 50% of customers at peak time (8pm to 10pm). Fibre/cable services at the postcode are subject to availability and may differ between properties within a postcode. Speeds can be affected by a range of technical and environmental factors. The speed at the property may be lower than that listed above. You can check the estimated speed and confirm availability to a property prior to purchasing on the broadband provider's website. Providers may increase charges. The information is provided and maintained by Decision Technologies Limited. **This is indicative only and based on a 2-person household with multiple devices and simultaneous usage. Broadband performance is affected by multiple factors including number of occupants and devices, simultaneous usage, router range etc. For more information speak to your broadband provider.
Map data ©OpenStreetMap contributors.




